단독주택 지하 방습벽 관련 문의

설계/시공관련 질문

질문 전에 먼저 검색을 해주세요.

 

단독주택 지하 방습벽 관련 문의

G KHJ 3 5,359 2022.08.17 00:25

 

 

안녕하세요~

저는 현재 단독주택 리모델링 설계를 맡고 있습니다

지하 방습벽 관련해서 자문을 좀 구해보고 싶어서 글 올리게 되었습니다

 

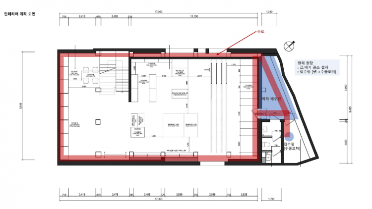
지하에 원래부터 방습벽이 조성되어 있었고, 안쪽에 집수정도 되어있어서 물이 그쪽으로 모이게끔 되어 있었습니다

그런데 공사를 하던중에 벽부에 물방울이 맺히다 못해 흘러내리기 시작하고 몇 몇 바닥은 물이 고이게 되었습니다 

여기가 원단 작업실 공간이라 공사 시작하면서 급/배기 공조 시설과 집수정에 수중모터를 달아놓았는데

공사 중간에 이런 현상을 알게 되었고,

(물론 처음에 벽 하부에 노랗게 물이 마른 흔적들이 있어서 결로가 심한가, 방습벽이라서 그런가 싶기는 했었어요)

 

현재는 기존 방습벽을 모두 철거하고

인젝션 방수 / 우레아 방수 / 바닥 단열 배수판 / 콘크리트 블럭으로 방습벽 재조성 / 제습기 설치 등

으로 계획을 세우고 있는데 이런 방식이 맞을지 자문을 좀 구해 보고 싶습니다

 

방습벽 철거 전에는

조적 방습벽 철거를 다 하면 콘크리트 벽이 나올줄 알았는데, 또 조적벽(콘크리트벽에 딱붙음)이 나왔어요

인젝션 방수 업체에서는 벽이 어느정도 마르고 나면 누수나 크랙 포인트 확인이 가능하고

그러면 조적벽 벽돌을 뚫고 콘크리트 크랙쪽에 인젝션 방수가 가능하다고 해서 더 철거 하지는 않았습니다

인젝션 방수를 처음 해봐서 이게 정말 가능한건지 잘 판단이 안서고,

 

한쪽 벽에는 창이 가로로 길게 두개 정도 나있고, 그게 지상 바닥 일부도 뚫려 있어서 (1층은 베란다 같이 되어 있어서 비는 안들이쳐요) 공기가 통하게 되어 있어요 / 공조 배관도 오고 갑니다

이걸 완전히 막는게 나을지, 지하 내부에 슬라이딩 창호를 다는게 나을지요~ 

 

혹시 사례는 없을지 협회 분들의 자문 좀 요청 드리겠습니다

 

자문1.png

 

자문2.png

Comments

11 잡자재 2022.08.18 13:19
저는 개인적으로 지하층의 내방수는 운이라고 생각합니다. 그 방법이 인젝션이던 치핑후 액방이던 골조의 강성에 따라 작은 크랙으로도 누수가 생길 수 있어서 장기적인 관점에서 중공벽을 쌓는게 최선이라고 생각합니다. 인젝션방수에 큰 비용이 들지 않음으로 최대한 막을 수 있는 것을 막고 내부에 ek단열재를 적용해서 결로나 누수로 인해 유입된 물이 하부로 내려갈 수 있도록 하는 방법을 추천드립니다.
https://blog.naver.com/h0618/220078399508
M 관리자 2022.08.18 20:11
조적벽은 틈이 많아서 인젝션 방수는 매몰비용이 될 가능성이 높습니다.
우레아 방수도 수압을 버티기는 무리인데, 해볼 수는 있을 것 같습니다. 다만 시공시 다량의 포름알데히드가 배출되기에 지하층에 사용되는 것은 말리고 싶습니다.

나머지는 그대로 하시면 되는데, 바닥에 단열배수판을 사용했듯이 벽도 단열드레인보드를 사용하는 것이 어떨까 싶습니다. 그 사이에 방습테잎(바닥도 같이)를 꼼꼼이 하면 곰팡균이 실내로 유입되는 것을 막을 수도 있으니까요...
G KHJ 2022.08.23 09:42
답변 감사합니다~ 주신 내용을 토대로 현장에 잘 적용 해보겠습니다!
Category