심한 결로현상의 지하방습벽 보수공사

설계/시공관련 질문

질문 전에 먼저 검색을 해주세요.

 

심한 결로현상의 지하방습벽 보수공사

G 이승호 6 5,574 2022.10.06 15:50

안녕하세요, 좋은 자료들 늘 감사하게 보고 있습니다. 

 

이번에 맡은 설계에 지하층이 있는데 아래 사진과 같이 벽면에 심한 결로현상이 일어나고 있습니다. 


KakaoTalk_20220919_102023202.jpg

KakaoTalk_20220919_102135616.jpg

기존 방습벽체와 바닥 무근콘크리트 및 배수판까지 철거하고 전체적으로 보수 공사를 진행하려고 합니다. 

 

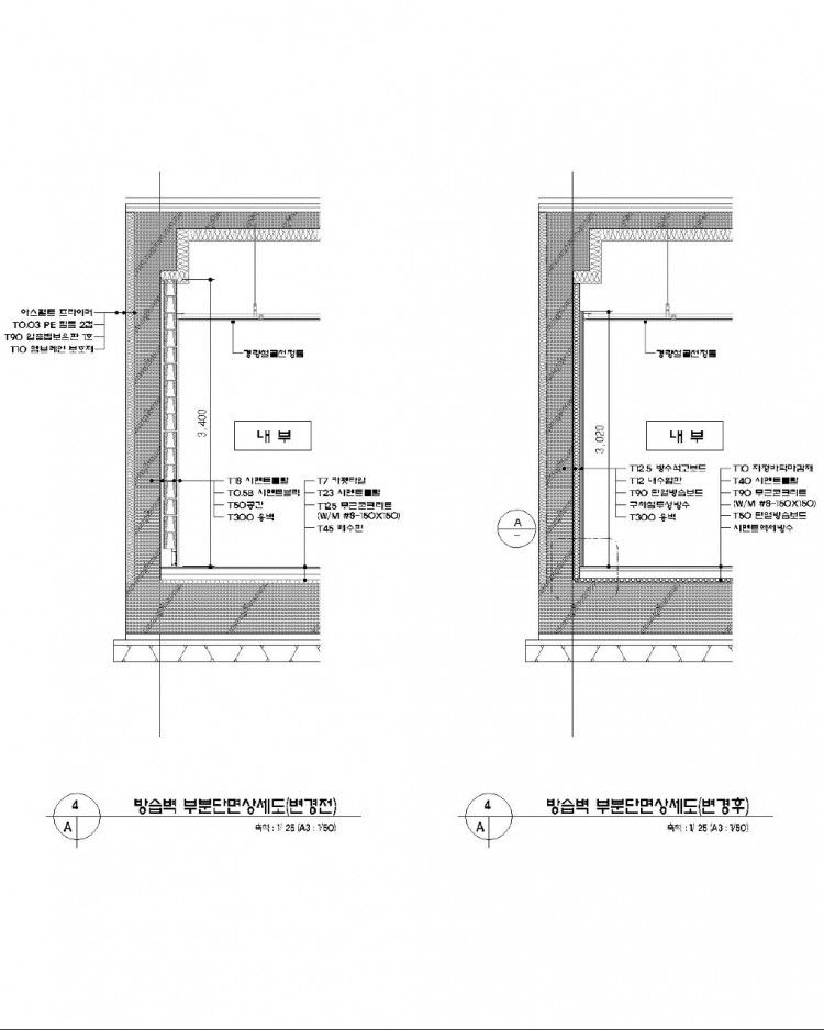
아래 도면과 같이 현재 기존 건물은 외벽 접지 부분에 'PE 필름 + T90 압출법 + T10 멤브레인보호재'로 처리되어 있습니다. 가능하다면 외방수 및 외단열을 보강하는 방식을 진행하고 싶지만, 현장 상황 상 불가능 한 부분이 있습니다. 이에 내부에서 단열방습보드를 벽체와 바닥에 밀실하게 시공하고 기계 설비 계획 측면에서 제습기를 활용하는 방식으로 계획하고 있습니다. 

지하방습벽(변경전후).jpg

 

물론 지하층이 가지고 있는 한계적인 부분은 인지하고 있지만, 현재의 상황에서 그나마 공간을 가장 쾌적하게 사용할 수 있는 공법에 대해서 문의 드립니다. 도면 보시고 혹시 수정해야 할 부분이나 추가 되어야 할 부분이 있다면 소중한 말씀 부탁드리겠습니다. 감사합니다. 

 

Comments

M 관리자 2022.10.07 01:33
안녕하세요.
수정 보다는...  도면에 표현이 되지 않은.. 단열재와 단열재 이음매에 방습테잎을 시공해 주시면 좋습니다.
그리고 합판+석고보드 보다는 전방수석고보드 2겹으로 하시는 것이 더 나을 것 같습니다.
더해서... 90mm 두께의 무근콘크리트에는 #6-150x150 이 맞는 규격입니다.

감사합니다.
3 프로클리마 2022.10.07 11:55
2020년 4월경에 지하1층부터 3층까지 시공한 현장입니다. 1년이 지난후에 현장에 연락했더니 문제없이 잘 사용하고 있다고 하더군요.
이때 시공했던 자료 올려드립니다. 참고하셔요

https://blog.naver.com/weimarjin/221926762902
M 관리자 2022.10.07 23:58
감사합니다.^^
G 조창환 2022.10.09 10:20
최근 지하층 리모델링 구법으로 많이 적용하고 있는 듯하네요..
근대 바닥에 사용하는 자재는 단열배수판이라고 하네요.(변경후 도면 표기오류) 
단열방습보드는 벽체용으로 배수용일자홈이고 단열배수판은 배수용격자홈이 형성되어 있읍니다.
3 green건축 2022.10.09 20:16
질문 내용 중 결로가 발생된 벽은 런너와 스터드 등 경량철골 구조 내측이고, 아래 도면상에는 외부에 단열재가 설치된 콘크리트 블록 이중벽입니다. 어느 것이 맞는 것인가요?

아래 도면을 기준하여 해석하겠습니다.
하절기 장마 등에 의해 지하수위가 높아지면 수온의 작용으로 지하실 외벽에 결로가 발생할 수 있습니다. 이를 방지하기 위해 외측에 T: 90 EPS 단열재를 설치했습니다만, 이 단열재가 지하수에 의해 흡습된다면 또는 단열재 간 접합부가 밀실하게 처리 되지 않았을 때 그 틈으로 외부수가 유입됐다면 단열 성능은 기대하기 어렵습니다. 그런 조건을 가정하겠습니다.

도면상 내측 이중벽은 콘크리트 블록으로 했으며 외벽과 공간을 50mm 뒀다고 했습니다. 그런데 블록 시공 시 두 가지 문제가 발생할 수 있습니다. 콘크리트 벽의 시공오차로 인하여 콘크리트와 블록벽이 더 가까워질 때 블록쌓기 시 사용되는 모르타르가 배면으로 낙하하며 좁은 사이에 걸려서 자칫 두 벽을 연결하는 경우가 있으며, 낙하하는 모르타르가 하부 트렌치를 막지 못하도록 중간에 메탈라스를 설치했을 때 메탈라스 위에 낙하된 모르타르가 두 벽을 일체화 시키는 경우가 있습니다.

이 모두 방수적인 면이나 결로발생에 나쁜 현상을 유발합니다. 지하 토사에 함유된 외부수가 유입되어 누수가 발생 할 수 있고, 지하수 낮은 온도가 공간을 넘어 이중벽까지 영향을 미쳐서 결로가 발생할 수 있습니다.  여기까지가 현상의 문제점을 야기한 원인 분석이었습니다.

다음은 변경하시고자 한 도면에 대한 해석입니다.
먼저 방수적으로 매우 불리합니다. 이전 도면에서는 이중벽 공간만 제대로 구성됐다면 누수나 결로 모두 방지할 수 있었습니다만, 방수성능을 기대하기 어려운 무기질계인 침투성 방수재에 의한 내방수 적용도 그렇거니와 외벽에 붙여 시공한 단열재 성능 또한 외벽을 통해 유입된 지하수의 저온에 따른 표면 결로 우려성이 있습니다.

그러므로 아래 모형과 같이 바닥 배수공법 적용을 권장 드립니다. 단지, 모형과 같이 바닥으로 배수시킬 필요 없이 현재 외벽에서 150mm이상 공간을 갖춘 트렌치를 만들되 두께는 천장 높이까지 지지할 수 있는 내벽(이중벽) 마감재를 기준한 방수턱을 설치하고 별도 집수정을 만들어서 배수하는 게 좋을 듯 합니다. 즉, 외벽을 통해 유입된 외부수나 결로수 모두 바닥 트렌치를 따라 집수정으로 모아서 배수하는 게 적정할 것이라는 뜻입니다.

기존 콘크리트 블록 이중벽이 그 역할을 기대한 것으로 시공한 것인데 도면 상 하부에 트렌치가 없고, 위에서 원인으로 든 내용과 같이  블록쌓기 시 배면으로 낙하한 모르타르 처리가 제대로 되지 않은 것(추정)이 문제였다고 생각됩니다.

그림으로 그려서 설명드리지 못하게 장황하게 나열해서 죄송합니다만, 참고하시기 바랍니다.
M 관리자 2022.10.10 17:16
감사합니다.
Category