아파트 벽 시공에 대해서 질문드립니다.

설계/시공관련 질문

질문 전에 먼저 검색을 해주세요.

 

아파트 벽 시공에 대해서 질문드립니다.

G ㅇㅇ 10 3,793 2023.12.15 13:25

스크린샷 2023-12-15 오후 12.59.04.png

 

 

아파트입니다. 방음과 단열이 아쉬워 벽을 건드려보고 싶은데 아는게 너무 없어서 질문드립니다.

요지는 벽이 어떻게 시공되어 있는지 아는 방법이 있을까 인데요.

아래 질문에 답변해주시면 정말 감사하겠습니다.

 

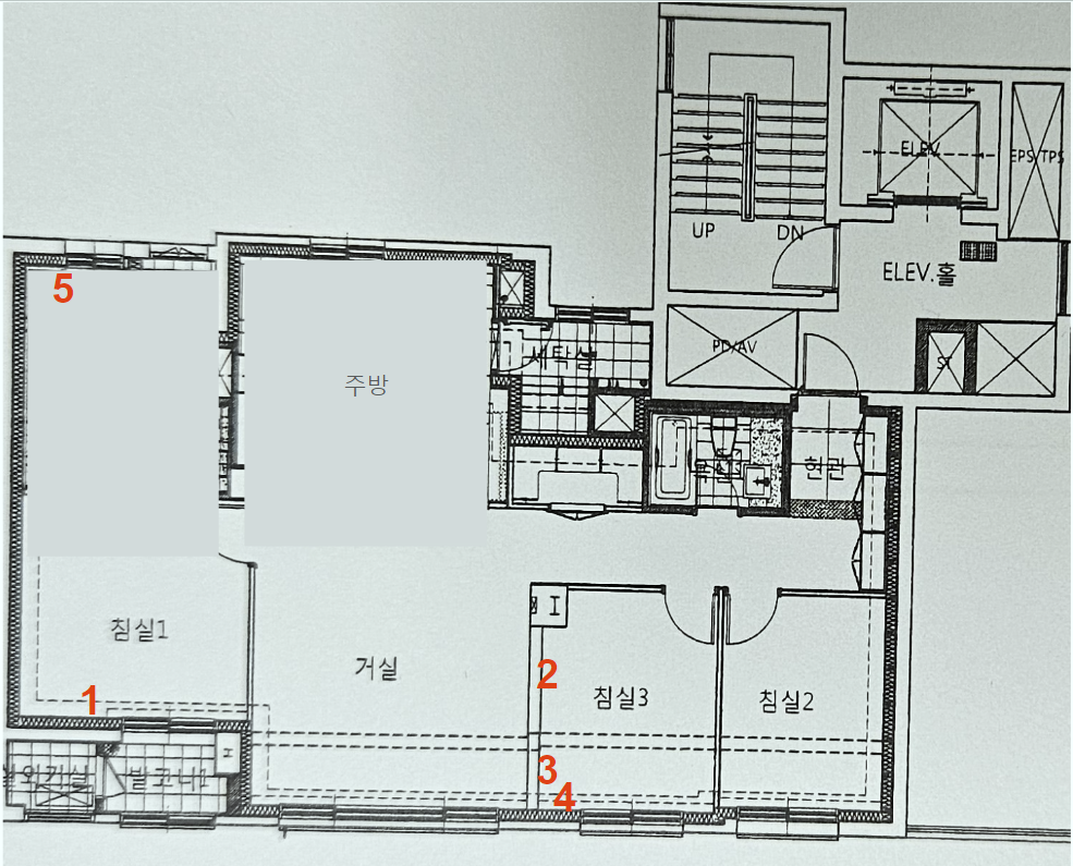
사진의 침실3을 기준으로 말씀드리면,

1번은 콘크리트벽입니다. 두드리면 딱딱합니다.

확장된 영역(2, 3번)은 두드리면 비어 있는 소리가 납니다.

2번 벽은 거실과 맞닿아 있습니다.

3번 벽은 외부와 맞닿아 있는 벽입니다.

2번보다 3번이 더 비어있는 소리가 크게 들립니다.

 

1. 1번은 옹벽이고 2번은 가벽같아요. 싸제 확장이 아니라 건설사 확장인데도 보통 이런식으로 시공을 하나요? 

 

2. 3번은 외부와 닿아있기 때문에 콘트리트 벽에 석고나 합판같은걸 대지 않았을까 싶은데요.

한쪽이 콘크리트임에도 두드렸을때 2번 벽보다 더 울림소리가 크다면, 그만큼 실제로 내부가 단열흡음재로 차있지 않고 비어있다고 보면 되는걸까요? 벽 결로는 없습니다.

 

3. 실제 벽 안이 어떻게 되어 있는지 아는 방법이나 노하우가 있을까요?

 

4. 할수만 있다면 3번 벽에서 합판을 뜯어내고 안에 흡음단열재를 채워넣고 싶습니다. 이런 시공은 가능할까요? 그리고 공사 규모(비용)가 많이 클까요?

Comments

G 라인원 2023.12.15 14:37
1  옹벽 2 옹벽 3빗금표시단열재 +옹벽
2번은 도면상은 옹벽인대 요즘 신축공사에선 그부분을 빗금으로 해서 단열재가벽
인경우가 많습니다. 단열에 도움이되기때문에 이렇게 하는겁니다.
다만 도면상으론 옹벽표시 같습니다
3단열재들어가고 옹벽입니다. 신축이라면 비었다기보단 건축규정에 맞춰 넣었을겁니다
4 더 하실려면 뜯고 하면되지만 확장공사할때 바닥 액샐포함 200정도 부를건대
불러서한다면 개소당 철거포함 100-200은 고려하여야할듯합니다.
도배 같은 마감재도 새로 하셔야겠지요...
G ㅇㅇ 2023.12.15 14:47
라인원님 답변 감사합니다. 추가로 문의를 드려도 될까요?

1. 2번 벽이 도면상 옹벽이라고 말씀주셨는데요. 두드려보면 확연히 1번과 다릅니다. 반대편 거실쪽으로 가서 두드려 봐도 동일하구요. 그럼 뭔가 잘못되어 있는거라고 봐야 할까요?

2. 확장과 바닥 얘기를 하셨는데, 이미 확장은 되어 있고 3번 벽에 단열재만 보강하려고 하는건데요. 벽 부분만 뜯어내고 시공할수는 없을까요?
G 라인원 2023.12.15 15:25
10년이내 신축이라면 2번벽이 단열재가 들어간 벽이라 통통거리는거인데요 도면상 옹벽이니
그부분은 뜯어봐야 알겠습니다

확장은 바닥액샐과 목공까지 해서 200이라는거니까 바닥액샐이 빠진대신에 단열을 철저히
하실거면 금액은 도찐 개찐같습니다
M 관리자 2023.12.15 22:04
라인원님.. 고맙습니다.

-------
이미 댓글로 정리가 된 듯 해서, 그저 정리만 하자면..

2번 벽은 도면상 옹벽이 맞습니다. 다만 그 부분은 옹벽을 조금 얇게 치고, 그 위에 얇은 두께의 결로방지 단열재라는 것이 들어가 있어서 소리가 다른 것입니다.

소음이 전달되는 것은 2번 벽 그 자체가 아니라, 2번벽의 끝단 처리가 부실해서 그렇습니다. 그 벽이 외벽의 옹벽(3번)과 직접 붙어 있는 것이 아니라 3번 벽의 단열재에 붙어 있거든요.
그래서 이 끝단의 마감을 뜯고 그 틈새를 보수하셔야 합니다.
G ㅇㅇ 2023.12.18 23:26
현재 상황에 대해 구체적으로 말씀드리고 다시 조언을 구하고자 다시 글을 남깁니다.
댓글에 첨부한 새 첨부파일 보시고 도움 주시면 정말 감사하겠습니다.

아파트이고 탑층은 아니고 고층입니다.
1. 1번 4번 벽에서 엘리베이터 진동음이 들립니다.
2. 그리고 바람이 많이 불때 옥상 구조물들이 흔들리는 소리와 공명음이 들립니다.
소리의 원인에 대한 처리와는 별개로, 집 내부도 건드릴 수 있는 부분이 있을까 싶어 질문 드립니다.


1. 엘리베이터
침실1의 경우 엘리베이터와 가장 먼 1번 벽에서 소리가 납니다.
5번 벽에서는 소리가 나지 않습니다.
(그쪽 옷장이 있어서 그럴수도 있습니다. 다만 비어있는 벽에서도 소리가 안납니다)
그리고 1번 벽과 맞닿아 있는 발코니 옹벽에서도 소리가 나지 않습니다.
그래서 1번 벽을 어떤식으로든 보강하면 소리가 안날것 같다는 생각도 듭니다.

4번 벽이 있는 침실3의 경우,
2번 벽은 옹벽이며, 3번벽은 지난번에 얇은 옹벽에 단열판을 더한것이라고 말씀해주셨습니다.
2번 벽은 소리가 나지 않으며, 3번 벽에서는 귀를 대고 있으면 들리는 정도입니다.
4번 벽에서는 1번벽처럼 소리가 나는데, 정확히는 4번과 3번이 만나는 모서리 천장 부근에서 소리가 잘 나는것 같습니다.

 
참고로 1번 4번벽은 평면도상 THK160,  비드법보온판 2종2호로 단열처리 되어 있다고 적혀있습니다
(하자 많은곳이라 솔직히 시공이 정상적으로 됐을지는 모르겠습니다)
그리고 거실에서는 소리가 들리지 않으며, 엘리베이터가 몇층에 있던 비슷하게 소리가 납니다.


2. 옥상 소음
바람이 얼마나 부는지에 따라 다른데, 심할때는 방, 화장실, 거실 등 모든곳에서 소리가 들립니다.
구조물 삐그덕 거리는 소리와 우웅 하는 공명음이 들립니다.
(이건 옥상에서 처리하는 방법밖에 없을것 같은데, 현 상황 설명을 위해 적었습니다.)


이런 상황인데요.
1. 엘리베이터 소리 같은 경우 특정벽에서 주로 나니까 그쪽을 보강할수 있지 않을까 싶은데요. 방법이 있을까요?
2. 혹시 커튼박스 같은걸 뜯고 천장과 벽이 만나는 지점을 보강하면 위에서부터 타고 내려오는 소음 막는데 도움이 될까요? 어떤식으로 시공을 하면 될까요?
3. 벽 끝단 마감을 뜯고 보강을 하라고 말씀하셨는데, 이런걸 해본적이 없어서 어떤식으로 접근해야 할지 감이 잘 오지 않습니다. 좀 더 설명해주실수 있을까요?
M 관리자 2023.12.19 11:22
불행히도 엘리베이터소음과 옥상 난간 소음은 실내에서 해결하기 어렵습니다.

엘리베이터 소음은 그래도 접근은 할 수 있는데.. 침실1의 1번에서 소리가 나는 것은 벽이 아니라, 천장의 끝에서 나는 것이라서.. (진동의 끝단이라서 나는 소리입니다.) 천장 마감을 뜯고, 모서리를 중심으로 흡음재를 붙이면 소리가 감쇄될 가능성이 있긴 합니다.  다만 단열공사도 같이 해야 해서, 꽤 비용이 많이 들거여요.

옥상 소음도 유사한 방법으로 접근을 할 수 있으나, 공사를 하더라도 꽤 넓은 면적을 해야 하고, 공사 후에도 1번 방의 엘리베이터 소음과 같이 감쇄될 확률이 매우 낮습니다.

벽끝의 처리는...
제가 위에 올려 드린 원형 표시 부분의 마감재를 뜯어 내면, 콘크리트와 단열재가 밀착되어 있지 않고 떠 있는 틈새가 있을 것입니다. 그 부분을 연질폼으로 메워야 하는데, 직접 하기는 어려우실 것이라 동네 인테리어 가게에 의뢰를 해야 할 것 같습니다.
G ㅇㅇ 2023.12.19 18:28
고견 감사합니다.
M 관리자 2023.12.19 20:49
감사합니다.
G ㅇㅇ 2023.12.29 21:19
안녕하세요 관리자님. 답변 주신것에 이어서 추가로 여쭙습니다.

'천장 마감을 뜯고 모서리 중심으로 흡음재 시공'
을 말씀해주셨는데요.

1번 4번 벽쪽 천장에 환기 구멍이 있어 카메라를 넣어 살펴보니,
1번 벽의 경우 천장 콘트리트 모서리쪽에 폼 시공이 되어 있는 것으로 보입니다.

이미 폼이 들어가 있으니 흡음시공이 어느정도 되어 있다고 보고
여기서 이 부분을 뜯어내서 재시공을 하더라도 나아지는건 제한적이라고 보면 되는걸까요?
아니면 여기서 더 개선해볼수 있는 시공 방식이나 재료가 있을까요?
M 관리자 2023.12.30 20:42
사진이 흐려서 판단키는 어려우나, 배관 주변의 폼이 밀실하게 채워진 것으로 보이지는 않습니다.
다만 말씀드린대로 직접음의 전달이 아니라서, 이 부분에 대한 보수가 되더라도 상황은 그리 드라마틱하게 개선될 여지는 적어 보입니다.
Category