설비배관 관련 문의드립니다.

설계/시공관련 질문
질문 전에 먼저 검색을 해주세요.

 

 


설비배관 관련 문의드립니다.

2 개구쟁이 12 3,481 2024.01.19 01:56

안녕하십니까.

항상 적극적인 답변에 감사드립니다.

 

경량목조 단층 단독주택(창고 있고 지역은 진주입니다) 배관 설비 관련 문의 드립니다.

단독정화조 설치 예정입니다.

 

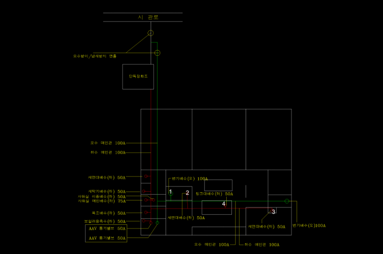
아래와 같이 배관 계획을 세웠습니다. 우선 떠오르는대로 잡아봤습니다.

   1.  배관은 기초의 쇄석다짐층에서에서 위치를 확정하여 수직으로 연장한다.

   2. 옥내 기초내부, 옥외 지반내 배관은 수평/수직 모두 VG1 배관을 사용한다.

   3. 통기관은 신정 통기관없이 오수/하수를 위한 통기밸브를 그림과 같이 보일러실에 설치한다.

   4. 시관로 직전 또는 하수가 정화조와 만나기 전에 집수정(오수받이/ 냄새방지 맨홀?) 을 설치한다.

   5. 필요시 옥외하수. 오수 배관에 소재구를 설치한다.

 

스크린샷 2024-01-18 오후 11.13.47.png

 

3. 신정통기관까지는 필요하지 않을듯해서 생략하고, 통기밸브를 설치하려고 합니다.

   계획한 위치가 합리적인 곳일까요?  우선 하수의 경우 욕조, 세탁, 싱크가 필요하다 판단 됩니다. 그런데 2.3의 세면대는 그리 크게 영향이 없을듯 한데, 4번의 싱크는 필요할듯해서 4번 싱크에 미니밸브를 하나 설치해야 할까요?  그리고 

스크린샷 2024-01-18 오후 11.14.22.png

 

위의 계획을 아래와 같이 수정하려고 합니다. 크게 차이가 있을까요? 오수의 경우 위의 계획보다는 아래의 계획처럼 하는것이 통기밸브가 효과적으로 작동할듯 한데 어떨까요? 오른쪽에 떨어져 있는 변기오수배관 뒤쪽에도 통기밸브가 있는것이 맞을까요? 통기배관의 적정위치, 배관구성에 대한 조언 부탁드립니다. 


스크린샷 2024-01-18 오후 11.14.48.png

 

4.  정화조배수에서 시관로 직전이나 정화조의 배수관과 하수관이 만나기 직전 하수관에 집수정(오수받이/ 냄새방지 맨홀)이 설치 되어야 할까요? 냄새의 역류 방지를 위해 오수받이나 냄새방지 멘홀설치에 대한 의견이 많은데 필요하다면 정확한 필요 위치를 알고 싶습니다. 우선 배관의 냄새 역류는 기본적으로 봉수에 의해 차단 되어야 하는데, 봉수가 파괴된다면 집수정과 별개의 문제라고 생각됩니다. 그래서 만약 봉수가 파괴된 상태에서 냄새의 역류 차단을 위해 오수받이가 필요하다는건데, 그렇게 효과가 있을까 싶기도 합니다. 하수의 경우 침전조의 역할은 할듯 합니다만. 정화조 배수에서 집수정(오수받이, 냄새방지맨홀)의  역할이 좀 애매한듯 합니다. 정확한 정보 부탁드리겠습니다.

 

5. 적정구배를 적용해 옥외구간에 배관이 설치 됐다고 한다면 소규모 건축의 경우 옥외배관에 소재구가 필요할까요?

 

소규모 건축/ 단층단독주택의 설비 배관에 대한 기준등이 있다면 알고 싶습니다. 제가 공부가 부족한 가운데 여러 의견과 이야기를 들어보면 그럴듯한데 생각해보면 과연 그럴까 하는 경우가 많아 헷갈립니다. 

 

답변 부탁드리겠습니다.

 

 

Comments

M 관리자 2024.01.23 20:35
안녕하세요.. 답변이 늦어서 죄송합니다.

--------------
3. 오수배관은 올려 주신 그림 중에서 아래 그림으로 변경을 하는 것이 좋습니다. 위의 그림은 수평 상에 있는 변기와 변기 사이에 통기밸브를 하나 넣어 주어야 합니다.
물론 아래 그림도 좌우 변기 사이에 통기밸브를 하나 넣어 주어야 하는 것은 같지만, 동시 사용될 확률이 비교적 낮으므로 괜찮을 것 같습니다.

4. 시오수관 직전에 필요합니다.
이는 시오수관 내부의 메탄가스가 실내로 유입되는 것에 대한 첫번째 안전장치이기 때문이기도 하고, 시오수관의 역류시 안전고리 역할을 하기도 합니다.

5. 딱히 필요로 하지 않습니다. 특히 VG1의 경우 높은 강도로 인해 배관 청소가 용이하기에 그렇습니다.

소규모라 해도 중대형건물과 배관의 설계 개념은 크게 다르지 않습니다. 그저 설비의 종류만 다를 뿐.. 다만 그 사용량과 배출량이 적고, 위생기구의 동시사용률이 높지 않아서 약간의 안전장치만 고려하면 큰 하자로 이어질 일이 없기에, 공부가 그리 깊이 들어갈 필요는 없습니다.

그저 협회에서 이야기하는 배관의 규격, 기울기, 이중배수 그리고 말씀하신 통기관 또는 통기밸브 정도만 지켜도 좋은 결과를 보장 받을 수 있습니다.
G 시그림나무 04.16 10:40
안녕하세요. 저도 오하수 배관을 쇄석다짐층에 시공하려고 하는데요.
의문이 하나 생겼습니다. 침하가 발생한다면 버림층 위라면 침하에 조금 더 안정적인거 같은데요.
쇄석층에 놓는다면 침하의 영향을 버림 위에 오하수배관을 시공하는 것보다 더 영향을 받을거 같습니다.
침하발생가능성이 있다면 버림위층으로 하는게 나을까요? 아니면 상관없을까요?
M 관리자 04.16 11:31
침하 발생 가능성이 있다고 하셨는데요. 그 근거가 무엇일까요?
G 시그림나무 04.16 12:02
자세히 질문을 하지 않았네요. 죄송합니다.
쇄석층 하부에 장기적으로 침하 발생 가능성이 있는 경우가 있을거라 생각했습니다. 그 요인이 무엇일까요?
장기적으로 부분침하가 발생한다면(이렇게 가정하는게 맞을지 모르겠지만 가정해봅니다.) 버림위의 오하수관 부분침하의 영향을 받지 않을거라 생각하는데요. 쇄석아래는 오하수관이 시공된다면 영향을 받을거 같아 질문드렸습니다.
M 관리자 04.16 12:34
조금 결이 다른데요.
침하는 있으면 안되어요. 만약 침하가 예상되는 땅이라면 건물을 지어서도 안되고요.
G 시그림나무 04.24 13:38
네 이해했습니다. 쇄석층에 오하수 배관을 시공하는 것이 드문것으로 알고 있습니다.
현재 다짐한 쇄석층을 파내고 오하수 배관을 했는데요. 보호층 없이 쇄석위에 했습니다. 보호층으로 모래를 깔지 않으면 슬라브의 무게로 문제가 발생할수 있을까요?
M 관리자 04.24 15:24
보호층이 무슨 의미인지 조금 구체적으로 적어 주시면 답변에 도움이 될 것 같습니다.
G 시그림나무 04.24 15:33
쇄석보다 배관을 보호할수 있는 모래나 흙을 보호층이라고 생각했습니다.
M 관리자 04.24 15:35
그런 의미라면 쇄석의 하중 분산 정도가 더 크기에, 말쯤하신 보호층에 더 적합합니다.
G 시그림나무 04.24 15:45
직접 시공 하다보니 디테일한부분에서 의문점이 많습니다. 질문할때마다 답변주셔서 항상 감사한 마음입니다.
2 권희범 04.24 23:49
쇄석층에 오하수 배관을 설치하는 게 여러모로 좋습니다.
철근도 피복 두께도 설계대로 할 수 있고 타설압으로 인한 배관 이탈의 위험도 줄일 수 있습니다.
혹시 모를 오하수 배관의 누수도 건더기가 새는 정도가 아니면 쇄석층에서 커버가 가능합니다.
다만, 쇄석 위에서 정확한 위치를 잡기 어렵기 때문에 버림 형틀을 짜서 그걸 기준으로 배관 위치를 잡으면 큰 변경 없이 기초 타설까지 할 수 있습니다.

배관 위 다짐 없는 쇄석층이 버림의 하중이나 기초 하중으로 부분 침하가 있을까 걱정하시는 것 같은데 그런 일부 구간으로 침하가 생긴다면 건축 자체가 성립이 안됩니다.
걱정 마시고 쇄석층 다짐을 콤팩타나 람마 말고 1톤진동로라로 하시면 됩니다.
층다짐도 중요하구요.
쇄석은 다짐이 필요 없다는 얘기가 많은데 다지고 안 다지고 들어가는 쇄석량의 차이가 적어도 10프로는 납니다.
G 시그림나무 04.25 16:15
공부하면서 짓다보니 걱정되는 부분들이 생깁니다.
패시브협회의 자료와 영상이 많이 도움이 되었고, 이런 질문들에 대한 답변해주시는 전문가분들이 계셔서 정말 감사합니다.
권희범 빌더님 감사합니다.
Category