연와조 건물 벽체 수선 관련 질문드립니다.

설계/시공관련 질문

질문 전에 먼저 검색을 해주세요.

 

연와조 건물 벽체 수선 관련 질문드립니다.

G 가물치 3 2,622 2024.09.20 18:46

KakaoTalk_Photo_2024-09-20-18-36-25.png

 

RenderedImage.jpeg

 

안녕하세요, 수고가 많으십니다.

 

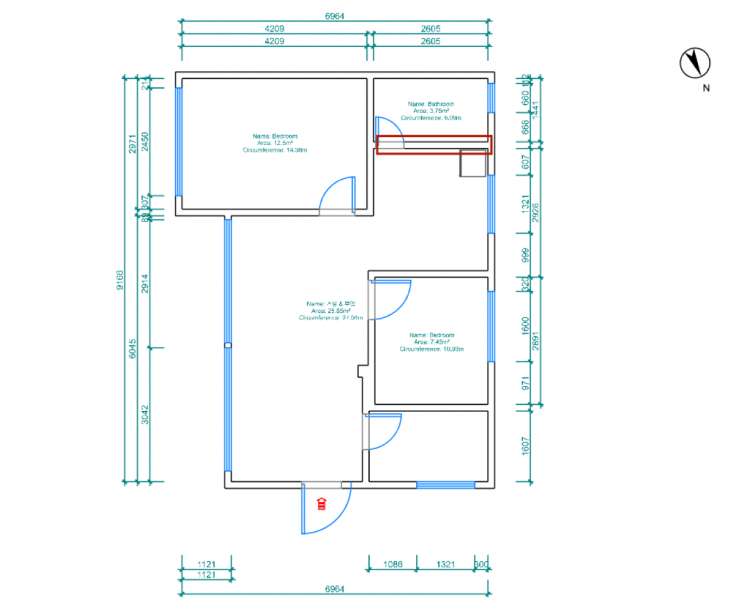
다름아니라 도면상 붉은 테두리로 표시한 부분에 있는 문을 벽 중앙 방향으로 60cm가량 옮기고 싶은데 혹시 이 경우에도 구청 허가가 필요할까요? 

 

연와조 단독주택  2/2층입니다. 화장실 안쪽에서 보면 시멘트 벽돌을 쌓아 만든 벽으로 확인되고 1층으로 이어지는 벽이 아니라 힘을 받는 벽처럼 보이지는 않았는데 이런 경우에도 건축사나 관련 전문가의 도움을 받아 구조보강을 받아 수선을 진행해야하는지 모르겠네요. 

 

오늘 주민센터 가보니 70년도에 준공된 건물이라 관련 도면이 아무것도 없다더라구요. 

Comments

M 관리자 2024.09.21 11:05
안녕하세요.
조적구조의 건물은 모든 벽이 내력벽이라고 봐야 합니다. 그러므로 대수선허가 대상입니다.
다만 건축사가 판단하여 해당 벽이 내력벽이 아니라고 확인을 해준다면 문을 옮겨도 무방합니다.
G 가물치 2024.09.21 18:23
답변 감사드립니다!
M 관리자 2024.09.21 20:25
감사합니다.
Category