욕실 및 난방 배관

설계/시공관련 질문

질문 전에 먼저 검색을 해주세요.

 

욕실 및 난방 배관

1 케이비제이 5 1,699 03.17 23:00

2025. 03. 18 : 4. 도면추가, 5. 현재상황 

 

안녕하세요.

몇가지 질문이 있어 글을 남깁니다.

 

1. 난방 공사 배관을 형성 하는 방법? 

가) 보일러실부터 벽을 뚫고 최단거리로 각 배관을 형성한다.

나) 벽을 뚫지 않고, 모든 입구를 지나서 50M 이내로 각 배관을 형성한다

 

2. 욕실 난방 배관

욕실에서 들어가거나 빠져나오는 배관의 경우 욕실 내부 또는 외부로 지나갈때 외부의 스티로폼 위로 올라 가야하나요?(이렇게 되면 바닥보다 높은 외부와 대각선으로 형성) 아니면 욕실 바닥 배관의 높이와 같이 스티로폼 아래로 배관을 형성해서 보일러실 까지 가나요?

 

3. 욕실 공사 순서

시작 : 콘크리트 슬라브 - 1.액체방수 2.고뫄스 3.욕실 난방 배관 4.욕실 방통(40mm) 6.사모래(30mm) 7.몰탈(두께?) 8.타일

협회에서 본 글에서는 욕실 방통을 별도로 하지않고, 사모래층 속에 배관을 뭍는다고 봤는데요.

그럼,방통 하지않고, 7.몰탈도 제외하고, 바로 사모래 후 타일 공정이 가능하나요? 사모래나 몰탈이나 반죽의 차이일뿐 구배만 맞추고 타일작업이 가능하면 둘중에 하나만 해도 될 것 같아서요.

 

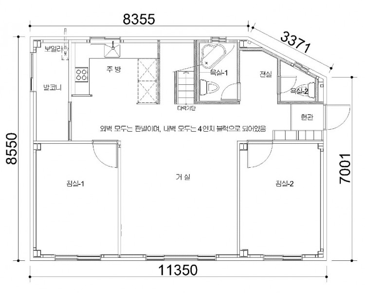
4. 도면(아래)

2층신축.jpg

5. 현재상황

무식하게 아무런 정보 제공도 없이, 질문을 드려 죄송합니다.

주택을 처음 짓는 건축주이며, 중대한 공사(손으로 들수없는 무게나 장비가 필요한 부분)를 제외한 대부분은 직접 시공중입니다.

건축 경험이 하나도 없고, 협회의 글과 인터넷의 정보를 얻어 공사중입니다.

 

신축이며, H빔으로 된 필로티 구조의 2층집입니다. 법적 단열 조건은 만족 된 상태입니다.

외벽은 판넬이며, 내벽은 모두 4인치 조적이 되어있습니다.

 

앞으로 계획상 남은 공정은 문틀 설치, 내벽 미장, 방수, 설비(난방배관등), 전체 방통, 욕실/베란다/현관공사(타일등), 천장 덴조 및 마감(내벽마감 및 바닥은 노출로 해도 될지 몰라 고민중). 순서가 맞는지 모르겠습니다.

 

전기 및 배관에 대한 도면은 없습니다.

전기는 전기사장님과 소통하며 진행중입니다.

설비는 직접 시공을 위해 진행에 앞서 협회의 정보를 얻고자하여 이렇게 질문드립니다.

이 외에도 제가 빠트린 부분이나, 수정하거나 참고할 사항이 있다면 언제든 지적 부탁드립니다.


Comments

M 관리자 03.18 11:25
안녕하세요.
현재의 상황에 대한 설명없이는 답변의 상상 범위가 너무 넓습니다.
신축인가요? 구축을 고치는 것인가요? 몇층인가요? 지금 공사중인가요? 설계 중인가요?
어떤 벽을 뚫는 것이고, 어떻게 돌아가는 것인가요? 보일러실은 어디있나요? 분배기는요?
벽을 뚫을지, 돌아갈지에 대한 고민을 하는 이유는 무엇인가요? 도면에는 어떻게 되어 있나요?
고민을 하신 것은 작업자가 원래 도면대로 하는 것이 불합리하다고 의견을 냈기 때문인가요?
아니면 배관의 양을 아끼고 싶으신건가요? 벽을 뚫기가 어렵다는 것인가요? 뚫으면 어떤 문제가 있는 상태인가요?
1 케이비제이 03.19 13:56
도면과 현재 상황에 대해 추가하였습니다.
M 관리자 03.20 11:03
1. 보일러실에 분배기를 둘 수는 없습니다. 그러면 배관의 길이가 너무 많이 길어지기에 그렇습니다.
평면의 중간쯤 적당한 자리를 확보해서 분배기를 두고, 보일러로 부터 분배기까지 급수/환수 관이 갈 수 있도록 경로를 확보해야 합니다.
보일러가 들어가 있는 발코니 영역과 실내라고 할지라도 급수/환수 배관은 촤소한의 단열이 되어야 하므로, 그 배관과 실내의 난방 배관이 서로 겹치지 않도록 계획이 되어야 합니다.
그러므로 급수/환수 배관은 벽을 관통하여 분배기까지 접근이 되는 것이 더 나은 선택입니다.

2. 바닥의 난방 배관은 모두 단열재위 상부에 위치를 합니다. 그래서 거실의 난방배관과 화장실의 난방배관은 높이차가 나게 되며, 난방 공사를 하는 분들이 알아서 하시겠지만, 너무 급격히 꺽여 들어가지 않도록 유의해야 합니다.
그럼므로 대부분 욕실 문의 외부쪽은 단열재를 파고 들어가서 욕실로 넘어가야 합니다.

3. 화장실은 이중배수를 해야 하며, 방통몰탈을 생략할 수 있습니다. 그리고 타일은 사모래 위에 직접 시공을 합니다. 그러므로 사모래 위에 다시 몰탈타설을 할 필요는 없습니다.

5. 공정의 순서는 대략 맞습니다.
1 케이비제이 03.20 16:41
덕분에 많은 도움이 되어 공사 계획 및 진행에 차질이 없을 것 같습니다.
정말 감사합니다.
M 관리자 03.20 19:23
감사합니다.
Category