30년 구축빌라 비내력벽 철거 가능성

설계/시공관련 질문

질문 전에 먼저 검색을 해주세요.

 

30년 구축빌라 비내력벽 철거 가능성

G 붉은벽돌 8 746 09.06 01:58

안녕하세요, 구축빌라 리모델링 계획관련 질문이 있어 글올립니다.

 

해당 건물은 주요 구조부가 철근콘크리트 구조로 건축도면상 하기의 빨강색 표시벽체를 비내력벽으로 보고 철거 및 확장 계획을 가지고 있습니다.

 

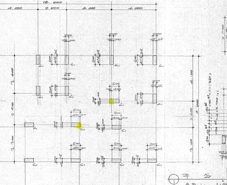
<첨부이미지 1>


0000.JPG


 

해당 벽체 위로는 철콘보가 지나가고 있는데 혹시 해당 벽체를 비내력벽으로 보는게 타당해 보이는지, 혹시라도 제가 놓치는 부분이 있어 해당부분이 내력벽일수도 있는 가능성을 염두해 두고 질문을 올립니다. 또한 하기의 구조평면도에서 노랑색 하이라이트 된 부분은 보를 지칭하는게 맞는걸까요? 철근 표시만 되어있어 난해하네요...

 

<첨부2: 구조평면도>

11.JPG

<첨부3: 주심도>

22.JPG

 

 

번외질문: 추로 건축도면에서는 외벽을 조적벽체로 표시했는데, 단순 예전의 골조 표기방법인지 아니면 예전에는 철콘으로 구조를 먼저 공사한 후 외벽체를 조적으로 시공했나요?

Comments

10 디엔에이ㅣ신범석 09.06 11:10
상부는 내력벽구조 + 1층은 피로티구조로 보이는 구조도면같습니다.
도면으로 가정한다면, 해당 벽은 내력벽으로 보이며, 노란색 하일라이트는 슬라브 보강근으로 보입니다.
M 관리자 09.06 11:19
신소장님 감사합니다.

-------------
비내력벽으로 판단을 하신 근거가 있으신 가요? 저는 내력력으로 보였는데요.
올려 주신 주심도는 기초의 주심이며, 해당층의 기둥을 의미하지는 않습니다. 올려 주신 도면으로는 모두 조적조 건물입니다. (내벽도 조적, 외벽도 조적)

해당 벽을 철거하려면 별도의 철골 보강이 되어야 하는데, 구체적인 보강 방법과 부재 크기 등은 구조기술사에 의뢰를 하셔야 할 것 같습니다.
G 붉은벽돌 09.06 20:37
제가 설명이 부족했나봅니다. 우선 해당 기초의 주심도는 다음과 같고, 라멘조로된 철근콘크리트 구조 입니다. (1층 필로티 x, 1층부터 주거 입니다 총3층 규모). 현장에서 확인했을때 해당벽체는 냉가벽돌로된 조적벽체인것 까지는 확인했고, 기둥과 보가 지나가는데 혹시 내력벽으로 보는 이유가 있으실까요?
G 붉은벽돌 09.06 21:08
그리고 본문에 올린 구조도면은 해당층의 구조평면도이며, 혹시나 간밤에 해당벽체가 조적인지 여부를 왜 미리 말안했냐고 물으실까봐 말씀드리면 오늘 오후에 현장실측다녀오면서 저도 오늘에야 알게되었습니다.
M 관리자 09.06 22:32
제가 합성해서 올려 드린 도면을 보시면..
만약 해당 층의 주심도가 맞다면.. 그 위치에 해당 크기의 기둥이 있다는 의미가 되는데.. 그러면 도면에서 보시다시피 문도 넣지 못하고 창문도 크기가 줄어야 하고, 거실 쪽으로 기둥이 돌출되어 있어야 합니다.
그러므로 비록 처음에는 라멘조로 설계가 되었는지는 모르겠으나, 시공은 조적조로 된 것으로 보입니다.
현장 사진이 없기에.. 이 부분은 직접 확인을 해보셔야 할 것 같습니다.
G 붉은벽돌 09.06 22:50
답변감사합니다 관리자님. 다행히 기존 철거계획 벽체 위에있던 기둥이 그대로 있는것을보아 기본골조는 라멘 (또한 건축물대장상 주요 구조부 명기에 연와라는 말이 없으므로)으로 보아야 할 것 같습니다. 다만 합성주신 도면에서 돌출된 기둥은 아마 인허가 이후 현장수정이 되어 방향을 돌린것 같습니다.

손도면 시대부터 건축실무를 하지않아 아직 알아야할것이 많고, 배움이 부족한 상황에서 구조 관련 부분은 재검토에 재검토를 하게되는것 같습니다. 참고로 구조도면은 캐드에서 선을 따보니 스케일에 맞게 그려진게 아니라 과장되어 그려진 부분이 있네요(약 2배정도 크게 그려짐) 아마 이부분 때문에 더 도면을 읽는데 혼선이 생겼던것 같습니다.
M 관리자 09.07 10:23
그렇다면.. 이 부분은 현장에서 책임을 지는 건축사 또는 관계 기술자께서 판단을 하셔야 할 것 같습니다.
10 디엔에이ㅣ신범석 09.07 10:52
1. 통상적으로 주심도는 바탕  축척보다 2배정도 크게 작성하게 됩니다. 그래야, 정확한 길이를 명기할 수 있기 때문이지요.
2. 오래된 건축물에 대한, 프로젝트를 몇건 진행하다보니, 경험상 느끼는 건, 변수가 정말 많이 있습니다. 마감재등을 철거하고, 바탕 부분에 대하여 확인가능한 부분은 최대한 확인하시고 진행하시는 것이 , 좋을 것으로 생각됩니다.
Category