냉장고장 폭이 다릅니다

하자관련 질문/사례
질문 전에 먼저 검색을 해주세요.


냉장고장 폭이 다릅니다

G 시소빵리필 3 1,846 2024.11.17 23:12

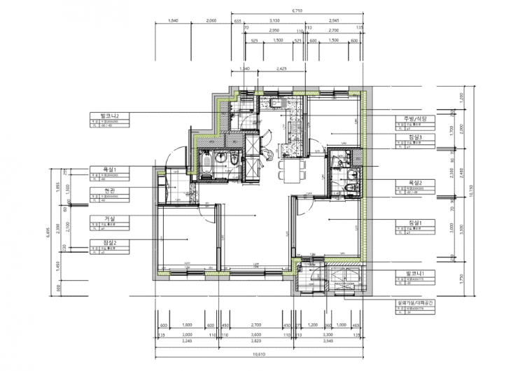
아바인퍼스트 더샵 59C 평면도_241023_1.png

 

냉장고장 전경.jpg

 

70cm.jpg

 

68cm.jpg

 

 

 

안녕하세요, 곧 입주를 앞두고 사전점검을 다녀왔는데 냉장고장 폭이 한쪽은 700이고 한쪽은 680이 나옵니다.. 키친핏 냉장고 구입해놨는데 저상태로 넣으면 한쪽이 튀어나오게 생겼는데 시공사에서는 정상시공이라고 하는데 어찌 해결해야될까요?? 냉장고장 뒤로는 공용욕실이라 조적벽인거 같은데 전면 재시공 요청하면될까요?? ㅠㅠ 다음달 6일 입주라 시간이 많이 없는데 그 전까지 처리하려면 어떤식으로 처리해야될지 궁금합니다! 도와주십쇼 ㅜ

Comments

M 관리자 2024.11.18 09:39
안녕하세요.

이 부분은 그냥 사용하시길 권해 드립니다.
G 시소빵리필 2024.11.18 21:00
답변감사합니다!
그냥 사용하라고 말씀하신 이유가 있을까요~!?
M 관리자 2024.11.18 21:15
이를 하자로 인정받기 위해서는 너무나 지난한 절차 (혹은 소송)이 필요하기 때문입니다.
건축에서 허용오차범위가 있는데, 이 것이 그 범위를 넘어 섰는지 그렇지 않은지 애매한 부분이라서 그렇습니다.
단순 길이에 대한 오차라면 법이 정한 오차범위 내에 있으며, 이를 부정하기 위해서는 분양 카다로그와 견본주택과의 차이를 들어야 하는데, 이 부분은 소송으로 가야 가릴 수 있기도 하지만, 승소는 어려워 보입니다.
물론 소송을 해서라도 이를 바로잡고자 하신다면 소비자의 마음이라 어쩔 수 없지만, 득보다는 실이 많아 보여서 그리 답변 드렸습니다.
Category