도면 불일치와 누수하자

하자관련 질문/사례
질문 전에 먼저 검색을 해주세요.


도면 불일치와 누수하자

G 스트레스 17 1,772 2024.10.15 02:06

안녕하세요.

5년차 아파트에 거주하고 있습니다.

현대건설에서 시공했으며 안방과 거실가벽에서 곰팡이가 발견되어 누수를 확인하였습니다.

 

세대안에서 발생한 누수여서 세대가 책임이 있다라는 관리사무소에 이야기가 있었습니다.

 

그래서 도면을 요청했습니다.

 

또한 저희는 필로티 2층이어서 아래층이 없습니다.

일상책임보험이 있는 상태고 이 보험을 통해서 했으면 하는데 피해자가 없어서 할수있는 상황도 안되는것 같습니다.

 

우선 일층 로비에 가서 천장을 바라보았더니 누수가 나는곳에 얼룩이 져 보입니다.

 

또한 도면을 보았더니 가벽에는 수도관이나 이런부분이 따로 없었습니다.

그래서 벽을 일부 해체 하였습니다.

그런데 베란다 급수라인이 발견되었습니다.

 

우선 누수업체를 불렀습니다.

 

압력검사등 해보았더니 이상이 없다고 합니다.

 

윗층에 윗윗층까지 확인했으나 누수 되는 부분이 없었습니다.

 

누수업체쪽에서는 우수관에서 물이 안방으로 흘러간부분으로 확인된다고 합니다.

 

우수관은 공용부분이고 이부분이 쟁점이 될듯 합니다.

 

시공사에서는 도면 불일치에 대해서 이야기 하였으나 답변을 받지 못했습니다.

또한 하자보수에 대한 소송이 걸려 있는 상황이어서 보수도 받지 못한다고 하였습니다. 

법원에서 사람이 나와서 체크 했을때는 발견하지 못한 상황이었습니다.

 

전용배관이라고 하면 세대가 확인이 잘되는 곳에 있어야 하는데 매립되어 있는 배관까지 어떻게 전용이라고 하는지 전혀 이해가 되지 않았습니다. 못이라도 잘못 박았더라면 물난리가 났었겠죠.

 

이럴경우 어떻게 해야 할까요?

 

또한 누수업체에서는 제습기를 틀고 난방을 돌려서 바닥을 먼저 다 말리는 작업을 더 해보자고 하였고 지금도 돌고 있는 중입니다.

 

사진을 첨부합니다. 해박한 견해와 다양한 솔루션제공 부탁드립니다.

 

나몰라라 하는 관리사무소와 답변이 없는 시공사와 홀로 싸우고 있습니다.

Comments

M 관리자 2024.10.15 07:51
안녕하세요.

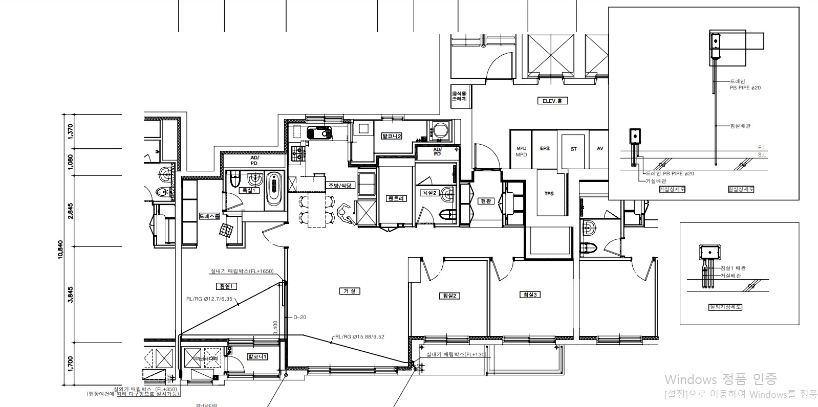
올려 주신 도면에서 우수관의 위치를 표시해 주실 수 있으실까요?
G 스트레스 2024.10.15 11:14
발코니 윗쪽 빨간색 두개 동그라미 인것 같습니다.
M 관리자 2024.10.15 14:00
매립배관 여부와 무관하게 세대 내에서 사용되는 배관이라면 전용배관 맞습니다.
우수관 쪽에서 흘러간 것이 맞고, 그 우수관을 사용자가 별도로 손을 대지 않았다면 공용의 문제입니다.
G 스트레스 2024.10.15 14:13
우수관을 손을 대지 않았습니다. 그래서 관리사무소에 요청했고 관리사무소에서는 현재 비도 많이 오지 않은 상황에 물이 계속 이렇게 나오기가 어렵다는 입장을 내새우고 있습니다.
또한 우수관에서 문제가 있었다면 범람했을것이고 흘러나오는물이 굉장히 깨끗한 상황입니다.
매립배관이 잘못 위치해있다고 하면 관련해서 제재사항이나 도움을 받을수 있는 부분은 없는걸까요?
G 스트레스 2024.10.15 14:16
또한, 아파트 관리업체가 있는데 그곳에서도 감정을 받고자 제가 따로 신청을 했습니다.
그럼 공용배관에 문제다라는 부분이 판단이 되면 여태까지 들었던 감정비용을 다 청구 받을수 있는지도 궁금합니다.
M 관리자 2024.10.15 14:17
네 그 매립배관 자체의 누수가 아니라면 (누수는 하자보수 기간이 5년 이므로) 제재할 것은 딱히 없습니다.

그럼 그 누수업체는 무엇을 근거로 우수관의 누수라 추정을 했을까요?
공용의 문제라면 청구가 가능하나, 임의 검사인지, 관리사무소가 공용의 문제를 완강히 부인하여 어쩔 수 없이 검사를 따로 한 것인지의 여부가 중요합니다.
G 스트레스 2024.10.15 14:17
누수업체에서도 우수관을 통한 누수로 사료됨이라고 작성되어 있는데, 이부분을 증명할수 있는 방법이 있을까요? 다른업체에서 내시경을 통한 확인한다고 하는데 그부분이 가능한지도 궁금합니다.
M 관리자 2024.10.15 14:19
그 증명은 누수업체에서 해야 할 것 같습니다. 의혹을 제기한 곳에서 최소한의 근거를 가지고 했을테니까요...
내시경도 가능하기는 하나, 복불복일 확률이 높습니다.
G 스트레스 2024.10.15 14:24
유가쪽에 방수부분이 없다고 들었습니다.
그래서 그 부분으로 의혹을 제기 하셨고 관리사무소 업체 쪽에서 나와서 확인했을때 틀렸다고 하면 환불을 요청해야 하는 상황으로 판단하고 있습니다.

그런데 기압테스트 할떄 저희집에 누수가 없음에도 불구 하고 세대에서 책임을 지어야 하는지.

저희집에는 누수가 없으니까 원인을 관리사무소에서 찾아야 한다고 계속 주장을 해야 할지 답답할 따름입니다.

저희는 지금 생활을 할수 없는 상태 입니다. 그래서 빨리 원인파악을 하고 싶은데 우리집에 누수가 없으니 공용쪽을 확인해봐달라고 요청했으나 그것으로는 확인 할수 없다는 답변을 받았습니다.
M 관리자 2024.10.15 14:32
지금 상황은 그 끝을 쉽게 볼 수 없는 상태입니다.
억울한 점이 분명 있으시겠으나, 우선은 우수관의 문제라고 추정이 되면.. 사람을 불러서 우수관의 바닥 주위를 철거해서 물이 있는지를 보시는 것이 좋겠습니다.
그리고 말리는 작업도 계속 하셔야 하고요.
G 스트레스 2024.10.24 17:38
안녕하세요. 저번에 도움주셔서 감사 드립니다.

 우선 전용배관에 이상 없음을 확인하고 관리사무소에서 배관설계도를 잘못주어 그동안의 일처리가 이상하게 흘렀습니다.
알고 보았더니 안방 가벽에 매립되어 있는 부분은 벽걸이에어컨을 연결하는것이었습니다.

저희 집은 시스템 에어컨으로 천장에 달려있고 이 매립관은 이용하고 있지 않은 세대 입니다.
건설회사에서는 공용배관임을 이야기 하고 있는데 관리사무소에서는 공용배관을 확인하지 않았음에도 불구하고 윗세대를 찾아보라고 합니다.

전용배관에서 문제이고 천장에서 물이 떨어지면당연히 그렇게 하겠지만, 원인세대를 찾고 구상권을 청구하라고합니다. 오히려 관리사무소에서 확인하고 그 원인세대에 구상권을 청구해야 하는것이 아닙니까?

저희 바닥에 물고임현상이 일어 나고 천장은 매우 깨끗하고 위층이며 위윗층까지 깨끗함을 확인하였습니다.

이게 저희집에서 누수 원인을 찾아야 하는 부분인지를 모르겠습니다.

여름이나 되야 에어컨 가동할때 원인을 찾을수 있다는 말만 내놓는 관리사무소가 이해가 되지않습니다.

벽을 뚫어놓고 살아야 한다는데 이 내용을 받아 드려야 하는것일까요?

저는 우선 공용배관에서 물이 세는지는 모르겠으나 물고임현상이 공용배관에서 보이고 전용배관에서는 문제없음을 확인하고 제출했으니 이제 공용배관에 문제가 있는지 없는지를 체크 해달라고 해놓은 상태 이나 관리사무소에서는 묵묵부답입니다.

어떻게 진행하는것이 좋을까요?

우문현답 부탁드립니다.
G 스트레스 2024.10.24 17:39
건설사 답변을 첨부드립니다.
M 관리자 2024.10.24 19:04
모든 전용 배관에 대한 누수검사를 통과했고, 지금은 에어컨을 사용하지도 않기에 에어컨 배관의 문제라면.. 지금 찾을 수는 없습니다.
우수관이라면 비와의 연관성이라도 보면 되는데 에어컨은 그게 어려우니까요.

또한 원인과 별개로 생활은 해야 하니..
우선 바닥을 제대로 말리고, 마감을 하시되.. 사진에 보이는 물이 고여 있는 부분이 시각적으로 확인될 수 있을 정도의 구멍을 내고 비가 올 때 상태를 확인하는 정도일 것 같습니다.

에어컨 배관의 문제라면 내년 여름까지는 아무일도 없을 것이기에, 생활이 가능할 것이고..
우수관의 문제라면 비가 올 때 다시 바닥이 젖을 테니.. 그 때 우수관이 문제라고 확정할 수 있고요.

불행히도 더 나은 방법은 떠오르지 않습니다.
G 스트레스 2024.10.24 21:30
우수관은 따로 문제 없다고 합니다.
저도 방법은 점검구를 만들고 우선 가벽을 치고 집중키트 제습기를 틀어놓고 여름까지 기다릴수 밖에 없다고 생각이 드나, 지금까지 들어간 비용등은 전용배관에는 없었으니 관리사무소에서 비용처리 하고 여름을 기다려서 관리사무소에서 원인세대를 찾든, 진행해야 한다는 입장입니다.
우선 에어컨 드레인이 의심이 된다고 하고, 전용배관엔 이상이 없고 에어컨 드레인 배관은 공용배관이라고 하니, 관리사무소에서 원인을 찾고 업무를 진행해야 한다고 보는데, 관리사무소에서는 전혀 생각이 없습니다. 여름까지 기다려서 원인세대를 저한테 찾으라고 합니다.
공용배관에 일인데 저희가 피해를 보고 있는데 왜 제가 찾아야 하는것일까요?
M 관리자 2024.10.24 21:38
그 부분은 당사자 간의 문제라서 제가 딱히 개입할 여지는 없어 보입니다.
G 정은미 10.04 21:48
안녕하세요.
저희도 필로티2층세대인데 작년 바닥밑에서부터 벽으로 벽지가 젖어 확인결과 공용에어컨드레인 역류로 확인되어 공용에어컨드레인을 뚫었다하였는데 올해 똑같은 상황입니다. 작년 관리소에서 보험처리로 수리해줬었고요.
얼마나 말리고 수리하셨나요?
어떻게 처리되셨는지 궁금합니다.
M 관리자 10.09 02:21
글을 쓰신 분이 '정은미' 님의 질문을 볼 확률이 극히 낮습니다.
답변을 기다리실까봐 노파심에 댓글을 남깁니다.
Category