거실 아트월 주변 벽면 곰팡이

하자관련 질문/사례
질문 전에 먼저 검색을 해주세요.


거실 아트월 주변 벽면 곰팡이

G 호띵 3 2,229 2024.09.09 14:31

하자의 원인을 찾을 수 없어 문의드립니다.

어떻게 풀어 가면 좋을지 의견 부탁드립니다....


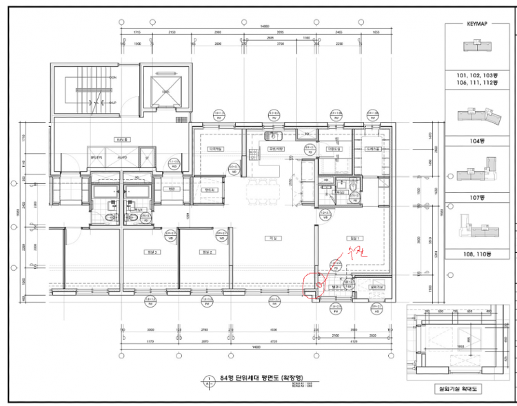
※ 상황 설명


1. 24년 4월 신축 입주하였습니다.


2. 8월경 거실아트월과 붙어 있는 벽에서 곰팡이가 피어올라 A/S를 신청하였습니다.


3. 벽지를 때어보니 곰팡이가 있어 석고를 때어냈고, 아트월 쪽도 곰팡이가 있어보여서 깨서 뒷면의 석고를 보니 모두 곰팡이가 먹은 상태였습니다.


4. 물이 흐는 흔적은 없고 내부 습기로 인한 곰팡이 모양으로 보여졌습니다.


5. 건설사에서느 에어컨 결로라고 하지만, 확장형이라 바로 뒤에 위치한 수전이 의심되어 단열재를 걷어내고 부엌 옆 세탁기 배수로로 물을 흘려보내면서습도를 체크해보았습니다. 세탁기 배수관 사용전에는 58로 계속 유지되다가 세탁기배관에 물을 흘려보내면 거실 벽의 앞의 습도가58%에서 82%까지 올라가는 것을 확인하였습니다. 아무리 글라스울의 단열재가 있다고 해도 뒷벽이 80%까지 오르면 비닐감싼 글라스울이 재 역할을 할까 싶습니다. (누수가 맞는지 문의드립니다.)


6. 또한, 이슈가 되는 벽에서 물이 흐르면 하구수 냄새가 계속 납니다. 그러나, 수전 사용시에도 거실쪽에 육안으로 물이 흐르는 것이 보이거나 하지는 않습니다.


7. 이 경우 누수가 맞을지 문의드립니다. 그리고 다음 스텝은 어떻게 가는게 맞을지 문의드립니다.


평면도(그림).png

 

KakaoTalk_20240907_224236110_09.jpg

 

KakaoTalk_20240907_224236110_06.jpg

 

KakaoTalk_20240907_224236110_05.jpg

KakaoTalk_20240907_224236110_07.jpg

KakaoTalk_20240907_224236110_01(마지막).jpg

KakaoTalk_20240907_224236110_022.jpg

 

KakaoTalk_20240907_2242361102.jpg

 

KakaoTalk_20240907_225836096.jpg

Comments

M 관리자 2024.09.09 19:00
우선 철재 스터드의 하부 바닥면에 물기가 있는지 보셔야 하는데요...
제가 의아한 것은... 글을 처음 풀어가실 때 수전을 언급하셨는데, 정작 실험은 하부구로 물을 보내는 것으로 하셨다는 점입니다.
그렇다는 것은 일단 수전(상수)쪽에서의 누수는 배제를 한 것으로 보고, 하수배관의 누수를 의심하고 계신 건가요?
만약 그렇다면, 시공사를 통해서 그 하수배관이 어디를 통해서 어디로 나가는지를 보셔야 할 것 같습니다.
그리고, 해당 배수구와 수전을 전혀 사용하지 않은 상태에서 벽면의 습기가 건조되는지를 함께 살펴 봐야 하고요.

지금의 정보로는 원인을 찾기는 아직은 어렵습니다.
G 호띵 2024.09.10 09:50
처음에는 수전을 의심하였는데요.  뒷 수잔은 아닌것으로 확인 되었구요.
수전이 아니라 부엌옆 세탁실 배관을 통해 물을 흘려보내니 명백하게 습도가 올라 가는 것을 확인하였습니다.
또란 철재스터트 하부 면에는 물이 흐른 흔적은 없습니다.
거실 벽면의 습기는 세탁실 하수도에 바람을 쐬면 내려갑니다.
M 관리자 2024.09.10 11:16
이 하자는 저도 원인을 전혀 모르겠습니다.
하수배관에 물을 흘려 보낼 때, 실내 벽면의 습도가 높아질 수 있는 유일한 가능성은 그 배관에 균열이 있다는 것인데, 위에 말씀드린 것과 같이 해당 배관의 경로 정도는 파악되어야 최소한의 연관성 추측이 가능할 것 같습니다.
그러므로 우선은 의심이 가는 하부배관이 어디를 지나서 어디로 가는지를 확인할 필요가 있습니다.
Category