신축 방 한곳에서 시멘트 냄새같은 비릿한 냄새가 납니다

하자관련 질문/사례
질문 전에 먼저 검색을 해주세요.


신축 방 한곳에서 시멘트 냄새같은 비릿한 냄새가 납니다

G 김동미 17 2,951 2024.09.09 17:45

안녕하세요

입주한지 3달째이고, 침실2번 방 한곳에서 제목처럼 시멘트 냄새같은 가끔은 비릿한 냄새가 납니다

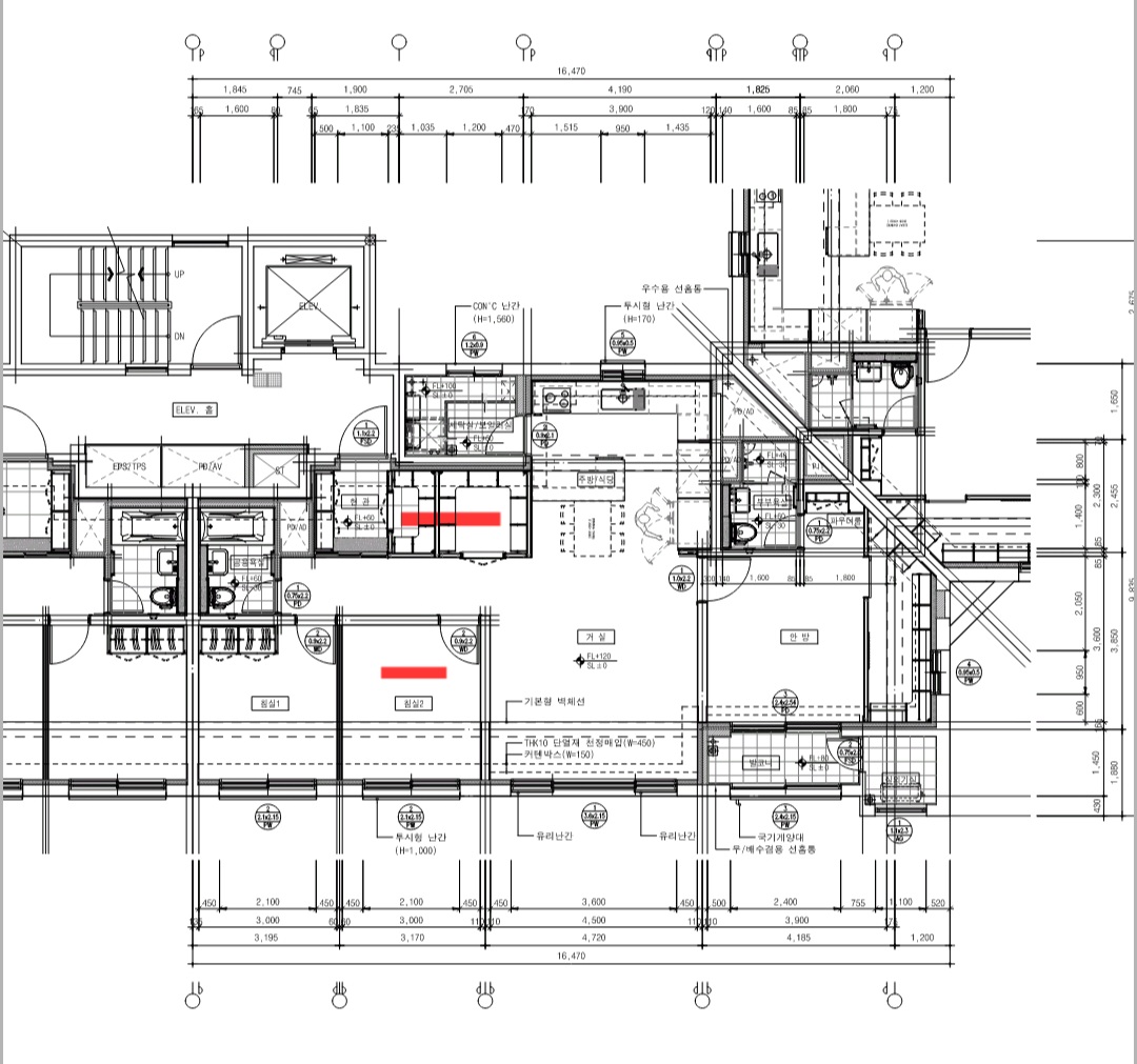
사진 첨부보시면 빨간색 벽면쪽(시멘트벽)에서 유독 냄새가 더 나고 오히려 석고보드쪽은 덜 납니다

빨간색 체크 벽면 위쪽으로 배관들이 있던데 그 부위는 폼으로 처리가 안되잇는것도 냄새와 관련이 있는지도 궁금합니다

(천장을 개방했던 이유는 입주전 스프링클러 배관에서 미세한 누수발견되서 그렇습니다-처리완료)

현관 펜트리에도 결이 다른? 오래된 쩔은? 그런 냄새가 나거든요. 이 냄새가 확실히 비오기전 심하고 또 어떤날은 괜찮아서 하자팀에서는 이상이 없다고 하는데 참 어렵고, 답답합니다

도움 부탁드립니다.

 

 

Comments

M 관리자 2024.09.09 23:30
안녕하세요.

우선 아래 글을 보시면 도움이 되실 수 있으세요.
https://www.phiko.kr/bbs/board.php?bo_table=z4_06&wr_id=51
https://www.phiko.kr/bbs/board.php?bo_table=z4_03&wr_id=37254
https://www.phiko.kr/bbs/board.php?bo_table=z4_03&wr_id=27415
G 김동미 2024.09.10 20:24
네 알려주신 글들 읽어보았습니다 사실 잘 모르겠지만 최대한 여러번 읽어보았습니다...
우선 저희 공용욕실 및 부부욕실 천장을 열어보았는데 냄새는 없었습니다만, 공용욕실에서만 마개? 뚜껑이 열려있는것을 발견하였습니다. 이것의 용도는 무엇인지 여쭤봐도 될까요 그리고 이것이 혹시 현관 펜트리 및 침실2번방에서 나는 냄새와 관련이 있을까요? 관리사무실에서 도면도 확인해볼 예정입니다.
늘 감사합니다..
M 관리자 2024.09.10 20:29
천장에 냄새가 없다면, 해당 위치의 문제는 아니고요.
도면을 찾으시면 냄새가 나는 위치를 표시하셔서 올려 주시면 조언을 드리도록 하겠습니다.
G 김동미 2024.09.10 21:51
입주민분중에 도면이 있으신분이 있어서 지금 첨부하겠습니다
*침실2번 (시멘트 냄새)
*현관 전체 또는 현관 펜트리안에서 더 냄새가 많이 풍기는듯
-(오래된 플라스틱?같은 냄새)
*가끔씩 복도에서도 미약하게 나는거 같은 느낌.
3곳 모두 공간에 환기 디퓨저가 있습니다.
G 김동미 2024.09.10 21:53
빨간색 표시된 장소가 냄새 나는 곳입니다.
M 관리자 2024.09.10 22:13
혹시 환기장치를 가동할 때와 끌 때의 차이가 있을까요?
G 김동미 2024.09.11 16:17
특별히 환기장치 on/off 일때 차이점은 못느꼈어요
G 김동미 2024.09.11 16:19
혹시 여기 표시해둔 배관주변부에 폼처리가 안된것도 관련이 있을까요? 다른곳은 배관주위에 폼 처리가 되있더라구요
G 김동미 2024.09.11 18:49
오후에 시공사 하자팀 직원이 방문하여 본문에 첨부된 사진에서 빨간색 체크된 벽면의 도배지를 뜯었습니다.
도배지 뜯으면서 동시에 암모니아, 파마약, 찌린내같은 냄새가 확 났습니다. 시멘트 벽면에 냄새가 스며든거 같습니다.
원인은 잘 모르겠다고 하네요. 며칠 지켜보자며 돌아 갔는데, 지금 비가와서 더 그런지 도배지 뜯고나서부터 냄새가 엄청나네요. 이런 방에서 아이를 재웠다고 생각하니 분노가 끓어오르는데요..
짐작가는 원인이라도 알고싶습니다.
M 관리자 2024.09.11 19:30
그렇다면 덕트의 문제는 아닌 것 같고, 너무 죄송한 표현입니다만.. 공사 중 소변을 보았을 수 있습니다.
그러므로 사진에 보이는 것이 석고보드 면이라면 그 석고보드까지 모두 철거를 한 후에 내부의 상황을 보셔야 할 것 같습니다.
G 김동미 2024.09.11 19:47
아닙니다 빠른답변 감사합니다. 석고보드 벽면은 오히려 냄새가 덜 나는듯하고, 지금 사진속의 벽면(강한냄새)은 시멘트 입니다. 베이크아웃이나 그런걸하면 좀나아지긴 할까요...
M 관리자 2024.09.11 19:55
베이크아웃을 해도 되는데... 냄새의 강도에 따라서... 걸레받이, 그리고 벽과 만나는 바닥의 마감재를 들어내고 락스를 뿌린 후 건조를 시키는 과정을 거치는 것이 좋습니다.
그럼에도 벽의 하부면이나 바닥 모서리 쪽에서 냄새가 계속 나고, 완화가 되지 않는다면 벽에 붙어 있는 바닥(난방배관용 몰탈층)의 몰탈을 일부 깨서 같은 과정을 거치는 것이 좋습니다.
G 김동미 2024.09.11 21:08
어제 공용욕실 천장 냄새를 맡았을때는 아무 냄새가 없었는데, 오늘 혹시나 싶어서 냄새를 맡아보니 천장에서 시멘트 냄새가 나네요.  어제 욕실 천장에 사진을 찍어두었는데 시공사에 요청해서 이부분들 마감처리 해달라고 요청해야할까요?
반복되는 질문에 죄송하고.. 정성스러운 답변 정말 감사합니다ㅠ
G 김동미 2024.09.11 21:09
공용욕실 사진입니다
G 김동미 2024.09.11 21:15
참고로 어제 문제의 침실2번 방에서도 냄새가 평소보다 약하게 났었습니다.(어제는 공용욕실 천장도 냄새가 없었습니다)
오늘은 침실2번 냄새가 심하고, 공용욕실 천장도 시멘트냄새가 납니다 (비내림)
이것 또한 관련이 있을까요..?
M 관리자 2024.09.11 21:17
거기까지의 추정은 제가 함부로 추측할 수는 없고, 냄새가 가장 심한 곳을 해결하고 그 추이를 보는 것이 최선같습니다.
다만 말씀하신 틈새와 구멍(?)등은 막아서 더 나빠질 것은 없기에, 보수를 요청하셔도 될 것 같습니다.
G 김동미 2024.09.11 21:33
네...! 감사합니다.
Category