신축아파트 가벽 바닥 누수 (아래층 천장 누수 시작)

하자관련 질문/사례
질문 전에 먼저 검색을 해주세요.


신축아파트 가벽 바닥 누수 (아래층 천장 누수 시작)

G Frederick 14 3,242 2024.07.24 10:17

안녕하세요.

 

신축아파트 바닥누수 질문입니다.

준공은 3월이고, 4월에 잔금을 치렀지만, 6월 15일 입주하여 생활하고 있습니다.

 

7월 8일- 침실2/복도 가벽 도배지 곰팡이 발견

            (하자보수팀) 도배지 뜯어서 석고보드 마르는지 확인

 

7월 17일 - 석고보드 마르지 않음

              (하자보수팀) 석고보드, 단열제 뜯고 가벽 세우기 위한 철골에 물고임 발견

                               콘크리트 잔습일 수 있으니 물제거 후 마르는지 확인

 

7월 18일 - 침실1/드레스룸 가벽 곰팡이 발견

 

7월 19일~ - 침실1/복도 가벽 철골 물고임 지속

             

7월 23일 -  (하자보수팀) 난방 및 수도 배관 압력 검사 이상 없음 (오전 9시~12시)

                아래층 주방쪽 천장에서 물떨어짐 발견 (오후 7시)

 

현재 하자보수팀은 누수 위치를 잡지 못하고 있지만,

누수 가능 위치 1순위는 발코니 우수관, 2순위는 안방 욕실을 생각하고 있고,

(안방 욕실은 도면상 단차가 많이 있어서 가능성이 많지 않다는 얘기를 합니다)

가벽과 그 주변 강화마루를 단계적으로 뜯어서 물길을 잡아야 한다고 합니다.

자신들은 전문가가 아니고 시간이 오래 걸릴 수 있으니 저희가 개인적으로 전문 업체를 통해서 잡아도 된다고 합니다. 

 

질문입니다.

1. 관리자님께서 예상할 수 있는 누수 위치를 알려주실 수 있을까요?

2. 건설사측에서 예상하는 위치에서 누수되는 물이 아래층 주방 천장까지 흘러갈 수 있을까요?

   그렇지 않다면 또 다른 누수일까요?

3. 전문업체에 상담하면 저희 같은 상황에서는 누수원을 잡기 어렵다는 말을 합니다.

   저희가 개인적으로 전문업체를 섭외해서 보수하는 것이 좋을까요?

4. 건설사측을 상대로 어떻게 대응하는 것이 좋을까요?

 

질문이 많아 죄송하지만 입주후 얼마되지 않아 이런 일이 생기니 많이 당황스러워서 질문 드립니다.

 

감사합니다.

 

 

Comments

M 관리자 2024.07.24 15:57
안녕하세요.

전문 회사를 통해서 해결해도 된다는 말이 달콤하긴 하나, 독약입니다.
만약 해결 후 2차 하자 발생 부터 시공사는 손을 뗄 수 있기 때문입니다. 또한 보수 비용도 지불하지 않을 것이고요. 모든 것이 집주인 문제로 귀결되며, 심지어 다른 하자도 이 것 때문이라는 답변이 돌아올 가능성이 극히 높습니다.

난방과 상수배관에 대한 공압검사를 통과했다면 원인을 찾는 것이 무척 어렵습니다.
말씀하신 대로 화장실 누수가 옆으로 번지기는 어렵습니다. 그렇다면 먼저 아래층 화장실 천장에서 물이 발견되기 때문입니다.

우선은 시공사를 통해서 우수관의 위치를 달라고 하시고, 그 위치를 알려 주시면 좋겠습니다.
G Frederick 2024.07.25 08:29
누수위치 발견하였습니다.
어제 하자팀에서 누수업체 불러서 확인하였습니다.
침실2의 에어컨 드레인 배관에서 물이 다수 흘렀습니다.
아래층 천장 누수 및 누수위치와 반대 방향에 있는 침실3 및 현관 옆까지 곰팡이 발견되었습니다.
바닥 전체가 젖어있을 듯 합니다.
건설사에서는 곰팡이 발견된 곳에 순차적으로 제습기를 설치해서 3주간 말린다고 합니다.

질문1. 콘크리트 건조 기간이 오래 걸린다는 글 보았습니다. 3주로 가능할까요?
        곰팡이 발견된 모든 가벽에 석고보드를 뜯은 후 말려야 되는거죠?
질문2. 침실2와 붙어있는 거실벽은 아트월입니다. 아트월 붙어 있는 석고보드도 젖어 있고요.
        말려서 쓰면 되는 걸까요? 아니면 아트월 재시공해야할까요?
질문3. 2주전에 누수하자 알렸는데 하자팀의 늦장 대응으로 피해 범위가 넓어졌습니다.
        하자팀은 최소한으로 보수를 하려고 하는 듯 합니다.
        아파트 전 범위로 작업을 하려고 하면 4인 가족이 생활하기 어려운 듯 합니다.
        작업 기간 동안 다른 숙소 제공 및 제반 보상을 요구하는 것이 맞겠지요?
G Frederick 2024.07.25 08:30
침실2 복도쪽 가벽 뜯은 사진입니다.
G Frederick 2024.07.25 08:32
침실3 곰팡이 사진입니다.
석고보드까지 젖은것이 확인되었습니다.
곰팡이 발견된 모든 위치의 석고벽을 교체해야하나요?
아님 말리고 다시 사용할 수 있는 것인가요?
M 관리자 2024.07.25 09:57
불행 중 원인을 찾아서 다행입니다.

----------
1. 콘크리트 자체는 3주로 가능합니다. 오래 걸리는 것은 바닥으로 들어간 물의 경우입니다.
곰팡이 발견된 모든 가벽에 석고보드를 뜯은 후 말리는 것이 좋습니다.

2. 석고보드의 형태가 변형되지 않았다면 말려서 사용하셔도 되세요.
다만 곰팡이가 핀 부분은 부분적으로 절개해서 말린 후에 새로운 석고보드로 교체를 하는 것이 좋습니다.

3. 작업 기간 동안 다른 숙소 제공 및 제반 보상을 요구하시는 것은 권리이기에 당연히 가능합니다. 다만 그 것이 수용될 지는 상호간 협의를 해보셔야 합니다.
G Frederick 2024.07.25 21:02
침실2와 거실 사이의 가벽이 물샘으로 가장 많이 젖은 곳입니다.  석고보드는 밑에서 약 70cm 정도 젖어 있습니다. 아트월에 85인치 벽걸이 tv도 있고요.
안전상의 문제로 아트월은 전면교체해야되는거 아닌가요?
M 관리자 2024.07.26 03:04
저는 글만으로 판단을 할 수 없습니다.
그래서 석고보드의 변형이 없다면 말리셔도 된다라는 원론적인 답변을 드렸었습니다.
지금의 정보로는, 다시 여쭈어 봐도 답은 같습니다.
G Frederic 2024.07.26 09:06
관리자님 의견 감사합니다.
입주 1달만에 이런 상황이 생겨서 당황스럽기도 하고 건축 지식이 없어서 불안한 마음에 다시 아트월 관련 질문 드렸습니다.
현재 누수된 가벽 전부 뜯은 상태고 토요일부터 약 3주간 제습기로 말린다고 합니다.
향후 진행시 궁금한 점 있으면 다시 질문 드리겠습니다.
답글 및 사이트를 통해서 많은 정보 주셔서 큰 도움이 되었습니다.
다시 한 번 감사드립니다.
M 관리자 2024.07.26 09:21
감사합니다.
G Frederick 2024.08.05 13:33
관리자님,
아래 그림과 같이 침실2 에어컨 공용부 배관에서 생긴 누수로 인해서
침실1, 침실2 가벽의 철제 바닥에서는 물 1cm
현관, 침실3 가벽의 철제 바닥은 젖어있는 상태로 발견되어 현재 석고보드 아랫부분 절개하고 제습기로 말리고 있습니다.
몇 일 전에 가벽이 아닌 팬트리 벽(노란색)에서도 곰팡이가 발견되었습니다.
누수위치 반대편인 현관과 침실3 가벽 아래에서도 물이 발견되었고,
가벽이 아닌 부분에도 곰팡이가 발견되었다는 것은 누수가 꽤 심각했던 것으로 생각됩니다.
침실2에서 누수된 물이 콘크리트와 차음제사이로 현관까지 가는 상황이면 거의 모든 바닥안에 물이 찼던 것으로 추정이 됩니다.

질문1.
팬트리쪽 뿐만이 아닌 복도와 거실의 모든 걸레받이와 도배지를 제거하고 습이 먹었는지 확인해야 할까요?

질문2.
파란색 타원으로 표시한 주방과 복도 사이의 벽은 목조로 되어있습니다.
현재 시트지가 붙여 놓아서 곰팡이를 확인할 수 없었습니다.
이 부분에도 곰팡이가 있는지 시트지 제거 후 확인하는 것이 좋을까요?
G Frederick 2024.08.05 13:34
참조 사진입니다.
M 관리자 2024.08.05 21:14
확인이라기 보다는 말리기 위해서라도 최대한 벽체 하부는 열어 놓아야 하지 않을까 싶습니다.
G Frederick 2024.08.30 13:42
관리자님, 안녕하세요.
그 동안 많은 도움 받았습니다만, 추가 궁금한 것이 있어서 다시 질문 드립니다.

침실2의 에어컨 배관 누수로 인해서
- 침실1, 침실3, 현관 쪽 가벽의 석고보드와 단열제 부분 철거 하였을 때 1.5cm 물고임
- 펜트리 앞 골조 벽 곰팡이 확인
- 아래층 주방 천장에서 다량 누수
아마도 집 전체로 누수가 확산된 것으로 판단됩니다.
누수 업체에서는 가벽 바닥 약 1.5cm 정도 물이 고였고, 차음제 윗면에 방수가 되어서 기포까지는 물이 올라가지 않았다고 추정합니다.

현재 시공사와 협의이고,
아래와 같이 누수 정도 확인 및 완벽한 건조를 위해서 아래 사항을 하려고 합니다.
- 바로 위 관리자님 글과 같이 복도/주방 가벽 철거
- 바닥 몇 곳을 까서 누수 확인 및 건조

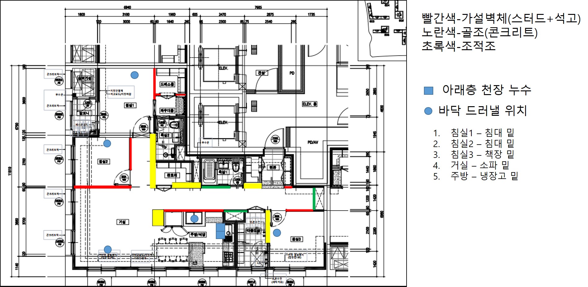
최대한 많은 곳을 타공 또는 바닥을 드러낸 후 건조하는 것이 좋겠지만 신축아파트라서 너무 많은 곳을 건드리고 싶지는 않습니다.
하지만, 완벽한 건조를 위해 필요하다면 더 많은 곳을 드러내려고 합니다.

질문입니다.
- 완전 건조를 위해서 빨간색으로 표시된 가벽을 모두 드러내고 건조하는 것으로도 충분할까요?
- 추가 바닥을 까내려고 한다면 그림과 같이 가구로 가려지는 부위만 하려고 합니다. 이 정도로만 해도 괜찮을까요?
  (침실은 강화마루로 되어 있지만, 거실,주방은 포세린타일로 되어 있어서 추가 하자가 걱정되기도 합니다.)
- 위 사항으로 충분하지 않다면 어느 부위를 얼마나 까는 것이 건조에 도움이 될까요?
  (예를 들면, 거실 중앙, 침실 중앙, 복도 등...)

미리 감사드립니다.
M 관리자 2024.09.03 23:07
적어 주신 부위에서 더 많이 할 수도 없는 상황이기에 최선으로 보입니다.
일단은 이 정도로 말려 보고 추이를 보시는 것이 좋겠습니다.
Category