싱크대 하부 냄새에 대해 문의드립니다.

하자관련 질문/사례
질문 전에 먼저 검색을 해주세요.


싱크대 하부 냄새에 대해 문의드립니다.

G 솔솔이네 17 3,782 2024.05.16 17:02

안녕하세요?


답답한 마음에 전문가분께 문의를 드립니다.


울산 소재 작년에 신축한 아파트에 입주중 싱크대 하부 냄새로 AS에 접수하여 수차례 수릴 받았으나 여전히 냄새가 심합니다.

특히 바람이 심하게 부는 날에는 더욱 악취가 심해지고 싱크대 하분에 넣어 둔 시기들도 냄새가 배어 상당히 힘듭니다.

AS 접수시 악취 난다고 올렸고 AS원은 식기 세척기나 싱크대 하부로 내려가는 배관은 정식 시공이 되어있고 밀봉이 완벽하여 문제가 없다고 자기가 해줄 부분이 없다고 그냥 가버렸습니다.

사진상 벽체 부분에 은박 단열재가 그대로 노출되고 틉새가 있는데 이 부분으로 악취가 올라올 가능성이 있는지요?

또한 어떤 방법으로 AS를 요구 해야 될지 막막합니다.

 

IMG_20240403_224407.jpg

 

Comments

M 관리자 2024.05.16 17:05
은박단열재가 직접적 원인을 제공하고 있지는 않습니다.
그 보다는... 관리사무소에서 보관 중에 세대 평면도를 사진찍어 올려 주시겠습니까?

혹은 먼저 이 글을 보시면 도움이 될 수도 있습니다.
https://www.phiko.kr/bbs/board.php?bo_table=z4_03&wr_id=36416
G 솔솔이네 2024.05.17 11:15
빠른답변에 우선 감사드리며
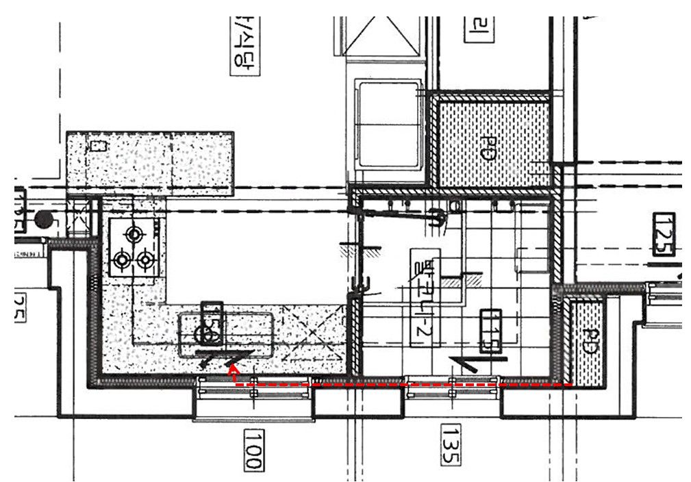
150 부분이 싱크대인데요 확인을 요청드립니다.
M 관리자 2024.05.18 15:44
이 구조는 PD의 냄새가 싱크대 하부까지 번지기는 어려운 구조인데요.
번거롭게 해드려 죄송합니다만, 싱크대 하부 장의 문을 열고 정면에서 찍은 사진을 올려 주실 수 있으실까요?
G 솔솔이네 2024.05.18 23:00
매번 감사합니다.
G 솔솔이네 2024.05.18 23:09
하부 벽체사진도 혹시나해서 올립니다.
하부 마감재를 열어 놓으면 바람이 느껴지는데 저 그림 처럼 미장사이로 보온재가 저렇게 노출된게 기밀이 안된것처럼 보이는데 냄새와 무관하더라도 시방서에 저렇게된게 정상인지 궁금하긴합니다.
M 관리자 2024.05.20 11:26
감사합니다.

혹시 발코니2 에서도 유사한 냄새가 있는지 궁금합니다.
보온재의 노출은 정상입니다. 보이는 것은 보온재라기 보다는.. 층간 소음 전달을 방지하기 위한 완충제거든요.  이렇게 시공되는 것이 맞습니다.

다만, 공기가 움직이는 것이라면 PD 쪽에서의 유입 밖에는 없는데요. 그게 맞다면, 공기가 들어올 곳이 이 부분 밖에 없습니다. 즉 시공은 정상적이지만 냄새까지를 고려한 시공은 아니라서요.  (냄새를 고려한 시공은 따로 없습니다. 그저 PD 쪽에서 냄새가 나오지 않아야 하는 것이 정상이라서요)

지금으로써는 짐작으로 싱크대를 다 들어내고 작업을 하는 것은 무모해 보이고, 냄새가 유입된다면 아래의 경로로 들어오는 것이므로...
M 관리자 2024.05.20 11:29
아래 두군데 중에 하나를 골라서 바닥쪽의 벽 마감재 일부를 (타공하든 절개를 하든) 제거하고 냄새가 나는지를 보시는 방법이 있을 수 있습니다.

이 것 외에는 달리 상상되는 원인은 없습니다.
M 관리자 2024.05.20 11:30
그리고 관리사무소에 문의를 하셔서, 아래 표신된 부분은 무엇인지 물어봐 주실 수 있으실까요?
G 솔솔이네 2024.05.20 12:03
빨간색 원으로 표시된 부분의 바닥 하부에는 뭐가 있는지 관리소에 물어 봐야 되지만
주거 공간에서는 아일랜드 대리석 높이를 경계로 하부는 싱크대장처럼 도어가 달린 장이 있고 상부에는 칸막이 형식의 수납공간이 있습니다.

나머지는 발코니2에서 확인 해보겠습니다.
M 관리자 2024.05.20 17:35
알겠습니다. 마음이 답답하시겠지만, 하나씩 원인을 제거해 나가는 수 밖에는 없어서요.
괜히 길을 돌아가시라 말씀드린 듯 하여 죄송할 뿐입니다.
G 솔솔이네 2024.08.27 17:45
시간이 지난 글에도 답변이 가능한지 모르지만
우선 새로운 사실을 알게되어 문의드립니다.
오늘 바람이 심하게 불어 주방 창을 닫는중 싱크대옆 아일랜드 벽면에 있는 콘센트에 손을 대어보니  바람이 부는것을 느낄정도로 바람이새어 나와 코를 대어보니  싱크대하부와 동일한 악취가 났습니다.

 전문가님이 보시기에 이런경우 의심이 가는 부분이 있으신지 고견을 구해봅니다.

감사합니다
M 관리자 2024.08.28 11:23
위의 댓글과 그 진단이 같습니다.
결국 공용 PD 벽에 있는 틈새를 통한 냄새의 유입으로 보입니다.

아래와 같은 조적벽은 아니지만, 원인은 같을 것 같습니다.
https://www.phiko.kr/bbs/board.php?bo_table=z4_03&wr_id=33707
https://www.phiko.kr/bbs/board.php?bo_table=z4_03&wr_id=33579
G 솔솔이네 2024.08.29 14:50
AS담당 소장님 방문하시고 가셨습니다.
발코니2의 PD관 의심되고 콘센트에서 바람과 함께 악취가 난다고 말씀드렸으나
그림처럼 하수관이 연결되었기 때문에 발코니쪽 PD관에 대한 의심은 진지하게 받아 들이지는 않으셨고
사람을 보내 콘센트쪽 바람 막는 작업은 해주신다고 하내요.

별도로 악취 측정기는 보유하고 있지 않으셔서 코로 냄새를 받으시면서 싱크대 하부의 일반적인 냄내가 난다고 하시며 싱크대 하부에 있는 식기세척기 관을 포함하여 모두 청소를 우선 권하셔서......
답답한 마음에 퇴근하여 청소를 해볼려고 합니다.

추가 질문은
1.코로 악취를 맡는 것은 개인차가 난다고 주장하시니 악취 측정기를 구매해야 될지 고민입니다..또한 악취에 대한 AS 기준이 있나요?
2.발코니2말고 싱크대 하수관과 연결된 팬트리쪽 PD도 함께 의심해봐야 될까요?
M 관리자 2024.08.29 15:13
1. 그건 기계가 있어도 매우 어렵습니다. 정밀한 것은 너무 고가이기도 하고, 냄새의 입자를 분석하는 것이라서 전문 지식이 없다면 그 입자가 악취인지도 알 수 없기 때문입니다.

2. 발코니-2의 천장 마감이 있다면 그 쪽도 의심할 수 있지만, 만약 콘크리트 천장에 페인트 마감이라면 그 쪽의 확률은 낮습니다.

내키지 않으시겠지만, PD 쪽 벽의 석고보드와 단열재를 일부 절개해서 그 안의 냄새를 보는 것이 가장 서로 명확합니다.
G 냄새싫어 2024.11.25 23:32
안녕하세요 저희집이랑 똑같은 증상이라서 댓글 남깁니다 혹시 해결하셨나요?
G 쿰쿰한냄새 05.30 10:55
혹시 도움이 될까 남깁니다.
벌써 공사한지 1년이 되었는데 시작이  싱크대 하부장에서 냄새가 났고, 쿰쿰하고 지하실 냄새같은 처음맡아보는 냄새였습니다.
저희는 외벽까지 드러나게 단열재를 다 제거하고 기밀하게 시공하고 가까이에 있는 pd실 벽면도 미장하였습니다.
지금은 주방에서 그 어떤 냄새도 나지 않습니다.
M 관리자 05.30 10:59
고맙습니다.
Category