거실로 생생하게 넘어오는 화장실 소음 관련

하자관련 질문/사례
질문 전에 먼저 검색을 해주세요.


거실로 생생하게 넘어오는 화장실 소음 관련

G 질문자 5 2,554 2024.01.10 19:51

안녕하세요.

 

너무 궁금해서 문의드릴 게 하나 있습니다.

저번에 제가 아래와 같은 글을 올린 적이 있는데요

https://www.phiko.kr/bbs/board.php?bo_table=z4_03&wr_id=32475

 

이게 안방에서만 남자 소변소리가 생생하게 들리는 게 아니라 

안방 화장실 문과 안방문이 이중으로 닫혀져 있는데도

거실 쇼파에 앉아 있으면 윗집 안방화장실의 소변 소리 뿐만 아니라 물에 젖은 화장실 슬리퍼 신고 걸으며 나는 뾱뾱 소리도 정말 바로 옆에서 나는 것 처럼 생생하게 들립니다.

 

윗집 안방 화장실에서 보는 소변 소리가 저희 안방 화장실에서만 들린다면 이해 하겠는데

화장실 문이 열려져 있을 때와 화장실문&안방문까지 다 닫혀있을 때 거실에서 들리는 소리의 크기가 거의 비슷하게 엄청 크게 납니다.

거실 쇼파에 있다보면 저희집 거실 천장에 대고 바로 싸는 것 처럼 너~~무 크고 소변 방울 하나하나 디테일하게 다 들립니다... 

 

그래서 문의드리고 싶은 부분이.. 

화장실문과 안방문이 다 닫힌 상태로 거실에서 들리는 소변 소리나 화장실에서 들리는 소변 소리나 똑같은 크기로 들리는 거 보면 문이 소리를 아예 차단을 못해주고 있는데, 이런 상황도 화장실 천장 뚜껑 열면 보이는 상부슬라브와 벽체 사이의 미세 작은 틈으로 인해 거실까지 크게 들리는 경우인가요?? 

그런게 아니라면 저희집 같은 경우엔 어떤 부분을 의심해 봐야할까요ㅠㅠ

 

Comments

M 관리자 2024.01.10 19:55
안녕하세요.

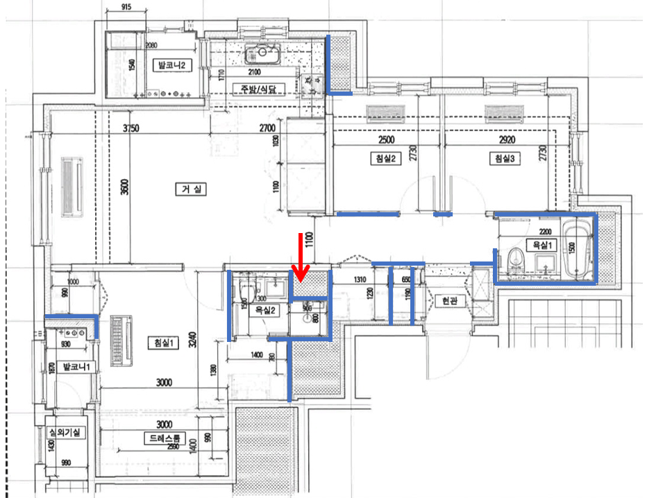
이 집은 아래 표시된 부분이 모두 건식벽입니다.
건식벽은 화장실의 천장 속과도 같이 상부에 틈새가 있을 수 있습니다.
또한 거실에서 화장실로 관통해서 들어가는 배관이 있다면 그 역시 배관 주변으로 틈새가 있을 수 있습니다.
이 모든 것은 화장실 천장을 열고 보셔야 할 것 같습니다.
G 질문자 2024.01.11 19:09
답변 감사합니다. 표시된 부분이 모두 건식벽이라는 게 어디 말씀하시는 건지요ㅜㅜ? 안방 화장실을 둘러싼 네 면이 다 건식벽이라는 말씀이신가요? 어느 건식벽 상부에 틈새가 있을 수가 있다는 건지 모르겠습니다ㅠ
M 관리자 2024.01.11 22:27
아 죄송합니다.
아래 그림입니다.
G 질문자 2024.01.12 23:06
답변 감사합니다.
안방 화장실에 있는 저 건식벽들의 벽체와 상부슬라브 사이 틈이 있으면, 저렇게 안방화장실과 거실사이에 벽(콘크리트 벽인지 뭔지 모르겠습니다.)이 있음에도 불구하고 윗집 소변 소리가 거실에서도 충분히 크게 들릴 수 있는 건가요?? (정말 거실에서 들리는 윗집 안방 소변 소리가 저희집 소변 소리같습니다..)
M 관리자 2024.01.14 11:00
그 보다는 붉은 색 화살표 처럼.. 콘크리트 벽을 관통하는 배관 주변의 틈새가 있을 확률이 높습니다.
관리사무소에 이야기하셔서, 환기배관/소방배관 등이 관통하는지를 알아 보시면 되세요.
Category