신축 후 벽체에서 물이 스며 나옵니다

하자관련 질문/사례
질문 전에 먼저 검색을 해주세요.


신축 후 벽체에서 물이 스며 나옵니다

G 박건주 16 2,282 2023.12.27 01:19

우여곡절 끝에 집을 지었는데 소소한 문제들이 생겨 해결해 나가고 있습니다.

 

1.jpg

 

3.jpg

 

2.jpg

 

 

 

1층.jpg

 

2층a.jpg

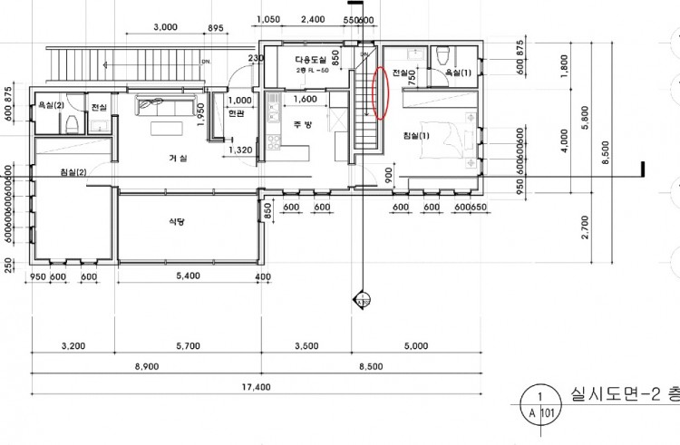
1층에서 2층 올라가는 내부계단 벽체에서 물이 아주 조금 스며 나오는 데요.

사진상 간살 위 높이에 위치한 부분으로, 2층 평면도에서 붉은색으로 표시한 부분입니다.

 

주위에 상하수 배관은 없고, 물기와 비슷한 높이에 2층 바닥난방 배관이 있습니다.

참고로 2층만 바닥난방이고 1층은 난방이 없는 구조입니다.

배관누수인 지 아니면 결로인 지 전혀 판단이 안서는데, 조언 주시면 감사드리겠습니다.


 

 

Comments

G 창건 2023.12.26 15:12
배관 누수는 누수 탐지를 해 봐야 확인이 될듯 하구요.

도면상 썬룸과 욕실의 결로 현상으로 의심 되네요.
G 박건주 2023.12.26 15:31
물스미는 것이 확장되지는 않는 것으로 보여 2층 바닥난방배관의 열이 계단실 찬공기와 만나 생기는 결로 아닐까 생각했었는데... 보다 상세한 설명 부탁드립니다. 결로라면 보수할 수 있는 방법이 있을까요?
M 관리자 2023.12.27 20:31
사진에서.. 수직의 갤러리창 상부 쪽에 하얀색 물질이 묻어 있는데요. 닦으면 닦이는 것일까요?
G 박건주 2023.12.28 11:37
처음에는 물기만 있었는데, 젖은 부위에 하얀색 이물질이 생겨났습니다. 지금 닦아보니 잘 닦이네요.
G 박건주 2023.12.28 11:44
벽체문제와 연관된 것인지 모르겠지만 동일 위치의 계단발판이 휘어지는 현상도 최근 발생하고 있습니다.
M 관리자 2023.12.28 16:33
계단의 휘어짐은 직접적 연관이 있는지 판단은 어렵습니다.
이 부분이 결로인지도 분명치 않은데요.
1층을 전혀 난방하지 않는다고 하셨는데, 실제 사용자가 해당 부위의 표면온도를 직접 확인해 보셔야 할 것 같습니다.  2층의 온습도도 체크를 해보셔야 할 것 같고요.

저는 결로로 보이지는 않습니다만, 온도를 느낄 수는 없기에 확신은 못하는 상황입니다.
문제는.. 결로가 아니라면 이 물은 어디서 온 것인가? 인데요.

뾰족한 답을 드리지 못해 죄송합니다만.. 당장은 어떤 결론을 내리기는 어렵고, 좀 더 지켜 보셔야 할 것 같습니다.
G 박건주 2023.12.28 19:38
네, 수분의 양이 많은 것은 아니니 일단은 지켜보며 진행상황을 봐야 될 것 같네요. 다른 곳에 문의해보니 콘크리트속 수분이 몰려 나오는 현상일 수도 있다는 의견도 받았는데요. 일단 겨울철 내내 환경 변화에 따라 어떻게 달라지는 지 지켜보도록 하겠습니다.
M 관리자 2023.12.30 15:33
수분이 몰려 나올 확률은 무척 낮습니다.
물론 콘크리트 초기 건조수분이 많고, 몰탈류의 마감이라서 자국이 날 수는 있겠지만, 물기가 묻어 날 정도일 수는 없습니다.
하지만 지금으로써는 달리 조치할 근거가 부족하기에 일단 지켜 보시고 그 양상의 변화를 보시는 것이 최선 같습니다.
G 박건주 2024.03.28 08:24
지난 12월에 벽체에 물이 스며나오는 문제가 다행스럽게도 2주 정도 지속되다 없어졌는데요. 일주일 전부터 똑같은 문제가 발생하네요.
배관누수는 아니겠고, 온도변화로 인한 문제일 것 같은데 없어진 이유도 다시 발생하는 이유도 모르겠네요.
정보가 많이 부족해 판단하시기 어렵겠지만 추가적인 의견 주시면 감사드리겠습니다.
M 관리자 2024.03.30 10:43
공사 중 사진이 없어서 확신을 가진 답변을 할 수는 없습니다만...
결로현상은 아닌 것으로 보이며, 화장실 쪽의 세면대 또는 화장실 바닥 쪽에서의 방수 문제로 보입니다.
배관의 누수라면 양의 변화는 있어도 지속적인 누수양상을 보이기에, 이 처럼 간격이 먼 경우에는 방수의 문제일 수 있거든요.
다만 말씀드린 바와 같이.. 세면대 바닥 혹은 세면대 뒤로 넘어가는 물에 대한 방수 조치가 어떻게 된 것인지.. 그리고 화장실 바닥의 물에 대한 대응이 어떤지에 대한 정보가 없기에, 어느 부분에서의 문제일지 상상하기는 어렵습니다.
G 박건주 2024.04.03 14:38
부족한 정보로 계속 문의 드려서 죄송합니다. 사진처럼 지난 12월 보다 상황이 더 심하게 발생하는데요. 콘크리트 슬래브 위치에서 일직선으로 물이 스며 나옵니다.
공교롭게도 1월 초부터 현재까지 해당되는 위치의 방(침실1)이 비어 있어 물 사용을 하지 않고 있습니다. 혹시 몰라 침실1 바닥난방을 다시 해 보는데도 나아지지 않네요. (작년 12월에는 바닥난방을 하는 중에 문제가 발생했다가 사라졌고 그 후에 방이 비게 되어 난방을 외출로 변경하였습니다.)
물사용을 안 하니 방수누수도 아닌 것 같은데 혹시 결로현상이 아닌 것으로 보시는 이유가 있을까요?
M 관리자 2024.04.04 00:45
실내 측이라서 결로가 생길 위치로 보이지는 않았던 탓입니다.

가로 방향으로 물이 나오는 것은.. 그 부분이 콘크리트 이어치기를 한 부분이라서 그렇습니다.
즉, 2층 바닥 콘크리트 슬라브의 상단에 물이 있다는 의미가 될 수 있습니다.

혹시 내단열 주택인가요?
G 박건주 2024.04.04 06:32
지붕 제외하고 외단열 주택입니다. 누수부위에 2층 바닥슬래브가 있고 그위에 방통(바닥난방) 시공을 한 구조입니다. 보수공사를 하려고 해도 원인을 모르니 막막하네요.
M 관리자 2024.04.04 08:18
그럼 일단 비용이 드시겠지만, 난방배관과 수도배관에 대한 누수검사를 해보시는 것이 좋겠습니다.
지붕으로 부터의 누수든 외벽으로 부터의 누수이든.. 대개의 경우 천장 또는 외벽면에 흔적을 남기는데, 그런 것이 없기에.. 내부에서의 원인으로 봐야 할 것 같습니다.

다만, 이 정도의 미세 누수는 찾지 못할 수도 있습니다.
G 박건주 2024.04.24 14:16
결과보고입니다.
누수탐지 해 보니 배관누수로 판명되어 보수공사하였습니다. 누수가 포착되는 지점 타일을 철거해 보니 욕조 밑에 물이 가득 차 있는 것을 발견하였습니다. 아주 일부만 벽체로 스며 나왔고 그 양이 많지 않아 중간에 보이지 않았던 것 같습니다.
벽체 안에 사용되지 않는 냉수관이 매립되어 있고 여기에서 누수가 발생하는 것을 발견하였습니다. 설비시공자가 변기 급수관을 불완전하게 매립 후 찾지 못하자 적절한 조치없이 추후에 별도 배관한 것으로 추정됩니다.
M 관리자 2024.04.24 16:42
원인을 찾아서 불행 중 다행입니다.
그리고 결과를 알려 주셔서 감사합니다.
Category