해결이 어려운 여름철 간헐적 누수 문의드립니다

하자관련 질문/사례
질문 전에 먼저 검색을 해주세요.


해결이 어려운 여름철 간헐적 누수 문의드립니다

G 은사 11 532 09.02 15:28

안녕하세요. 여름철 장마철에 4년째 간헐적으로 누수가 발생하고 있는데 원인 파악이 어려워 문의드려봅니다.

 

27층 아파트 23층에 거주 중입니다. 복도 천정 누수가 발생하고 있으며, 특히 여름철에만 번지듯이 누수가 나타납니다.

관리소에 2021년부터 누수 기록이 있고, 올해는 7월 셋째 주에 긴 장마 이후 일주일 동안 누수가 발생했습니다. 매년 여름에만 계속 누수가 발생하고, 가을 이후로 마르고 다시 반복되는 상황입니다. 어떻게 해결하면 좋을지 조언해 주실수 있을까요?

 

천정에 시멘트 크랙이 젖어 있고 그 안에는 난방배관 밖에 없다고 하는데요. 여러 업체들이 윗층에서 압력검사 결과 이상없다고 하는데 여름철에만 발생하니 난방관은 아니겠죠?

 

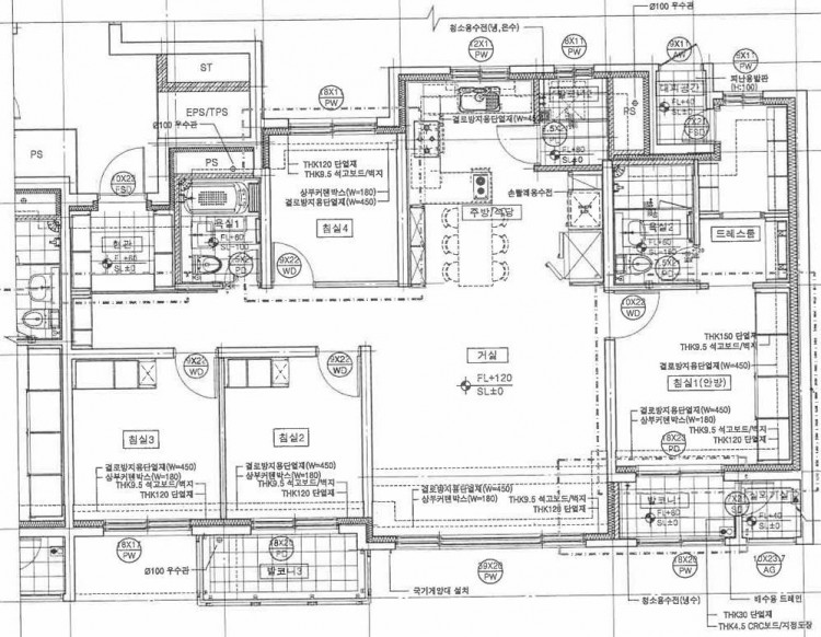
세대별확대평면도와 우수관위치도 첨부하였습니다.

방법을 못찾으면 결로수받이니 인젝션같은 마무리로 자가수리 해야할 것 같습니다..

Comments

M 관리자 09.02 15:44
안녕하세요.
혹시 에어컨 배출수의 공용배관이 매립된 것은 아닌지 확인이 되실까요?
꼭 그 부위가 아니더라도요.
G 은사 09.02 16:39
관리소에서 유선상으론 난방밖에 없다는데 혹시 다른 도면 요청이나 확인방법이 있을까요?
M 관리자 09.02 16:49
그럼.. 냉방 배관도가 있으면 가장 좋고, 그렇지 않다면.. 살고 계신 집에 천장 에어컨 배관이 에어컨 실내기에서 시작되어 어디로 가는지를 물어 보시는 것이 가장 좋을 것 같습니다.
G 은사 09.02 17:04
저희집 에어컨 드레인배관은 외부로 노출되어 있다고 합니다.
한다류전에 윗집을 탐지했던 업체한테 문의해보니 윗집 매립배관은 난방 아니면 수도배관인데 비용때문에 수도배관만 압력검사해서 안나왔다고 합니다. 난방은 여름이라 가능성이 낮다고 하네요.
M 관리자 09.02 17:22
우선은 비와의 연관성에 확신이 있어야 합니다.
봄/가을/겨울비에 누수가 없다면 비와 관련이 있다는 확률이 낮을 수 밖에 없는데요.
확신을 가지기 어렵다면, 윗집 모든 배관에 대한 압력검사는 해야 합니다. 그 비용을 누가 대든...
G 은사 09.02 17:24
냉매배관평면도 받아서 첨부하였습니다.
G 은사 09.02 17:40
21년 8월 17일 거실 화장실 천정 누수

22년 6월 30일 거실 천정. 주방 전원 복구

23년 관리소 기록은 없는데 세입자 얘기로 업체 검사후 싱크대 하부 약간 축축해서 수전교체

24년10월14일 안방 주방 사이 누수

25년 8월 1일 거실몰딩 복도등쪽 누수

정리한 기록입니다.. 비오는 시기와 겹치는 것 같으나 미세누수라 확신이 없네요. 비가 오면서 같이 누수가 발생하진 않고 이후에 누수가 발생하는 편이라서요.

말씀하신대로 배관측정을 좀더 알아보겠습니다.
M 관리자 09.02 18:34
도면으로 볼 때는 에어컨 배관이 외부에 있지는 않고 바닥에 매립되어 있는 것으로 보입니다.
G 은사 09.02 19:54
도면은 그렇군요.. 관리소와 이번에 탐지한 업자말로는 드레인이 외부로 노출되어 있다고 하네요. 난방이랑 수도만 매립이라고..
G 은사 09.02 20:47
일단 현재 물이 안세고 있어 물받이하고 점검구 설치하려고 합니다. 당장은 세입자도 생활하는데 불편하지 않게 이렇게 처리해야할 것 같네요
M 관리자 09.03 13:12
윗집의 에어컨 배관이 외부로 노출되어 있다면, 외부에서 창문 아래에 배관이 보인다는 의미일텐데요. 쉽게 육안으로 확인이 가능할 것 같습니다.

다른 조치 방법과 방향을 찾을 수 없다면 말씀하신 대로 할 수 밖에 없지 않을까 싶습니다.
Category