신축 아파트 소음 관련

하자관련 질문/사례
질문 전에 먼저 검색을 해주세요.


신축 아파트 소음 관련

G soso 4 1,780 2023.05.20 10:44


1 . 화장실의 경우, 윗 집 배관이 저희집 천장 바로 위 점검구를 지나가고, 

조적벽 틈새를 통해 아랫집이나 위집 소음이 들릴 수 있다는 것은 이해하고 있습니다.

그런데, 저희집 아랫집과 윗집에는 어린아이가 없는데,,, 화장실에 있으면 아이들 소리가 들립니다.

저희 옆집에는 아이들이 있고 저희집 화장실이 옆집 화장실을 맞대고 있는데 혹시 옆집 화장실 소리 일 수도 있을까요??? 벽간소음의 경우 조적벽이나 건식벽체일 경우 소음이 들릴수 있다는 글을 보았습니다.

아래 사진은 저희집 화장실 점검구 옆집과 맞닿아 있는 벽체입니다. 건식벽체인가요?? 

이런 소음의 경우 하자로 볼 수는 없는 걸까요??? ㅜㅜㅜ

20230318_141423.jpg

 

 

2. 그리고 저희 아파트의 경우 안방도 옆집 안방과 맞닿아 있는데, 타 세대의 경우 옆집 안방소음이 들린다고 합니다. (저희집은 아직까지 옆집 안방소음은 들리지 않고 있습니다.)

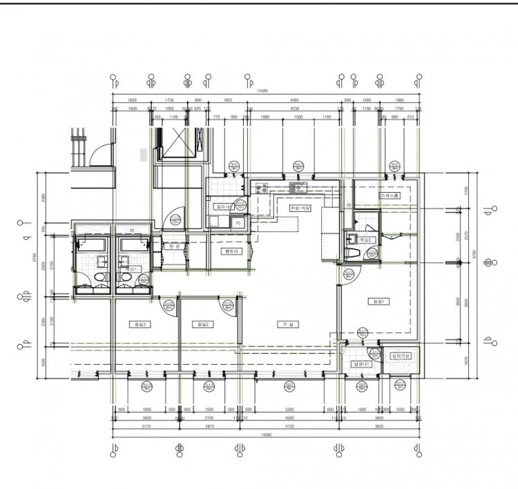
아래사진은 설계도면입니다. 

원래 세대간의 벽체는 화장실도 그렇고 안방도 그렇고 콘크리트여야 하지 않나요??콘크리트인 경우에도 소음이 전달 될 수 있나요??

Screenshot_20230517-091730_OneDrive.jpg

 

Comments

M 관리자 2023.05.20 11:06
1. 해당 벽은 콘크리트 맞습니다. 하지만 화장실의 모든 벽체가 조적 또는 건식벽체라서요. 그 쪽으로 소리가 넘어올 가능성이 있습니다.
2. 세대 간의 벽체는 콘크리트 맞습니다. 그 벽을 통해서 소리가 넘어 오지는 않습니다. 그 역시 화장실의 PD를 통해서 넘어 오는 소리일 가능성이 높습니다.
G soso 2023.05.20 19:41
해당벽체라 하시면 옆집과 맞닿아 있는쪽 화장실 벽체를 말씀하시는거죠??그럼 옆집소음보다는 윗윗층이나 아래아래층 소음일까요??
G 지나가던사람 2023.05.20 21:44
제 경험으로는 설마설마했는데 아래아랫집 소음이 배관설치된 공간을 타고 올라온 적이 있긴합니다.
반드시 소음이 상하좌우로 제일 인접한 세대에서 발생하는 것만은 아니더라고요.
M 관리자 2023.05.22 20:44
옆집의 소리도 넘어 올 수 있습니다. 물론 아랫집/윗집 소리도 마찬가지이고요.
위의 분 글처럼.. 최근 실외기실의 전선 공배관을 통해서 소리가 넘어 오기도 합니다. 실외기실에 있는 에어콘/환기장치 컨트롤 배관이 거실의 컨트롤러 쪽으로 연결이 되어 있어서, 옆집의 소리가 거실에서 들리는 일도 있거든요.
Category