누수 및 결로 문의

하자관련 질문/사례
질문 전에 먼저 검색을 해주세요.


누수 및 결로 문의

G 엘이아빠 5 2,212 2023.01.09 14:59

안녕하십니까? 

 

결로수로 인한 누수인지 미세 크랙으로 으로 인한 누수 인지 알고 싶습니다.

KakaoTalk_20230109_141526717_01.jpg

 

저희 집 온도는 23도, 습도는 40% 수준에서 관리하고 있습니다. 참고로 15층에 13층입니다.

 

저희 집 천장 부위입니다. 저 크랙 사이로 누수가 되어 공조기 부위에서 물이 떨어지고 있습니다.

KakaoTalk_20230109_141438852.jpg

 

공조기 구멍 바로 위에서 찍은 사진입니다.

 

현재 뒤에 있는 벽은 외벽입니다.

 

 

아래 사진은 윗집 에어콘 매립관입니다. 공조기가 있는 외벽쪽 직선 방향으로 외벽 아래쪽에 위치하고 있습니다.

KakaoTalk_20230109_141526717.jpg

 

윗집 외벽 아래쪽 에어콘 매립 배관 상태를 보고 대부분 결로수로 인한 누수라고 진단하고 

 

있습니다.

 

저의 질문은 아래와 같습니다.

 

1. 결로수로 인한 누수 진단 결과가 맞을까요?

 

2. 저 에어콘 매립되어 있는 외벽을 단열공사 하면 결로를 막을 수 있는지요?

 

3. 외벽 공사 하지 않고 에어콘 매립배관을 기밀하면 결로 방지가 가능한지요?

 

4. 저희 집 천장 슬래브는 보강공사가 필요하지 않나요? 누수로 인하여 슬래브에서

   떨어진 시멘트 잔해들이 젖은 석고보드 위에 있습니다.

 

소중한 답변 기다리겠습니다.

Comments

M 관리자 2023.01.10 09:29
안녕하세요.

1. 네 맞아 보입니다. 배관 누수라고 하기엔 그 양이 너무 작습니다.
2,3. 논리적으로는 그렇습니다만, 너무 면적이 넓어서 작업은 쉽지 않아 보입니다. 또한 전기선이 노출된 부분이 있어서 잘못하면 합선의 문제도 있기 때문입니다.
일단은 윗집의 실내 온습도를 먼저 체크해 보시는 것이 좋겠습니다. 조금 다습한 환경에서 살고 계신 것은 아닌지...
외벽을 건드리는 것은 어려워 보입니다. 해도 그리 효과가 없을 확률도 높고요. 또한 공동주택이라면 외벽의 바깥쪽은 손을 대기도 불가능하고요.

4. 누수의 원인만 제거된다면 별다른 보강공사는 필요로 하지 않습니다. 균열 자체는 흔한 것이라서요.
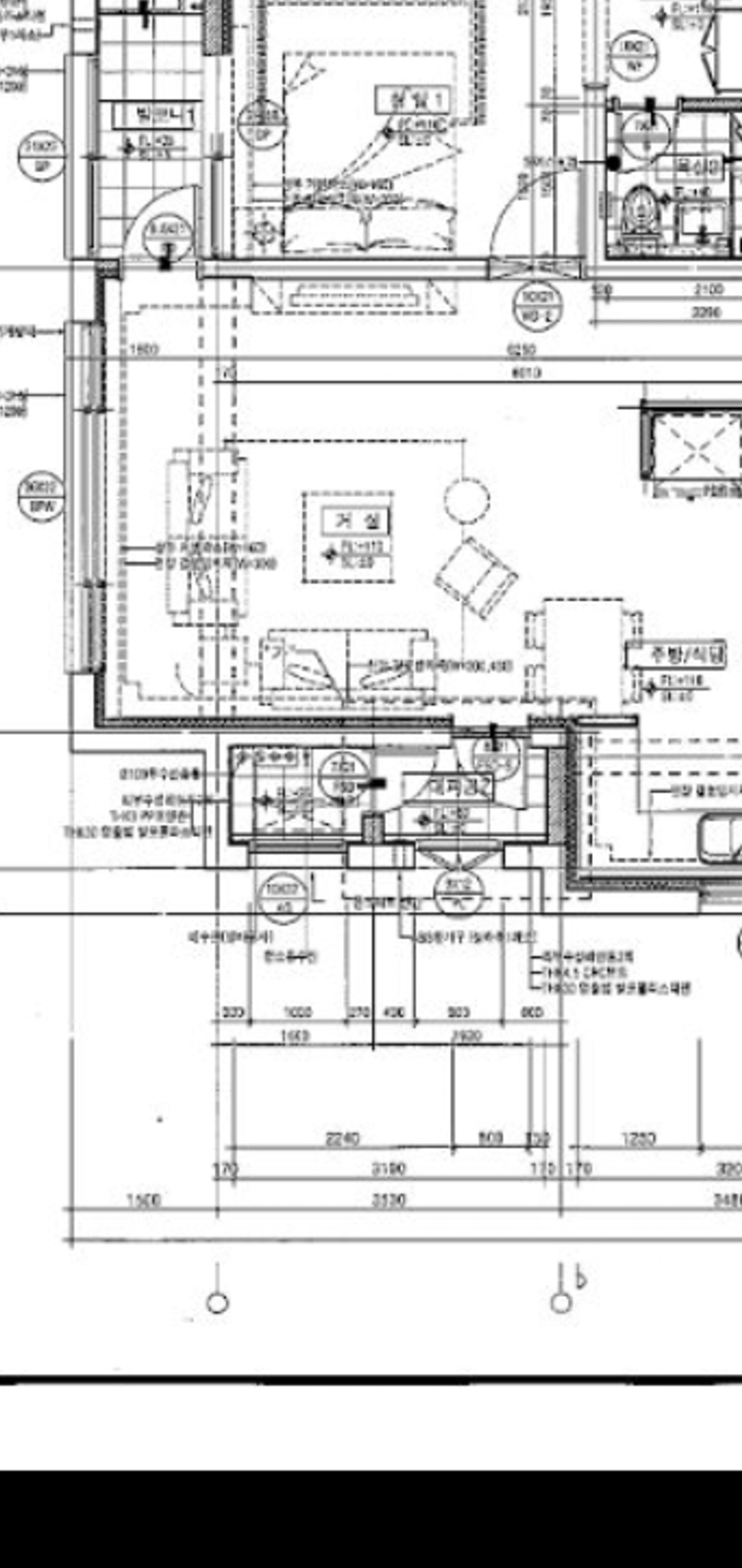
G 지엘아빠 2023.01.10 13:37
답변 감사합니다. 추가적으로 질문 사항이 있습니다.

도면을 보면 에어콘 매립배관은 창호쪽 동그라미 친부분

외벽 하단에 매립 되어 있고 동그라미 친부분을 제외하면

대피실과 실외기실이 있어 내벽입니다.

동그라미 친 부분만 내벽 단열공사를 하면 결로를 잡을수 있을까

해서 도면 첨부하여 질문드립니다.
M 관리자 2023.01.10 20:45
네 그래 보이긴 하나.. 전체적인 모습과 그 위치, 그리고 어떻게 단열 보완을 하실지 예측이 되지 않아서 딱이 무어라 말씀을 드리기가 어렵습니다.
G 엘이아빠 2023.01.10 23:21
감사합니다. 윗글에서 동그라미 부분 확대도면 입니다. 거실  창호 아래쪽 ㄴ부분만 내벽 재단열 공사하고 실외기실과 대피실이 있는 내벽은 불필요 할것 같아서요.. 동그라미 친 내벽 걸래받이 위에 위층에어컨 매립배관이 있고 그 곳에 사진처럼 결로가 심한상태입니다.
M 관리자 2023.01.11 14:13
그러셔도 되는데.. 관건은..
해당 박스가 단열층을 훼손하고 벽에 박혀 있는 것이 문제라서..
그 박스 자체에 단열재를 채워야 하는데, 폼으로 그 면적을 다 채우는 것은 불가능하며..  보드 형식의 단열재를 폼으로 붙이는 형식이어야 합니다.
다만 위에서 말씀드린 바와 같이.. 그 옆에 전선이 노출되어 있는데, 그 부분은 건드릴 수 없으나.. 그 부분도 기존 단열층을 훼손하고 설치된 것이라면, 어찌 하실지 계획을 미리 세워야 할 것 같습니다.
Category