상가주택 테라스 누수

하자관련 질문/사례
질문 전에 먼저 검색을 해주세요.


상가주택 테라스 누수

 

안녕하세요.


상가주택을 건축 중 다락 테라스 부분에 누수가 발생하여 문의 드립니다. (첨부#1 참조)

 

누수 원인이 정확히 밝혀지지 않은 상태이며

 

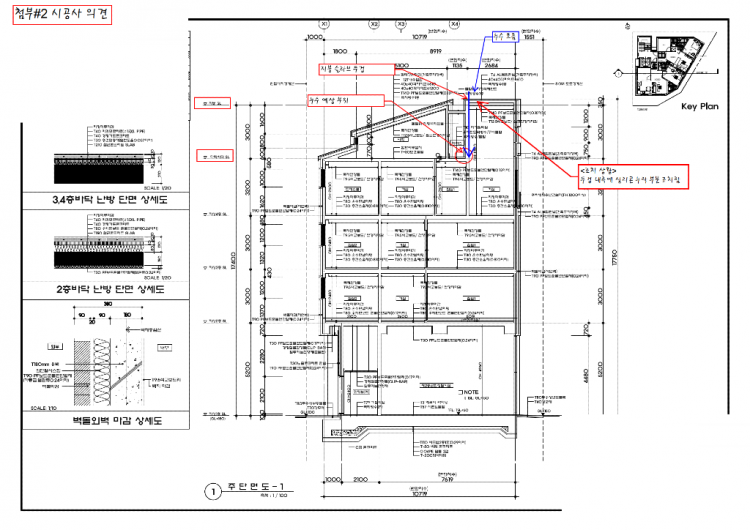
시공사는 지붕 슬라브의 두겁(내측)에 실리콘 마감을 누락하여 물을 타고 들어와 다락바닥 슬라브의 테라스 골조와 벽돌 사이에 물이 고여 누수가 발생한 것으로 추측하고 있으며 (첨부#2 참조)

 

건축주는 시공사의 의견과 달리, 다락바닥 슬라브의 테라스 골조와 벽돌 각각에 우레탄 방수를 하여 알 수 없는 이유로 고인 물이 빠져나갈 곳이 없어 골조를 타고 넘어와 누수가 발생한 것으로 생각 하고 있습니다. (첨부#3 참조)

 

위와 같은 상황에서 아래와 같이 조치 하였으며, 금주 비가 내리면 추이를 다시 지켜 보기로 협의한 상태 입니다.

<조치 상황>

1.     지붕 슬라브 두겁(내측) 실리콘 마감 완료

2.     다락 슬라브 테라스 벽돌 우레탄 방수 부분에 드레인 홀 만듬 (드레인 홀은 골조와 벽돌 사이 물이 차 있어서 빼내기 위해 만든 것임.

 

누수 원인이 무엇인지 조언을 구하고자 글 남기오니 많은 관심과 의견 부탁 드립니다.

첨부#1 누수현황.png

 

첨부#2 시공사 의견.png

 

첨부#3 건축주 의견.png

 

 

Comments

M 관리자 2022.07.05 16:28
안녕하세요..

도면에서.. 평지붕 마감재로 표기된 T4 알루미늄 복합판넬이 무엇인지 알 수 있을까요?
그리고 혹시 이 평지붕 사진이 있을까요? 말씀하신 두겁 뒤 쪽의 처리라는 것이 감이 오지 않아서요.
G 심상훈 2022.07.05 17:44
답변 감사 드립니다.
도면상 표기된 T4 AL복합판넬 대신 Zinc 마감 예정으로 진행할 계획이었으나,
평지붕을 옥상으로 사용하기 위해 우레탄 마감+페데스탈로 변경 진행 예정입니다.

요청하신 평지붕 사진 첨부 드리며 (현재 우레탄 마감까지 완료했으나, 사진을 미리 찍어두지 못했습니다.)
두겁 내측이라 함은 두겁을 평지붕 방향, 외부 방향으로 나눴을 시 평지붕 방향을 내측이라 임의로 칭했습니다.
M 관리자 2022.07.05 18:38
아직 공사 중이시네요.
일단 말씀하신 두 가지 모두 가능성을 열어 두어야 하며, 벽돌 하부에 배수구멍을 내신 것은 누수와 무관하게 장기적으로 적절한 조치입니다.
일단 다음 비까지 기다려 보시는 것이 최선 같습니다.

그리고 우레탄노출 방수는 그 수명이 2년 밖에 되지 않습니다. 주요 원인이 자외선이므로 노출방수 위에 인조잔디라도 까시길 권해 드립니다. 그 역시 영구적인 방법은 아니나 그래도 수명을 제법 늘릴 수 있습니다.
Category