아파트 바닥 습기/누수로 인한 하자처리 과정에서 질문

하자관련 질문/사례
질문 전에 먼저 검색을 해주세요.


아파트 바닥 습기/누수로 인한 하자처리 과정에서 질문

G 전홍민 4 3,429 2022.06.27 16:40

안녕하세요?

신축이며, 1층이고, 테라스가 있는 아파트입니다.

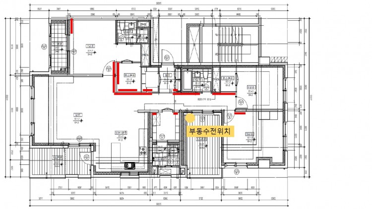
2020년 12월 입주, 하자처리기간은 올 12월까지인 상황에서 올 초 천정누수(2층 테라스 부동수전 동파)로 인한 거실과 안방드레스룸의 하자처리가 얼마 지나지 않은 5월경 부터  거실복도의 벽지가 우는 현상으로 시작하여.. 바닥쪽부터 곰팡이가 올라왔습니다. 

하자 접수를 하고, 건설사의견으로는 부동수전의 동파가 원인인것 같다.. 테라스 있는 세대(저희집 포함) 약 20여세대의 부동수전이 전부 동파되었었다.. 라고 합니다. 

동파된 부분의 자재를 발주하여 재시공하는데 1개월 걸리니, 그 기간 동안 건조를 하자고 해서..

현 시점에서 곰팡이가 발생한 부분의 석고보드를 50cm 정도 제거하여 건조 작업을 하고 있습니다만, 장마철과 습기 증가로 인해.. 창문을 닫고 에어컨을 켤수도(곰팡이), 환기를 하기도.. 어려운 상황에 생활을 하고 있습니다.  다행히 건설사에서 협조를 잘 해주고는 있습니다만, 

 

제가 건설사에 요구한 부분은 아래와 같습니다. 

1. 누수에 대한 점검 (가스압력 방식), 난방수는 아닌 것으로(계량기 점검)

2. 충분한 건조 (약 3개월)

3. 원상복구

4. 재발시, 하자보수 기간 연장에 대한 합의

정도면 괜찮을까요?, 제가 놓치는 부분이 있을까요?

 

지금 2주정도 지났고, 여전히 곰팡이 냄새는 지독하고, 

침실1쪽으로 걸레받이 곰팡이가 발생해서 피해 구역은 늘어날 것으로 예상이 됩니다. 

[추가질문]

1. 가벽의 지지 역할을 하는 경량철골? 녹이 슬어 있는데.. 그것도 교체 해야 하는지요? 

2. 바닥은 원목마루 시공인데.. 뜯어야 하나요?

3. 석고보드쪽만 침수되고 콘크리트 부분은 괜찮은데, 벽체를 보니 석고보드가 방통 아래까지 내려가 있더라구요. 그래서 방통 아래쪽 물을 빨아올리는 것 같은데.. 지난 글을 읽어 보니, 방통아래쪽 건조가 오래 걸린다는 말도 있고, 1층이지만 저희 아래쪽에 지하공간이 있긴 하다고, 그쪽 누수는 멈췄다고 하던데.. 저희집 단열재도 다 젖어서.. 겨울에 난방 돌리면.. 다시 습이 올라오려나요?

4. 변호사 만나는게 나을까요? 

 

원래는 지금쯤 택지지구의 대지를 당첨받아 표준주택으로 건축 계약을 하는 것이 꿈이었는데..

대지는 탈락하고 어마어마한 하자를 맞이하고 있는 국면에... 이렇게 협회에 글을 남기는 심정이 헛헛합니다. 

감사드리고, 복 많이 받으세요.

유튜브등 많은 도움 받고 있습니다. 

 

[세대 도면]

슬라이드2.JPG

 

[가장 심한 부분입니다. 거실 복도쪽]

슬라이드3.JPG

 

 

[현재 조치 상황입니다.]

슬라이드5.JPG

 

Comments

M 관리자 2022.06.28 17:24
안녕하세요..
먼저 심심한 위로의 말씀을 드립니다.

--------------------------
질문 부터 답변을 드리면...
1. 가벽의 지지 역할을 하는 경량철골? 녹이 슬어 있는데.. 그것도 교체 해야 하는지요?
▶ 그냥 두셔도 괜찮습니다.

2. 바닥은 원목마루 시공인데.. 뜯어야 하나요?
▶ 이 부분은 아래 질문과 함께 한꺼번에 정리해서 말씀드릴게요.

3. 석고보드쪽만 침수되고 콘크리트 부분은 괜찮은데, 벽체를 보니 석고보드가 방통 아래까지 내려가 있더라구요. 그래서 방통 아래쪽 물을 빨아올리는 것 같은데.. 지난 글을 읽어 보니, 방통아래쪽 건조가 오래 걸린다는 말도 있고, 1층이지만 저희 아래쪽에 지하공간이 있긴 하다고, 그쪽 누수는 멈췄다고 하던데.. 저희집 단열재도 다 젖어서.. 겨울에 난방 돌리면.. 다시 습이 올라오려나요?
▶ 다행이 아래층에 지하 공간이 있다고 하시니.. 제가 권해 드리는 것은.. 아래쪽에서 바닥 슬라브를 관통해서 단열재의 하부까지 구멍을 몇 군데 내는 것입니다.
바닥에 물이 들어갈 경우 건조에 수년 이상이 걸리기 때문인데요.. 지하층에서 작업이 안된다면 지금 살고 있는 바닥에 구멍을 내야 하거든요.
그래서 일단 바닥에 고여 있을 것이라고 추정되는 물을 모두 빼낼 필요가 있습니다. 그 물만 빠지면 나머지는 크리 큰 문제는 아니며, 최대한 잘 말려 주는 되는 부분입니다.
그나마 벽체가 건식구조라서 지금 처럼 하부를 열어 놓을 수 있는 구조라, 건조 시간도 상대적으로 짧아 질 것 것 같습니다.

시공사와 이 부분에 대해 협의를 해보시고, 그 분들 입장을 보더라도 하부에서 타공을 하는 것이 오히려 일을 줄일 수 있을 것 같습니다.
G 전홍민 2022.06.29 11:57
답변 주셔서 감사합니다. 마지막으로 여쭙는 것은 하부쪽에 타공을 하여 건조를 하는 것을 전제로 벽체 하부가 건조가 되면, 세대 인테리어를 마무리하고 겨울에 난방을 해도 다시 습이 올라오거나 하는 일은 없을까요?
M 관리자 2022.06.29 13:10
그건 신만이 알 수 있을 것 같습니다. 그저 최선을 다해야 할 뿐입니다.
확신을 가지려면 각 방마다 몇군데를 정해서 상부에서 코어링을 하고 내부 수분을 봐야 하는데.. 현실적으로 거의 불가능한 작업이라서요.
G 전홍민 2022.06.29 13:49
역시, 믿음이 가는 답변 감사드리고.. 항상 감사드리고 있습니다. 잘 처리해 보겠습니다.
Category