신축아파트 세대내 악취유입 문의드려봅니다.

하자관련 질문/사례
질문 전에 먼저 검색을 해주세요.


신축아파트 세대내 악취유입 문의드려봅니다.

G 워리워리 14 4,062 2022.01.05 00:08

안녕하세요.

 

신축 아파트 입주한지 2년차를 맞이하고있습니다. 

입주초부터 악취 유입으로 이것저것 보수 받아보고잇는데

완벽한 조치는 되지 않고 있습니다.

 

최근에 원인에 가까운 문제를 파악하게 되어 몇가지 고견을 얻어보고자 문의드려봅니다.
(비슷한 사례가 있나 검색해보았지만 못찾았습니다..)

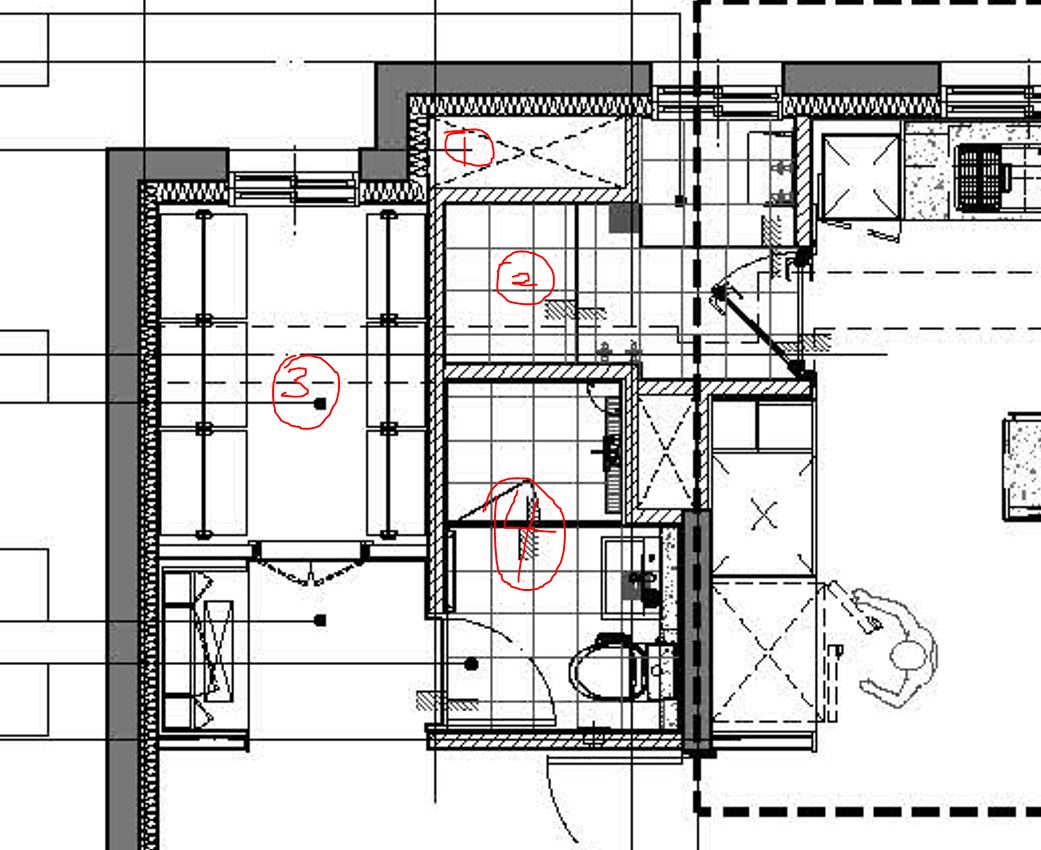
1. 상기 도면은 거주중인 세대 일부분이고 노란색 칠한부분은 악취가 유입되는 위치입니다.

 2. 원인 파악중 자재가 다른 틈을 통해(마감불량?) PD관(통로) 안에 냄새가 밖으로 세어 나온느것을 확인했습니다. (냄새는 눈에 보이지 않아 벽을 뚫고 안에 연막탄을 터트려서 확인함)

 

Q1. PD관(통로?) 안에 냄새는 원래 존재 하는지요
Q2. 벽(틈새마감) 마감불량에 의한 하자가 맞는지요
Q3. 통로안에 마감재가 겹치는 부분 틈을 메꾸고 막는게 맞는 보수 방법인지요 (업체 측에서는 실리콘이나 에폭시등을 사용)
Q4. 실리콘등을 사용하면 향후 내구성에는 문제가 없는지요?

Q5. 완전 메꿈을 하면 그안에 존재하는 악취는 어떻게 되는지요?

Q6. 개인적으로 안에서 막는 방법이 가장 베스트한 방법으로 보이지만
벽을 뚫어야 하는 문제도 있어서 좀 꺼려집니다. 바깥에서 조치 할수 있는 방법도 있는지요?

틈새 마감 상태등은 사진이나 영상으로 확보 해놓은 상태입니다.

제가 건설 이런쪽으로는 지식이 없어 용어들이 맞는 용어인지는 모르겠습니다 ^^;

 

이상입니다..

 

감사합니다.

(사진 때문에 게시글이 안올라가는거같아 댓글로 사진 첨부 드립니다.)

Comments

G 워리워리 2022.01.05 00:06
2. 원인 파악중 자재가 다른 틈을 통해(마감불량?) PD관(통로) 안에 냄새가 밖으로 세어 나온느것을 확인했습니다. (냄새는 눈에 보이지 않아 벽을 뚫고 안에 연막탄을 터트려서 확인함)
G 워리워리 2022.01.05 00:07
1. 상기 도면은 거주중인 세대 일부분이고 노란색 칠한부분은 악취가 유입되는 위치입니다.
M 관리자 2022.01.05 00:33
네.. 지금 붉은 색으로 체크해 놓으신 부분이 냄새가 나올 수 있는 곳 맞습니다.
열교를 없애려고 구조체를 끊어 놓은 곳인데 연결 부위에 아무런 조치를 하지 않으니 문제가 생길 수 밖에 없는 부위입니다.

PD 내부는 냄새가 없는 곳입니다. 다만 해당 PD에 연결된 배관 등의 연결 부위를 통해서 냄새가 생길 수는 있습니다.

문제의 해결은.. 마감재를 유지하면서 해결되지는 않습니다.
큰 마음 먹고, 마감재를 모두 철거하고 전체적인 실링을 해야 하는데, 실리콘이나 폼 등은 모두 그 수명이 있기에 그 보다는 오히려 탄성이 있는 도막방수재 같은 것으로 모든 접합부를 발라 주는 것이 더 나은 선택이 됩니다.
다만 저희도 (이런 형식의 아파트는 최근 준공된 아파트이기에) 실제 마감재를 철거했을 때, 그 내부가 구체적으로 어떤 상태인지 알고 있지 못합니다.
그러므로 만약 철거를 하신 다면, 철거 후의 상태를 이글의 댓글로 올려 주시면 좀 더 구체적인 보완 방법을 말씀드릴 수 있을 것 같습니다.
G 워리워리 2022.01.05 00:53
댓글내용 확인
G 워리워리 2022.01.05 00:58
댓글내용 확인
M 관리자 2022.01.05 01:07
PD 안에 사람이 들어가서 찍었는데요.. 어떻게 들어갈 수 있었죠?
할 수만 있다면 안쪽에서의 조치가 가장 이상적입니다.

왜냐면..
제가 마감재라고 말씀드린 부분이,
화장실 타일, 벽면의 석고보드, 화장실 천장 등을 모두 포함한 것이거든요.

올려 주신 사진을 보시면, 화장실 천장 때문에 손이 닿지 않아서, 실리콘으로 덕지 덕지 발라져 있는데, 이 것 역시 과연 구석 구석까지 잘 메워진 것인지에 대해 서로 간에 확신을 가지기는 무리입니다.

그래서 이 모든 마감재를 모두 철거하고, 사진에 보이는 단열재(검정색)과 시멘트벽돌이 만나는 부위, 그리고 시멘트 벽돌 그 자체도 마감이 되어야 합니다.

즉 아래 사진에서 자세히 보시면 시멘트 벽돌 사이에도 틈새가 많이 있다는 것을 아실 수 있는데요..

PD 외측으로, 이 벽돌면에 석고보드나 타일이 붙어 있는데, 이 것이 완전히 밀착되어 있지 못하기에.. 지금 하고 계시는 조치가 되었다고 하더라도.. 냄새를 완전히 막지 못할 가능성이 높습니다. (물론 크게 완화는 되겠지만요)
M 관리자 2022.01.05 01:21
안에서 마감을 하는 것은 어렵겠네요.. 구멍을 뚫어서 들어간 사람이 나와야 하니..
그래도 화장실 타일 등.. 무언가 비용이 크게 발생하는 곳을 피할 수 있다면..
어느 한쪽 면을 정해서 구멍을 낸 다음.. 내부 마감을 하고, 그 구멍만 잘 막아 주는 것이 결과적으로 가장 저렴하게 끝낼 수 있겠다 싶습니다.
물론 지금 처럼 실리콘으로 처리만 하고, 더 이상은 안 하려 하겠지만요..
G 워리워리 2022.01.05 01:43
지금 보수작업 진행중인 세대가 있어서 사진처럼 구멍을 뚫어서 작업진행중이에요.
G 워리워리 2022.01.05 01:44
답글중에 시멘트벽과 단열재벽 사진 첨부해서 보여주신 부분이
이 배관들 뒤쪽으로 위치해 있어요.
M 관리자 2022.01.05 01:55
만만치 않네요..
화장실 천장까지 뜯어서 하려고 하질 않을텐데...
참 서로 괴로운 상황이네요..

어쨋든 이 상황이면 안쪽에서의 작업은 한계가 있어 보입니다.
샘플 보수를 하고 있는 상황이므로, 결과를 보셔야 할 것 같고요. 사용자 입장에서도 억울한 것은 마찬가지 이므로, 샘플 보수의 결과를 보고 나머지를 논의해 보셔야 할 것 같습니다.
G 워리워리 2022.01.05 02:07
아..도면 보시면 욕실쪽 위치는 아니고 다용도실에 PD가 있습니다.
다용도실 천장 해체 작업은 할수 있다해서 오늘 오전 중에 해체 후 추가 보수 (겉면) 하기로는 했어요

도구같은거를 이용해서 메꿈 작업하면 될거같아 보이는데 손이 안닿는다는 이유로
회피하려고만 해서요.....

첨부파일 ->
1. PD
2. 다용도실 (냄새O)
3. 드레스룸 (냄새O)
5. 욕실  (냄새X)



천장 말씀하시는 부분은 위 첨부파일 사진중 맨 아래 실리콘 흘러내리는곳 이부분 말씀이신가요?
맞다면 여기는 드레스룸 창문쪽 방향에 모서리부분입니다..
천장을 재단?해서 도려낸다음에 하는 방법은 괜찮을까요?

입주전에 시스템에어컨 작업할때 보니 천장을 도려낸 다음 작업후 다시 닫고 도배지 바르는걸 본
기억이 있어서요.
M 관리자 2022.01.05 11:01
다용도실이군요.. ㅎ.. 죄송합니다.
다용실에 타일이 없다면 오히려 다행인 것 같습니다.

네. 말씀드린 것은 다용도실, 드레스룸 천장을 모두 말씀드린 것였습니다.
천장 속에 팔이 닿지 않으면 공사가 잘 되지 않거든요. 천장의 일부를 잘라내고 작업하는 것도 가능합니다.
G 워리워리 2022.01.05 20:09
넵! 소중한 답변 감사합니다. ^-^!!
오늘 오전에 A/S측 작업하시는분과 대면해서 조언해주신 부분 적용해서
1. PD내부에 보이는 틈새
2. 다용도실 천장 해체후 보이는 틈새
3. 드레스룸 천장(모서리 부분) 일부 오픈후 작업 하기로 협의했습니다.
4. 또 틈새 뿐만아니라 벽면에 세로 방향으로 간격을 두어 우레탄?을 쏴서 채워주기로 했습니다.

2년 가까이 골머리 앓으면서 너무 힘들었는데
이렇게라도 해결방향에 실마리를 얻게되어 너무 기쁩니다.

새벽까지 조언해주신 답변 너무나 감사드립니다. (_ _)
M 관리자 2022.01.05 20:15
잘 마무리 되면 좋겠네요.
감사합니다.^^
Category