아파트 다락 곰팡이 문제..

하자관련 질문/사례
질문 전에 먼저 검색을 해주세요.


아파트 다락 곰팡이 문제..

1 사월향기 32 1,098 06.30 22:35

 

안녕하세요 아파트 다락에 입주 후 지속적으로 곰팡이 확장이 있어서

시공사에 하자 요청을 하였으나 이제는 외단열재와 내단열재의 열교현상이라는 말을 하며

시행사 설계 잘못이라는 말을 많이 하기 시작했습니다.

 

시행사 설계 잘못이면 중대한 하자라고 생각하는데 맞을까요...?


현재 시행사에서 다락 누수 관련 수리는 2번

첫번째로 거실 윗쪽 다락 창문 중앙에서 내부 창문으로 누수 발생 (누수관련 수리 진행)

두번째로 다락 창문 그 주변 및 계단부 모서리 부분 곰팡이 발생 (누수관련 수리 진행)

세번째로 거실과 발코니2 벽면과 연결된 다락 벽에서 곰팡이 및 벽지 들뜸 발생 (시행사한테 고지함)

 

다른 방들도 있지만 크게 문제되어 보이는곳이 이곳입니다.

 

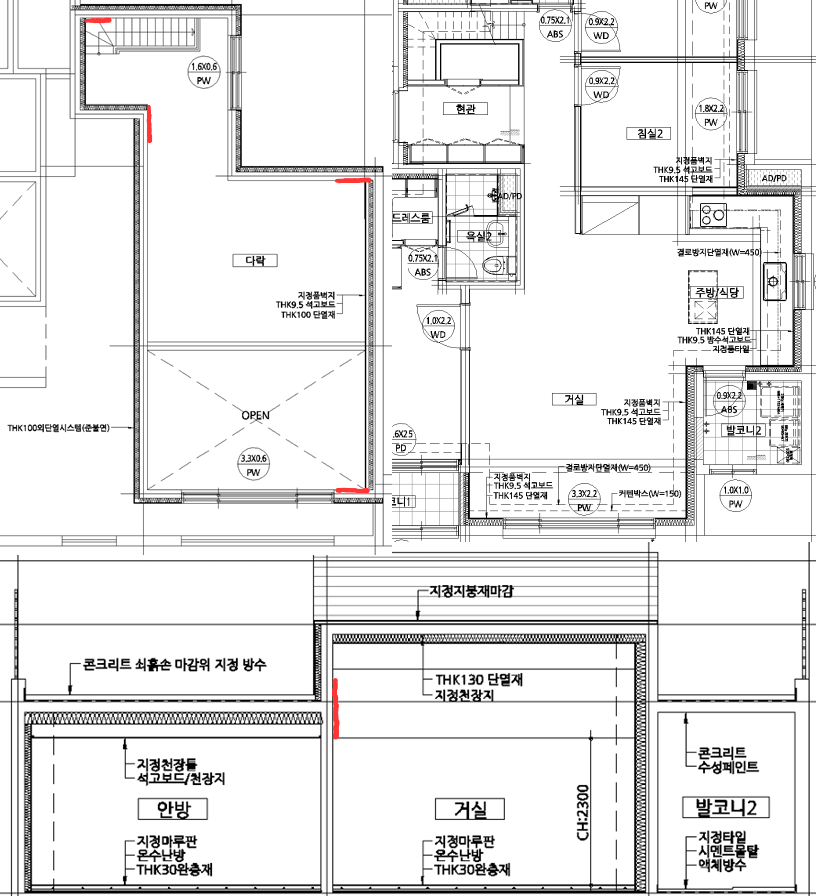
아래 사진의 위쪽그림은 구청에서 보내준 도면, 아래쪽 그림은 관리사무소에서 출력한 도면 사본입니다.

 

구청에서 준 도면을 보면 천장 단열재가 내부로 되어있고

동사무소에서 준 도면은 최상층 직면으로 되어있습니다.

단열재 시공 방향이 다른것 같습니다.

 

구청 도면.png관리사무소 도면.png

 

비오는날 옥상 촬영

아파트 옥상 비올때.png


 그리고 실내 사진입니다.

실내사진.png

Comments

M 관리자 07.01 07:23
올려 주신 내용으로 볼 때,
누수에 의한 곰팡이인지, 겨울철 열교에 의한 곰팡이인지가 구분이 모호한 상태이고, 궁금해 하시는 내용은 아니시기에 그저 질문에만 집중을 하겠습니다.

----------
"직면"이라고 하는 용어는 "외기에 직접 면한 벽/지붕"이라는 의미이고, 외단열/내단열을 의미하는 것은 아닙니다.
도면으로 볼 때, 사소한 차이는 있지만 동일한 도면입니다.

시공사에서 이야기하는 열교라는 것은.. 아래 붉은 색으로 표시된 것과 같이 내/외부 단열이 서로 엇갈리면서 단열이 연속되지 못한 구간이 있다는 의미인데요.
이런 구간에는 천장의 결로방지 단열재 처럼 열교를 완화해 줄 수 있는 추가 단열재가 있어야 하는데, 도면에 그 것이 보이지는 않는 상태입니다.
다만, 이 것이 법에서 이야기하는 "중대하자"의 범주에 들어갈지는 의문입니다.
1 사월향기 08.14 16:12
열교를 완화해줄수 있는 추가 단열재가 안보인다고 하셨는데
추가적으로 확인해보니 결로방지 상세도가 있습니다.

이 부분에도 말씀하신 내용은 언급이 안되어있는걸로 보이는데

건축물의 에너지절약 설계기준에 열교 방지 조치 의무화 및 기밀성 및 결로방지 항목이 있는데
위에 표시해준 부분에 이러한 부분들이 준공도면에는 들어가야 되지 않나 생각을 합니다.

열교방지에 대한 기재사항은 필수인지, 아니면 없어도 되는건지 알고싶습니다.
1 사월향기 08.14 16:15
결로방지 시공부위는 확대해서 올립니다.
M 관리자 08.15 08:28
올려 주신 도면은 건물의 특정 부위를 대상으로 한 도면이 아니라, 해당 형태에 대한 "일반개념도" 성격이기에, 이 도면 만으로도 다락방의 같은 형태에 대해서도 적용되어야 합니다.

다만 이 개념도면으로는 설명이 되지 않는... "위에 제가 붉은 색 선을 추가해서 올려 드린 것 중에 아래 도면처럼  "ㅓ" 형태로 만나는 곳의 추가 단열" 에 대한 다툼의 여지는 있습니다.

이 부분은
갑설 : 유사한 열교는 이 개념도면에서 표현된 취지의 연장선이기에, "ㅓ" 부분도 추가 단열재가 붙어야 한다.
을설 : 붙으면 좋겠지만, 개념도와는 전혀 다른 컨디션이기에, 비록 아쉽기는 하나, 이를 근거로 단열 누락에 의한 하자로 볼 수는 없다. 즉 시공사는 도면대로 시공을 한 것이다. 굳이 원인을 찾고자 한다면 설계하자이다.

이 두가지의 의견이 있을 수 있습니다.
1 사월향기 08.15 17:31
시행사는 답변해주지 않았고, 시공사는 관리자님께서 설명해주신
"을설"중 시공사는 도면대로 시공을 한 것~ 이 문구를 똑같이 했습니다..

왜 저 열교 발생이 예상되는 부위에는 단열에 관한 내용이 없는지 검색 및 문서들을 확인한 결과

"에너지 절약계획서 이행 검토서"
건축부문 성능지표 "(2) 외피 열교부위의 단열 성능값 " 이 부분이 해당없음으로 표기가 되어있었습니다.

이 항목은 설계자 및 감리자가 작성 시 의무사항이 아닌 권장(선택)사항으로 확인을 했는데...

국토부,에너지관리공단에서 배포한

건축물의 에너지절약설계기준 해설서

- 제3장 에너지절약계획서 및 설계 검토서 작성기준
            제 15조(에너지성능지표의 판정)
                  (2) 에너지 성능지표의 각 항목에 대한 배점의 판단은 에너지절약계획서 제출자가 제시한
                      설계도면 및 자료에 의하여 판정하며, 판정 자료가 제시되지 않을 경우에는 적용되지
                        않은 것으로 간주한다. 

이 항목을 보면 제출자가 제시한 설계 도면 및 기타 자료를 검토하여
검토자가 성능지표의 항목들을 수정할 수 있다고 판단되어 집니다.

질문사항
1. 검토자의 주체
  -. 관리 구청? 국토부? 에너지 관리공단? 셋중에 어느 곳일까요?

2. 검토과정중 설계 도면 및 에너지관리 계획서를 보면 해당 아파트의 열교발생 부위가 있을것을 확인할 수 있을텐데
    이 부분이 확인 없이 설계도면을 보지 않고, 계획서만 보고 점수 만족했구나? 하고 넘어갈 수 있는지?

3. 건축물의 에너지 절약설계기준 해설서 (국토교통부고시 제2022-52호)
    -. 페이지4, 건축부문 4. 외피 열교부위의 단열성능 (단, 창 및 문 면적비가 50%미만일 경우에 한함)
        괄호안의 내용은 국내 모든 아파트에 적용될 것 같은데 제가 입주한 아파트는 왜 누락이 되었을까요?

4. 작성자가 입주한 아파트는 주택법으로 사용승인을 받지 않고 건축법으로 허가를 받아 시공된 주상복합 아파트입니다.
    이 부분이 에너지 절약계획서 작성 시 사용승인제도와 허가제도에 따라 에너지 절약계획서 작성 방법이 다른건가요?

첨부파일로 입주아파트 에너지절약계획서 일부 첨부드립니다.
M 관리자 08.16 19:55
1. 허가시의 에너지절야계획서는 에너지공단이 검토를 하고, 지금 처럼 준공시에 제출하는 '이행검토서' 허가 관청(구청)이 검토를 합니다.

2. 도면을 그렇게 자세히 살펴 보지는 못합니다. 그저 신청자가 잘 만들어서 제출해야 합니다.

3. 이 부분의 점수를 받지 못해도, 전체 합산 점수가 일정 점수를 넘으면 허가를 낼 수 있기 때문에 그렇습니다.

4. 다르지 않습니다.
1 사월향기 08.17 00:34
현재사진1
1 사월향기 08.17 00:34
현재사진2
1 사월향기 08.17 00:35
현재사진3
1 사월향기 08.17 00:36
현재사진4
1 사월향기 08.17 00:44
현재 이정도 곰팡이입니다.

어디다 하소연을 하고싶은데 할곳이 없네요

구청은 우린 허가도장만 찍었다
에너지관리공단은 점수이상이니 문제없다
작성한 설계사무소 담당자는 퇴사했다
시행사는 뭐 시공사가 해준다고 했으니 기다리라는 식의 말투
시공사는 최초 하자를 언제 발견했나요?
이러고 날짜만 묻고있네요

시공사는 날씨가 좋아야 뭘 해본다 이러고 미루고 미루다가
다음주에 외벽 뜯어서 확인해본다하네요

6개월이 다되가는데...
1 사월향기 08.17 00:49
마음은 진짜 계약철회를 하고싶습니다.

관리자님 말씀 들어보면 저 열교부위 시공관련 내용들이 빠져있지만
문서적으로는 문제가 없어보이는데 맞을까요...

아무리 이렇게 모르는 사람이 알아가면서
뜯어보고 있지만...
변호사를 불러서 상담을 해봐야할까요..

너무 답답합니다..
1 사월향기 08.17 00:50
현재사진5
M 관리자 08.17 18:21
마지막 댓글은 질문의 연속성과는 거리가 있어서 임의로 삭제를 하였습니다. 양해 부탁드립니다.

지금은.. 도면의 불법성 혹은 오류를 파악하기 보다는 문제가 있는 부위를 철거해서 그 안쪽의 상황을 봐야 할 때입니다.
확인을 해서 얻을 수 있는 것은..
도면을 떠나서 시공 그 자체의 문제를 파악할 수 있다는 것과 도면과 현장의 불일치를 알 수 있다는 점입니다.
그러므로 다음주까지는 기다리셨다가, 만약 철거가 되지 않으면.. 지금의 사진과 함께 소유자가 직접 철거를 하고 그 비용을 청구하겠다는 내용증명을 보내고 철거를 하시는 것이 좋겠습니다.

또한 이를 떠나서 집에 온습도계가 있는지 궁금합니다. 만약 없다면 서너개를 구입하셔서 비치를 해 놓고 살펴 보는 것이 두가지 측면에서 좋습니다.

가. 적절한 온습도 조건을 지키지 못했다면, 이를 바로 잡을 수 있고
나. 적절하게 온습도를 지켰다면, 이 것이 나중에 최악의 상황에서 소송으로 들어갔을 때, 상당히 구체적이고 유리한 법정 증거로 사용될 수 있기 때문입니다.
1 사월향기 08.19 13:36
아파트 자체가 습해서 집안에 습도는 관리 안하면 70~80퍼대까지 올라가더라구요
온습도는 50~60프로로 항상 환기하고 유지하려고 합니다.
부득이한 상황에는 어쩔수 없지만요

안방, 거실, 다락에 항상 놓습니다.
단층과 다락은 습도가 10프로 정도로 다락이 더 높습니다.
단층을 50퍼대 유지해야 다락은 60퍼대로 유지되더라구요

40퍼 이하로 하면 단층이 너무 건조해서 애들 피부가 건조해져서
단층은 최대로 50퍼 유지하려고 합니다.
1 사월향기 08.19 13:36
50퍼대입니다.
1 사월향기 08.19 13:46
지금도 아침~저녁까지는 창문 열어놓고 생활하며 환기합니다.
1 사월향기 08.19 13:50
그래도 창문 닫으면 다락은 습도가 금방올라가더군요..
M 관리자 08.20 09:21
그럼.. 다락에 제습기를 하나 두시고 관리를 하는 것이 좋을 것 같습니다.
벽의 마감을 철거하는 것이 가장 급한 일이므로, (그게 성격에 따라서 잘 안될 수도 있겠습니다만...) 제촉을 계속 하시는 것이 좋겠습니다.
철거 후 사진을 올려 주시면 조치 방향에 대한 조언을 드리겠습니다.
만약 철거없이 무언가 (폼을 주입해 주겠다 등등)를 하고자 한다면 모두 거부를 하셔야 합니다.
1 사월향기 08.21 10:13
08월 21일 지붕 마감재 철거
08월 22일~24일  지붕 추가 방수공사
                          -. 기존은 방수 하고 미장작업을 했다고 합니다.
                          -. 그 위에 방수를 검정색 고무재질로 천장 전체를 다시 방수한다고 하네요...

 08월 22일 : 내벽 보양작업 후 벽지 곰팡이 제거 (아스토니쉬 사용)

추후 외벽 누수 검사를 다시 하고 이상 없을 시 내부 석고보드 교체작업을 한다고 합니다.
외벽 부분은 외단열이라 공사는 하지 않는데 공사 과정을 줄이는것 같은 느낌이 드네요..
M 관리자 08.21 11:21
공급자 측에서는 문제의 원인이 누수라고 보는 것 같습니다.
공사는 시작되었기에 그대로 두시고요. 가능하면 사진만 잘 찍어 두시는 것이 좋겠습니다.
내부는 석고보드 교체를 할 때 볼 수 있기에, 그 때 다시 사진을 올려 주시면 판단해 드리겠습니다.
1 사월향기 08.23 20:36
사진을 직접 찍지는 못하고 캠으로 찍은걸 올려드립니다.
1 사월향기 08.23 20:37
천장 사진도 올립니다.
이쪽은 곰팡이가 생기지 않은 부분 천장입니다.
1 사월향기 08.23 20:38
위 사진 검은 부분은 곰팡이가 시작될때 보수공사한 부분입니다.
1 사월향기 08.23 20:39
곰팡이가 생긴부분 천장입니다.
1 사월향기 08.23 20:41
곰팡이가 발생한 부분들은 저 위처럼 메쉬같은걸 붙이고 미장하지 않았어요

천장부분 콘크리트도 크랙이 많습니다..
1 사월향기 08.23 20:45
지금은 임시로 시트지 붙였습니다.
1 사월향기 08.23 20:48
벽지 뜯었을때입니다.
1 사월향기 08.23 20:49
추가사진 올립니다.
1 사월향기 08.23 20:52
이건 단열재 사이에 칼을 꼽네요...
1 사월향기 08.23 20:55
집에 들러서 만져보니 젖어있었네요... ㅜㅜ
M 관리자 08.24 10:26
주변 건물이 보이는 부분은 임의 수정하였습니다.

--------------------------
젖어 있었다면 누수가 맞아 보입니다.
올려 주신 사진으로 볼 때, 콘크리트 표면에 별도의 지붕을 덮을 것이기에 콘크리트 표면의 균열은 고려하지 않아도 되세요.

다만 이 것과 단열 결손은 별개의 문제인데, 모든 것을 한꺼번에 해결할 수는 없기에, 우선은 방수 공사를 다시 한 결과를 지켜 보시고, 나머지를 판단해야 하는데.. 단열 결손은 겨울이 되어야 확인이 가능하다는 한계가 있습니다.
Category