드레스룸 크랙 관련해 문의드립니다.

하자관련 질문/사례
질문 전에 먼저 검색을 해주세요.


드레스룸 크랙 관련해 문의드립니다.

G 공주님 5 996 05.21 23:03

안녕하세요 건축관련 지식에 부족하여 도움을 받고자 글을 올립니다.


입주를 앞두고 있는 아파트에서 안방 드레스룸 벽이 휘어진 하자를 발견하여 하자보수를 위해 벽지를 볏겨둔 맨벽을 보게되었는데, 벽에는 천장부터 바닥까지 이어진 큰 크랙이 2줄 정도 발견되었습니다.

시공사에서는 구조적으로 문제가 없다고 했지만 원래도 하자 보수를 안해주기 위해 제대로 정보를 주지 않으며, 이번 크랙도 저희가 공사 현장을 찾아가지 않았다면 그대로 묻혔을 일이라서 시공사의 문제가 없다는 말이 의심이 됩니다.

그래서 건축관련 지식이 풍부하신 분들의 도움을 받고싶습니다.



정말 구조적으로 문제가 없는것이 맞나요?


지금처럼 안방 드레스룸 벽에 크랙이 발생했을 경우 나머지 벽에도 크랙이 있을 가능성이 있나요?


벽 휘어짐을 잡기 위해 하자보수를 미장으로 한다 했는데, 크랙 관련해 아무런 조치없이 그냥 미장으로만 덮어버려도 괜찮나요?


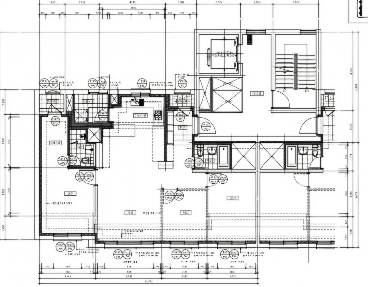
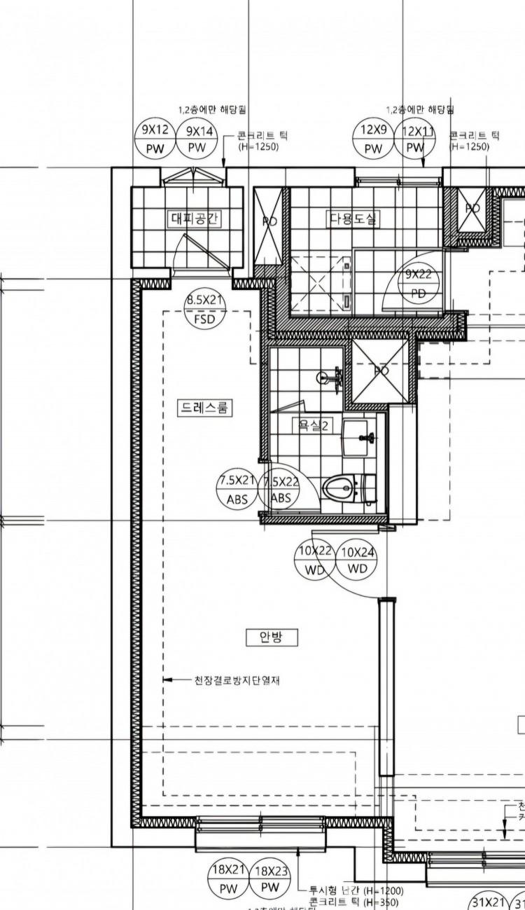
크랙사진과 구조도를 함께 첨부합니다.

크랙이 발생한 위치는 안방 드레스룸이며 내력 골조벽이고 다른세대와 공용으로 쓰는 벽 입니다.


긴글 읽어주셔서 감사합니다.


Comments

M 관리자 05.22 08:40
안녕하세요.

올려 주신 도면에서 드레스룸 왼쪽벽(외벽)인가요?
G 공주님 05.22 23:59
왼쪽벽입니다. 가운데 세대로 옆집과 공유하는 골조벽입니다.
M 관리자 05.23 07:13
아직까지 구조적으로 문제가 있을 정도는 아닙니다만, 보수는 되어야 합니다. 구조적인 것도 일부 있겠지만, 세대간벽이라서 소음이 넘어 올 수도 있기에 그렇습니다.
이 정도의 균열은 에폭시 주입식 공법으로 채우는 작업이 요구됩니다.
G 공주님 05.23 14:16
저희집에서 균열이 발생되었다면  맞닺고 있는 세대의 벽면에도 균열이 있을 수 있을까요?
M 관리자 05.23 15:18
지금의 폭으로써는.. 네 그렇습니다.
Category