우풍 해결방안 어드바이스 부탁드립니다

하자관련 질문/사례
질문 전에 먼저 검색을 해주세요.


우풍 해결방안 어드바이스 부탁드립니다

G 샬롬하우스 2 1,055 04.25 09:16

안녕하세요.

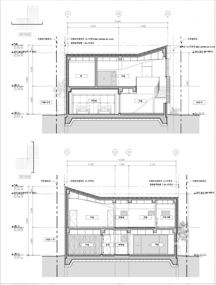
2층 단독주택에 살고 있습니다.

안방이 2층에 있는데, 겨울에  우풍이 느껴집니다.

저는 1층에서 올라오는 우풍과, 안방과 붙어 있는 드레스룸에서 오는 우풍이라는 생각이 들었습니다. 

그래서 잠잘때나 아침에 일어나자마 우풍이 많이 느껴집니다.

이 우풍을 해결할수 있는 방법이 있나요?

우풍이 나오는거 같은 공간의 보일러 안방보다 좀더 쎄게 돌리니 우풍이 사라는지는거 같기는 한데 

다른 방법이 있나요?

 

* 특이사항

1. 실내주창과 1층이 붙어 있고 폴딩도어로 막아져서 있음(우풍 예상 지역)

2. 드레스룸: 우리집에가 가장 북향쪽임

3. 우드창호로 전체 설계

 

20250425090855__emus.jpg

 

20250425090902__7iah.jpg

 

20250425091513__7npk.jpg

Comments

M 관리자 04.25 12:06
안녕하세요.

올려 주신 도면에 주소 등의 개인정보가 있어서 임의 수정하였습니다. 양해 부탁드립니다.

--------------------
혹시 저희가 방문 점검을 해드려도 될까요? 그저 협회 차원의 호기심 때문이며, 비용은 무료입니다.
가능하시다면 연락처를 비밀글로 주시면 연락드리겠습니다.
G 조성현 04.25 12:45
댓글내용 확인
Category