안녕하세요 아파트 화장실 냄새 유입으로 도움을 받고 싶습니다..

하자관련 질문/사례
질문 전에 먼저 검색을 해주세요.


안녕하세요 아파트 화장실 냄새 유입으로 도움을 받고 싶습니다..

G 도와주세요 13 1,613 03.10 10:42

84b1 평면도.jpg

안녕하세요. 지금까지 올라온 글 검색해서 많이 읽어보았지만 확실한 방법이 떠오르지 않아 이렇게 문의 글 남깁니다..ㅠㅠ도와주세요

 

먼저 저희집은 2018년에 완공된 아파트로 저희는 탑층에 입주한지 3년차입니다.

안방 화장실에서 원인모를 냄새가 나서

처음에는 입주하기 전에 두달정도 비워놔서 냄새가 나는걸로 생각하고

사용하다보면 안날거라고 생각하면서 사용했습니다.

(입주하기전에 시스템에어컨 시공했습니다.)

 

하지만 계속해서 냄새는 없어지지 않아서 냄새의 원인을 찾아서 없애고자 노력했습니다.

 

먼저 변기가 문제인줄알고 변기도 바꿔보고 하수구도 테스트해보았지만 아니었고

환풍구도 댐퍼가 닫혀서 아닌것같습니다..

그래서 문제의 원인은 천장인것 같다는 결론까지는 왔습니다..

일단 천장을 열으면 냄새가 더 나는 것 같습니다.

 

냄새가 찌르는듯한 하수구 냄새가 아니고 하루종일 나는 것 같지 않고

은은하게 쌓이는 느낌으로 아침시간과 밤 시간대에 가장 심하게 납니다.

가끔 문을 닫아놓고 환풍기를 켜놓고 자도 아침에 냄새가 납니다..

그리고 이게 안방 화장실에서만 나는 냄새인줄 알았는데

가끔 거실 화장실에도 아침에 냄새가 쌓여있을때가 있습니다. 거실 화장실은 늘 문을 열어놓기때문에

냄새가 안나는줄알았는데 아침에 처음 들어가면 냄새가 느껴질때가 있고

환풍기를 키면 없어집니다.

 

그래서 관리사무소에 문의해서 천장 안쪽에 틈새가 있는지 확인하고

모서리 부분을 폼으로 메꿔주셨습니다. 거실화장실도 비트라인? 쪽 모서리부분에 빈틈같은데를 실리콘으로 메꿔주셨습니다.

 

그래도 계속해서 냄새가 나니 안방화장실 체킹홀?도 아예 막아버리고 

실리콘으로 부분부분 다시 틈을 메꾸기도 했습니다. 아래사진은 안방화장실 천장 열었을때 모습입니다.

 

KakaoTalk_20250310_102120946.jpg

 

KakaoTalk_20250310_102120946_02.jpg

 

 

 

KakaoTalk_20250310_102120946_05.jpg

위의 체킹홀은 지금 아예 막았습니다.

 

아래사진은 천장 위쪽 단열(부직포?) 같은곳에 얼룩으로 조금 젖어있는 모습입니다..

이 것때문에 냄새가 날수도 있는거면

락스로 닦아내고 말려야하는걸까요? (제가 올라가서 이쪽에 직접 코를 대고 맞아보면 냄새가 나는 것 같지는 않습니다..)

 

결로의심.jpg

 

오늘까지도 냄새가 계속해서 나고 있습니다..

 

그래서 말씀해주신대로 저 폼이 2mm이하의 작은 틈은 메꾸지 못한다고 하셔서

저 폼을 다 뜯어내고 실리콘 등으로 모서리 틈새를 다시 메꿔야 하는건지..

(아파트 옥상의 벤틸레이터 안쪽 청소를 해달라고 요청을 해볼까도 합니다.)


계속해서 정확한 원인도 못찾고 해결도 안되고 있어서

많이 힘들어서 이렇게 문의 글 남깁니다..

 

다시 처음부터 어떤 순서로 접근하면 좋을 지 조언 부탁드리겠습니다..감사합니다

Comments

M 관리자 03.10 10:45
안녕하세요.
맨 마지막 사진의 어려개 다발로 되어 있는 하얀색 배관은 무엇인지 혹시 아실까요?
G 도와주세요 03.10 10:51
시스템에어컨 설치해서 그 배관인것같습니다
G 도와주세요 03.10 10:52
안방화장실 옆쪽으로 실외기실이 있어서 에어컨 배관이 그쪽으로 빠집니다.
M 관리자 03.10 13:44
크게 두가지 관점에서 설명을 드려야 할 것 같습니다.

1. 여쭈어 본 에어컨 배관과 같이 여러 다발이 묶여서 지나갈 경우, 그 원과 원이 만나는 중간의 틈새를 메울 방법은 없습니다.
그러므로 이 부분은 (배관을 다른 곳으로 돌리거나 하는 등의) 더 근본적인 해결책이 마련되어야 합니다.

2. 탑층은 단열재 때문에, 조적벽과 슬라브가 만나는 틈새가 보이지 않습니다. 단열재 틈새는 메워봐야 그 역시 근본적인 해결책은 아닙니다.  그러므로 아래 그림처럼 단열재의 일부를 제거한 후에 조적 틈새를 메워야 합니다.

위의 두가지를 제대로 하려면 화장실 점검구에 들어가서의 작업은 불가능하므로 천장 자체를 제거하고 작업이 되어야 합니다.
-----------------

이 모든 것이 다 된 후에도 냄새가 사라지지 않을 수 있습니다.
그 것은 타일 뒤쪽의 조적과 벽이 만나는 곳에 틈새가 있다는 의미입니다. 매우 좋은 않은 경우이긴 한데.. 이 경우라면 타일까지 철거를 하고 틈새를 메우는 방법 밖에 없습니다.
그러므로 위 두가지 작업을 선행 한 후에, 냄새 여부를 확인하고 문제가 사라진 후에 천장을 다시 덮는 것이 좋습니다.
G 도와주세요 03.10 14:23
답변감사합니다. 에어컨 배관을 넣기 위해 실외기실로 뚫은 곳 사이에 틈이 있을까요?
화장실 천장에서 실외기실로 구멍을 내고 그 사이로 배관을 뺀거 같은데 원과 원이 만나는 중간의 틈이라고 말씀하신게 잘 이해가 안되서요 ㅠ그 사이로 냄새가 들어올수도있는건가요?
 그럼 위에 사진에서 보신 것과 같이 틈새가 생길 수 있는 곳에 폼을 쏴서 막아 놓은 부분을 다 제거하고 모든 벽면의 단열재 일부를 제거하고 틈새를 다 막아야 하는건가요?
이건 동네 인테리어 집에 문의하면 가능한건지 관리사무소에서 해줄 수 있는 내용인지..관리사무소에 이대로 말씀 드려봐야겠네요 ㅠㅠ
M 관리자 03.10 19:56
그 보다는 먼저 관리사무소에 이야기하셔서, 보관 중인 도면 중에 세대 평면도를 사진찍어서 올려 주시겠습니까?
그래야 정확히 조적벽이 어딘지를 알고 서로 대화가 될 것 같습니다.
G 도와주세요 03.11 11:28
네 감사합니다 오늘 퇴근후에 관리사무소 들러서 사진찍어서 올리겠습니다. 감사합니다!!
G 도와주세요 03.11 13:51
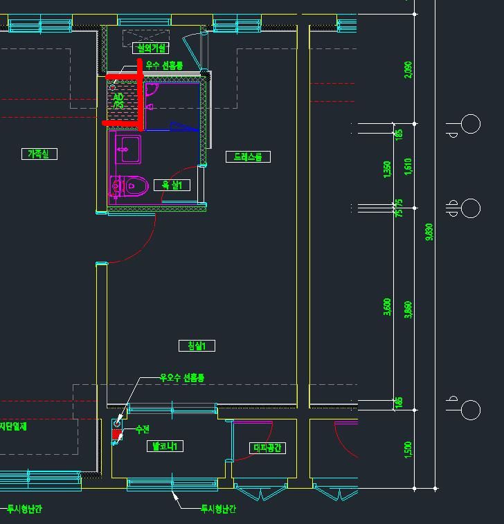
관리사무소에 세대 평면도 보내달라고 하니 이 사진 보내주었는데. 이걸로 확인할 수 있는걸까요?
M 관리자 03.11 14:16
네 괜찮으나, 조금만 더 해상도가 높았으면 좋겠습니다. (더 큰 용량의 사진)
새로 올려 주실 때, 비밀글로 올려 주시면.. 개인정보(아파트이름) 등은 제가 제거를 하고 공개글로 전환을 하겠습니다.
G 도와주세요 03.12 10:01
관리사무소에서 도면 받기까지 시간이 조금 소요됐네요. 이렇게 올려드립니다. 감사합니다 !
M 관리자 03.12 10:56
제가 외근이라 오후에 답변 드리겠습니다.
M 관리자 03.13 12:06
올려 주신 도면에서 빗금쳐진 벽이 모두 조적벽인데... 냄새가 유발된다고 추정되는 PD와 면한 벽에 붉은 색으로 표시를 하였습니다.
이 벽을 관통한 배관, 그리고 벽의 틈새를 보완하셔야 합니다.
G 도와주세요 03.15 23:42
제가 정신없는 일이 좀 있어서 이제 확인했네요. 답변 너무 감사합니다. 말씀해주신 부분에 단열재를 조금 잘라내고 틈새를 매꿔보도록 하겠습니다!!
Category