안방 콘센트/스프링클러 냄새 발생 문의

하자관련 질문/사례
질문 전에 먼저 검색을 해주세요.


안방 콘센트/스프링클러 냄새 발생 문의

1 곰이22 8 1,956 2024.01.25 17:17

안녕하세요

 

우선 글쓰기 전, 이런 게시판이 존재하게 해주시는 분들께 감사드립니다.

기존 질문 글들을 보며, 정말 많은 도움이 되고 있습니다.

 

15년차 아파트 27층 중 26층에 살고있으며,

안방 화장실(도면상 욕실-2) 냄새로 고통받다가 천장 시공을 하였습니다.

 

작업하신분께 설명 듣기로는, 환기구와 오수관?(배관) 틈이 일부 있었고 해당 부위를 모두 막는 시공을 하였다. 라고 들었습니다.

화장실 천정의 점검구까지 실리콘으로 마감하여, 일주일 정도 지난 현재는 화장실 냄새가 조금도 발생하지 않습니다.

 

화장실 냄새가 사라진 후 안방에서도 정화조 냄새같은 악취가 미세하게 발생하여, 

(안방 문을 닫아놨다가 들어가면 냄새가 고여있습니다.)

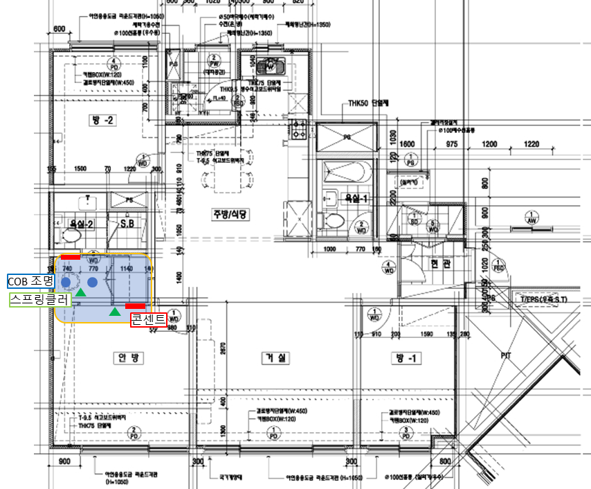
원인을 찾다보니 첨부와 같이 cob조명 틈/스프링클러/콘센트 등에서 바람과 함께 냄새가 유입되고 있었습니다.

 

아래 도면의 파란색 표시된 곳을 제외하고, 다른 스프링클러/조명/콘센트/화재감지기/전등 틈에서는 냄새가 유입되지 않습니다. (스프링클러에서 바람은 유입됩니다..)

 

 

FileDownload.aspx?AttachmentID=AAMkADNkNzdkMmMzLTk2MmItNDk2MS1hM2EwLTI1ODI4ODFlYTg3NgBGAAAAAADboknBX0YIRYchC1JNT6ViBwAP9YtkWjJQQ4kOBG3aTrc2AAAA5pdAAAD3Po0dRHgdSLZddyt%2bWkvbAAAzQgGgAAABEgAQAPc2b8JsFl9MojnlJazZJas%3d&FileName=20240125_165733521_64767.png&FileSize=311575&DnId=2 

  의문인 점은 안방 내에서도 왜 가상의 선을 기준으로 냄새가 나고 안나고 차이가 나는지.. 궁금합니다.

 

해당 공간은 안방과 화장실 사이에 화장대 공간으로 가벽으로 일부 막혀있으며,

왼쪽은 화장대, 오른쪽은 붙박이장 같은 옷장입니다.

 

냄새는 봄/여름/가을에는 아주 약하게 발생하고, 

겨울 특히, 기온이 굉장히 떨어지는 날 냄새의 강도가 심해집니다.

 

화장실 공사를 해준 업체에서는 인테리어 자재 냄새일 수 있다고 하는데,

어떤 것부터 점검해야하는지, 추정되는 원인이 있으신지 문의 드립니다.


어렵게 내 집 마련을 했는데,, 냄새가 발생하여 정말 상심이 큽니다..

정말 바쁘시겠지만 답변 부탁드립니다.

 

정말 감사드립니다.

Comments

M 관리자 2024.01.26 00:08
안녕하세요.

첨부 그림이 열리지 않습니다. 한번 봐주세요.
1 곰이22 2024.01.26 09:37
안녕하세요

댓글로 첨부하였는데, 확인 부탁 드립니다.
M 관리자 2024.01.26 10:25
화장실 내부의 PS 라고 적힌 곳이 수직 배관이 올라오는 공간인데...
관리사무소에 이야기하셔서, 준공 도면 중..안방과 이 PS 간에 연결된 배관이 있는지를 알아 보셔요.
예를 들어 환기배관 또는 스프링쿨러 등등... 이 배관이 화장실벽과 드레스룸 벽을 관통해서 안방으로 들어오는 과정에서.. 해당 배관과 벽 사이의 틈새가 있는 것 같습니다.
1 곰이22 2024.01.26 11:16
답변 감사합니다! 확인해보겠습니다.
1 곰이22 2024.02.19 19:01
안녕하세요 혹시 여기에 글을 남겨도 답변을 주실까해서 남깁니다.

Cob 조명을 열어 확인해보니 전열교환기배관이 그대로 노출되어 있습니다. 천장에서 냄새가 쏟아지는 것으로 보아 천장에서 나는 냄새는 맞는 것 같은데요.

인테리어 진행하면서 전열교환기를 제거해달라고 했는데, 천장에서 배관만 뺀 상태로 그대로 천장 위에 남아있었습니다. 화장실 방향 벽쪽에서 배관이 나오고있었습니다.
다만 전열 교환기에서 화장실에서와 같은 냄새가 날 수 있을까요? 저 ps를 동일하게 사용한다면 그럴 수 있을 것 같은데.. 다른 거실/방 천장에서는 전혀 냄새가 안납니다.

추가적으로.. 가끔 바람이 많이 부는 날 안방 화장실 근처에서만 공명음이 납니다

1. 안방에만 음압이 걸려 위와 같은 냄새가 외부에서 유입된다.
2. 안방 천장 전열교환기/화장실 환풍구만 해당 ps와 연결되어 있어 악취가 유입된다.

위 두가지 일 가능성이 있을까요?
1 곰이22 2024.02.19 19:02
(+) 위 두가지 경우라면 해당 배관 막음 공사를 한다면 냄새가 사라질까요?
M 관리자 2024.02.19 19:02
2번의 가능성이 있어 보입니다.
배관 보다는. 배관이 벽을 관통한 틈새를 보셔야 할 것 같습니다. 물론 공사의 편의성을 볼 때 일단 배관을 막고 그 양상을 먼저 보는 것이 좋겠습니다.
1 곰이22 2024.02.19 20:52
감사합니다 조치해보겠습니다!
Category