아파트 탑층 콘센트 주위 도배지 젖음

하자관련 질문/사례
질문 전에 먼저 검색을 해주세요.


아파트 탑층 콘센트 주위 도배지 젖음

G 나그네 10 1,891 02.24 10:26

안녕하세요

도무지 원인을 알수없어 도움을 받고자 글을 쓰게 되었습니다.

6~7년된 아파트 탑층에 거주중입니다.

최근 비온후 도배지가 젖어있어서 처음 발견하게 되었고 위치는 거실 하단에 위치한 콘센트입니다.

콘센트를 열어보니 cd관이 아래쪽으로 매립이 되어있는데

위로 넘처흘러 콘센트 주위로 도배지가 젖었습니다.

발견당시 바로 관리사무소에 연락했고 후에  전기기사님이 방문하였지만 원인은 파악이 되지 않았습니다.

그뒤로 다시 흐르거나 한적은 없지만 기사님이 구멍으로 선을 조금 넣었는데도 물이 뭍어 나왔습니다. 

 

추후 일정을 잡아 예비전선을 연결하여 해당콘센트 안에 물을 제거해보자까지만 이야기가 된 상태입니다. 

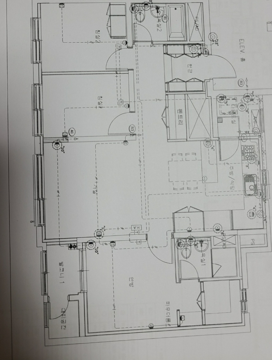
해당 위치는 이곳. 빨간점 위치 입니다. 

 

질문입니다. 

1. 옥상쪽 누수로 인해 배전반이든 다른곳이든 해당 콘센트 cd관에 물이 유입 가능성이 있는지, 

아니면 다른 원인은 무엇무엇이 있을까요?

2. 해결책이 있다면 어떤식으로 작업하면 되는지 의견 부탁드리겠습니다. 감사합니다.


2.jpg

Comments

M 관리자 2024.01.30 01:42
안녕하세요.

우선은 비와의 연관성에 대한 확인이 되어야 하는데요. 실제 누수와 연관되었을 확률은 적고 대부분 CD관 내부의 결로 문제이긴 하나, 이미 오랫동안 거주를 하셨는데, 올 해만 그러하다면 누수의 가능성도 열어 놓아야 할 것 같습니다.

문제는.. 누수라면 그 원인을 찾기가 쉽지 않다는 점입니다. 저 역시도 딱히 어디를 보시라 말씀을 드리기는 어렵습니다.  관리사무소에서 보관 중인 전기 도면을 확인해서, 해당 CD관이 어디를 거쳐서 해당 위치까지 왔는지를 파악한 후에 그 경로에 있는 모든 것을 다 확인해 봐야 하는데요.
옥상의 누수라면 CD관 만의 문제는 아니기에, 오리무중에 빠질 가능성도 있습니다.

만약 비와의 연관성이 없다면 결로의 문제이며, 아래 글이 도움이 될 것 같습니다.
https://www.phiko.kr/bbs/board.php?bo_table=z4_03&wr_id=33393
G 나그네 2024.01.30 10:02
전기도면 첨부해보겠습니다 어느부분을 어떻게봐야될까요?
G 나그네 2024.01.30 10:06
오른쪽에 안방은 외벽이아닌 다른라인에 붙어있습니다
G 나그네 2024.01.30 10:40
다시 비오는날 넘치는지 체크해보겠습니다
누수가아닌 결로였다면 댓글로주신 제품으로
해당콘센트 한쪽만 작업하면될까요 아님 연결된 양쪽을 다 막아야될까요?
어느부분을 작업하면될까요? ㅜ 고견 감사드립니다~!!
M 관리자 2024.01.30 11:31
해당 콘센트는 분전반의 R3번 차단기에 물려져 있습니다.
거실 맞은편 콘센트와도 연결되어 있으니.. 맞은편 콘센트에 물기가 없다면.. 분전반으로 부터의 결로로 보입니다.

우선은 분전반을 열어서 누수의 흔적이 있는지 봐주세요.

막는다면 거실 쪽만 막으시면 되세요.
G 나그네 2024.01.30 12:24
여러번 질문드려 죄송합니다. 막아야되는부분이 물나오는관
전선포함 주위로 쏴서 막아서 사용하면 된다는것인지..
아니면 전선을 제거하고 막아서 그 콘센트를 사용 못하게 하는것인지 정확히 이해하지 못했습니다.
G 나그네 2024.01.30 12:30
거실 반대쪽 콘센트에도 물기가 있다면 결로가 아닌 어딘가의 누수로 추정해야된다는 말씀이시죠?
M 관리자 2024.01.30 12:35
물이 공배관 속에서 나온다면, 그 공배관으로 공기가 들어가지 못하도록 막는 것을 의미합니다. 속의 전선은 사용하고 있는 상태를 유지하시면 되세요.

반대쪽을 살피시라 말씀드린 것은.. 반대쪽에서 (확률은 낮지만) 결로수가 흘러 갈 수 있기에 그 쪽도 같이 막아야 하는지의 여부를 판단해야 한다는 뜻이었습니다.

누수는 비와의 연관성을 스스로 판단 하셔야 합니다.
G 나그네 2024.01.30 13:39
많은 도움이 되었습니다^^
소중한 시간 써주셔서 감사드립니다.
추후 문의사항이 있을시 새글을 통해 문의드리겠습니다.
M 관리자 2024.01.30 21:00
감사합니다.
Category