아파트 외벽라인 천장속 결로 보수를 어떤식으로 해야 되나요??

하자관련 질문/사례
질문 전에 먼저 검색을 해주세요.


아파트 외벽라인 천장속 결로 보수를 어떤식으로 해야 되나요??

G 김서방 21 4,300 2023.08.12 07:11

 안녕하세요

7월 28일 아파트에 입주하고 이틀만에 벽면 모서리에 곰팡이 발견해서 우울해졌습니다

입주 전에 사전에 도배 및 인테리어 했는데 곰팡이 생겨서 집이 어수선한 상태입니다

처음에는 7월 장마로 인하여 외벽 빗물 누수인줄 알았는데 

천장 환기장치 디퓨저 쪽으로 보니까 외벽라인에 결로가 생겼더라구요

드레스룸.JPG

 

거실-실외기방향 벽면2.JPG

 

거실-실외기방향 벽면.JPG

 

거실-샷시 방향 커튼박스.JPG

물방울 발생구역.JPG


현재 노란색 부분에 결로가 발생되어 물방울이 단열재 표면에 보였습니다. 

아마도 실내 에어컨 가동으로 인해서 결로 생긴거 같아요

에어컨을 안쓸 수는 없을 것 같고... 단열 공사를 해야 될것 같긴한데...

이런 상태에서 어떤식으로 단열 공사를 하는게 좋은지 조언좀 구하고 싶습니다

 ▶1)단열공사할 때 기존 단열재 전부 철거하고 단열재우레탄폼으로 밀폐되게 시공하는게 좋은지... 아니면 철거 후 이보드? 단열재 같은거 다시 설치 후 빈틈을 폼으로 메꾸는게 좋은지요?

기존 단열재 보드는 놔두고 빈틈만 이보드로 하는게 좋은지요?

 

2)시공부위는 커튼박스 포함 외벽면과 접하는 부분 모두 해야 되는지요?

 

3) 시공 후 관리는 어떻게 하면 좋은지도 궁금합니다

 

 

곰팡이 자국은 세대 평면도의 노란색 부분과 커튼박스 와 샷시 연결부분등에 곰팡이 생겼습니다

▶안방 모서리쪽 곰팡이는 거실 왼쪽의 외벽 라인과 붙은 부분이라서 물기가 유입된거 같아요......


곰팡이 발생구역.JPG

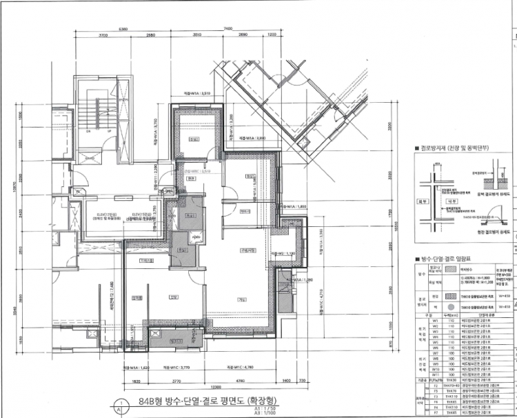
 혹시 몰라 관리사무소에 단열재 관련 도면을 받았는데 화질이 좋지 않지만 첨부해 보겠습니다

 

결로 관련해서 많은 경험 있으신분들에게 조언좀 듣고 싶어요.ㅠㅠ

※관리사무소에서는 결로는 세대에서 해결해야 된다고 해서 전혀 관심도 안주네요..ㅠ 

아파트 매수하고 입주하자 마자 이러니까 상당히 난감합니다..ㅠ

단열재 도면-반출용.png

 


Comments

M 관리자 2023.08.11 18:30
안녕하세요.
올리신 사진 중에서 단열재 표면에 물이 묻어 있는 부위가 정확하게 어느 부위인지.. 평면에 표시해 주실 수 있으실까요?
그리고 에어컨 실내기와 실외기 위치도 같이 알려 주시면 좋겠습니다.
G 김서방 2023.08.12 07:12
단열재 표면에 물이 묻어 있는부위.. 평면도에 사진 순서 번호로 수정했습니다

두번째 평면도 사진에는 곰팡이가 발생한 부위도 표기했어요

시공방법과 업체 선정등 어떻게 해야 될지 고민스럽네요
G 김서방 2023.08.12 07:14
※그리고 평면도에 외벽면이라고 되어 있는부분은 정남향에 가까워서 해가 잘드는 편입니다
M 관리자 2023.08.13 23:37
사진 고맙습니다.
결로의 양상이 조금 당황스러운데요. 여름에 해당 위치에 이 정도의 결로가 생기는 것은 생경해서요.
결로가 생긴 부위에 배관이 하나 지나가는데요. 번거롭게 해드려 죄송합니다만, 이 배관이 무엇인지 관리사무소에 한번 물어봐 주실 수 있으실까요?
G 김서방 2023.08.14 14:58
관리사무소에 확인은 못했지만
말씀하신 배관은 실내 에어컨과 실외기 연결 배관으로 추정됩니다
혹시 에어컨 배관에서 냉매 누설로 결로가 생길 수도 있나요???

저도 여름에 이렇게 결로가 생길 수 있는점이 너무 당황스럽더라고요
거실은 사진찍은날에 에어컨을 많이 켜 놓은 날이었고, 천장에 설치된 환기 디퓨저의 고정이 불량하여 실내의 에어컨 찬공기가 천장쪽으로 유입 되었을 수도 있을 것 같아요...
(사진찍은 날 거실 디퓨져 2개가 고정이 불량하여 천장으로 공기 유입 가능한 상태로 설치되어 있
었음)


드레스룸(안방과)은 아예 에어컨을 틀지 않았는데 첫번째 사진처럼 결로 물방울이 생겨서 어떤 원인 인지도 모르겠네요...ㅠ
M 관리자 2023.08.16 01:42
냉매 누설은 있을 수 없고, 있다고 하더라도 이런 식의 결로로 이어지지는 않습니다. 극히 짧은 시간 내에 다 빠져 나가거든요.

그 보다는 에어컨을 가동했을 때 배관의 표면을 만져 보시겠습니까? 충분히 차갑다면 이런 결로가 생길 수는 있습니다. 그리고 에어컨을 가동하지 않은 방에서도 생긴다면, 콘크리트 건조수분 밖에는 없는데, 그러기에는 양이 많긴 합니다.
G 김서방 2023.08.16 18:43
아네네 에어컨 배관 표면 한번 체크 해 보겠습니다!!

드레스룸은 어제 확인하니까
본문의 첫번째 사진 구간이 드레스룸 물방울인데
아이소핑크쪽은 물방울이 사진으로는 안보였어요

드레스룸의 커튼박스와 외벽 벽면쪽 단열재쪽은 물기가 조금 있었어요
G 김서방 2023.08.16 18:44
드레스룸 커튼박스와 외벽 접합면 물기 조금 있었어요
빨간 표시한곳이요
G 김서방 2023.08.16 18:45
사진첨부합니다
M 관리자 2023.08.16 21:24
주로 외벽 콘크리트 쪽에서의 결로로 보입니다.
누수로 보이지는 않으므로, 우선은 에어컨 배관을 확인하시고, 신축아파트라면 콘크리트 초기 건조수분의 양 때문일 수도 있으므로, 떨어질 정도가 아니라면 일단 (이제는 에어컨 가동도 거의 하지 않는 시기가 도래를 했으므로) 조금만 그냥 지켜 보시는 것도 좋겠습니다.
G 김서방 2023.08.18 13:19
지금 안방에서 세탁실 나가는쪽 모서리벽이랑
드레스룸 모서리 벽 곰팡이가 심해서 도배 벗기고 닦은 상태입니다ㅜ
관리자님 말씀하신데로 여러 가능성  열어놓고
관찰좀 해보려고요
휴대폰 내시경 카메라도 하나 구매했어요ㅎ
비가 좀 오고나면 천장쪽 상태비교도  해보겠습니다
에어컨 배관도 확인해볼게요!!
결로이거나 단열이거나 보수가 쉽지는 않을 것 같아서 약간 힘빠지지만 힘내보겠습니다

사진은 초기 발견된 드레스룸 모서리벽 곰팡이 사진입니다
M 관리자 2023.08.18 13:49
네 지난한 과정이지만 시간만이 결과를 알려 줄 수 있으니.. 아무쪼록 힘내세요.
감사합니다.
G 김서방 2023.08.20 19:33
관리자님 바쁘실텐데 지속적인 관심과 조언 감사합니다
오늘 에어컨 배관을(본문2번째 사진, 은색 보온재 배관) 확인하였는데 물기는 없었습니다
그런데 거실 우측 벽면과 천장사이 틈새에서 물방울이 생겨 있었습니다..
이것이 결로 형태인지 누수인지는 알수 있을 까요??
발생 위치와 틈새 형태 사진 첨부합니다
G 김서방 2023.08.20 19:37
거실 드레스룸 (좌측 모서리쪽 벽면)은 지난주에 물기가 없었는데
오늘 보니까 물기가 다시 생겼더라고요 비때문인지 결로인지 구분이 안가서
오늘 물기를 닦아두었습니다 지켜보면서 다시 확인해봐야겠습니다
M 관리자 2023.08.20 19:38
알겠습니다. 수고 부탁드리겠습니다.
G 김서방 2023.08.21 09:05
관리자님 혹시 위쪽 댓글 내용에서
거실 우측벽면 단열재 틈새 내부에 물방울이 확인된거는 결로일수도 있나요??
물방울 형태는 결로처럼 보이기는 하는데 무더운 여름에 결로가 생기는게 이상해서요..
저기 틈은 너무 좁아서 닦을 수는 없어서... 그냥 둔 상태입니다..
M 관리자 2023.08.21 09:10
위에 말씀드린 바와 같이, 저 역시 의문인지라.. 에어컨 가동이 멈춘 후의 양상을 지켜 보고자 했습니다.
G 김서방 2023.08.21 14:44
네 알겠습니다. 저도 좀 지켜보면서 관찰을 해볼게요 ㅠ 
집에 벽지를 다 뜯어 놓아서 얼른 고치고 싶긴한데... 원인을 알아야 제대로 고칠것 같아서요 ㅠ
관찰 후에 경과글 올리겠습니다 ㅠ
감사합니다
M 관리자 2023.08.22 10:12
네 아무쪼록 수고 부탁드리겠습니다.
G 궁금 2024.08.23 08:07
1여년이 지난 지금 어떻게 결론이 났나 궁금합니다.
저도 2023년 비슷한시기에 이 글을 보았는데,, 결과가 안나와서리..
저희도 비슷한 상황입니다.
M 관리자 2024.08.23 09:31
아마도 글을 적으신 분이 현업에 바쁘셔서 후기를 올리지 못하고 계신 것 같습니다.
저 역시 결과를 알지는 못합니다.
Category