단독주택 주방, 거실, 화장실 천장 누수

하자관련 질문/사례
질문 전에 먼저 검색을 해주세요.


단독주택 주방, 거실, 화장실 천장 누수

G 장태영 17 7,451 02.21 13:58

경기도 용인이며 경량철골 단독주택(지하1개층 콘크리트, 지상 2개층 경량철골)준공 2년이 지났습니다

 

준공전부터 시공사의 공사비장난(미시공 오시공 상태로 차일피일미루다 준공만 난상태에서 법적공방 중입니다)으로 문제가 많았습니다

 

입주 후 2층 테라스 아래인 주방에서 물이 떨어지고 주방과 이어진 거실 천정도 문제가 발생했습니다

 

그럼에도 살기는 살아야 하는지라 현장소장에게 물어보니 2층 테라스 방수문제일것이라는 의견을 듣고 올해 4월 새로 방수공사를 했습니다

같은 시점에 화장실천정에서 물떨어짐이 의심되어 테라스공사하면서 화장실 3곳(1층1곳, 2층 2곳)을 공사했습니다

 

그런데도 상황이 해결되지 않았습니다

 

 수도급배수 누수점검상 정상입니다

 

최근 바로 인해 주방 천정과 거실 천2정, 1층 화장실 천정에 이어 주방과 거실사이에 있는 복도 천정에서 물이 떨어집니다

{이미지:0}

 

그런데 정확히 같은 라인에서 떨어집니다.

 

화장실천정에서 보니 골조기둥에서 물이 비치더니 OBS 합판을 타고 오는것 같습니다.{이미지:1}

 

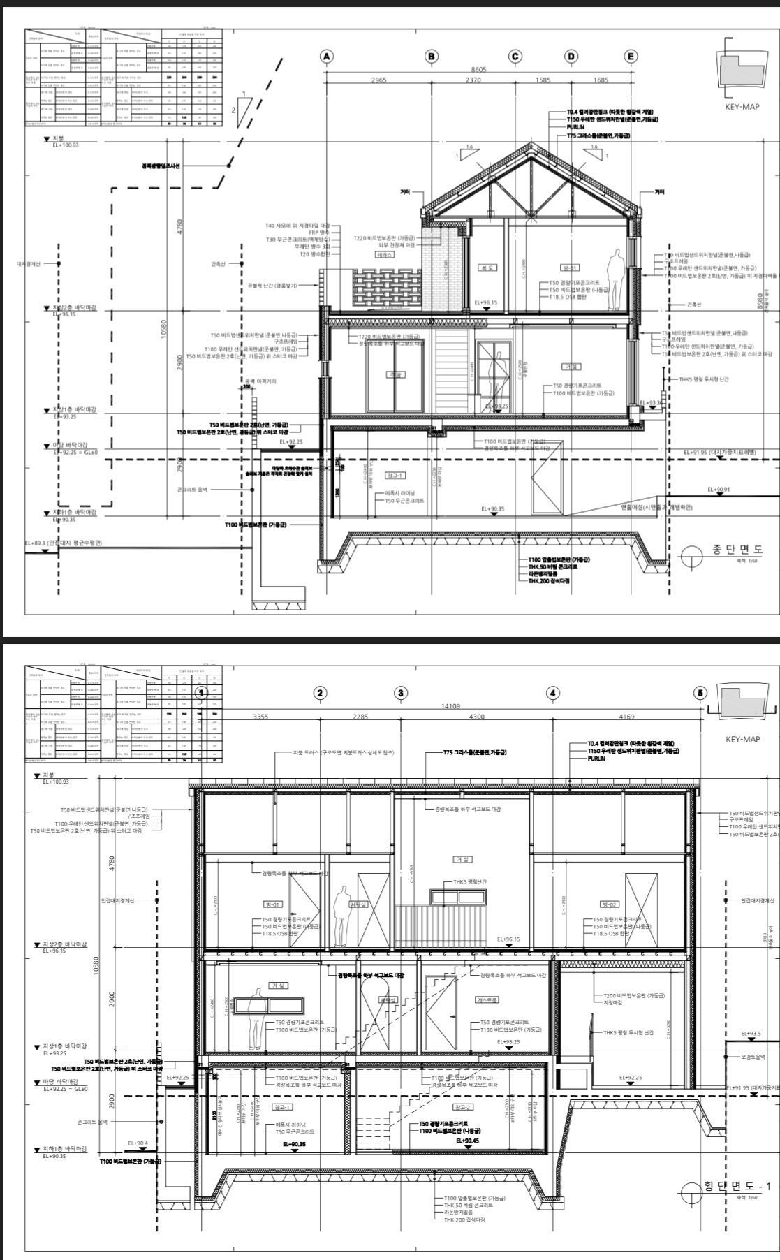
참고로 바닥은 도면상 경량기포콘크리트+비드법 보온재 2호+OBS 마감입니다

 

외부는 스터코에 치정벽돌 일부인데 치정벽돌은 전면부 2층부분과 후면부 2층 테라스 입구 주변에 마감되어있습니다 {이미지:2}

 

치정벽돌은 샌드위치판넬에 비드법2호 위에 마감되었습니다

 

미장방수 하시는 분들의견은 비드법2호 즉 드라이비트를 타고 내부로 들어오는것 같다고 하셔서 현재 발수공사를 계획하고 있습니다

 

발수공사를 해서 누수가 잡히면 좋겠지만 그렇다고 내부 도배 목공작업을 한 후에 또다시 문제가 발생될까 이러지도 저러지도 못하고 있습니다

 

외부 치정벽돌을 다 철거해야 하는지 걱정입니다 

 

정확한 원인을 못잡으니 심히 답답합니다..

 

아이들을 위해 지운 집인데 아이들이 물양동이를 피해다니고 이제 곧 첫돌을 맞이하는 둘째는 한참 기어다니고 싶어하는데 그러지도못합니다

 

전문용어나 상황설명 두서없지만 전문가분들께서 세심히 살펴봐주시길 바라겠습니다

 

감사합니다


 

 

 

 

 

Comments

11 잡자재 2022.08.18 13:50
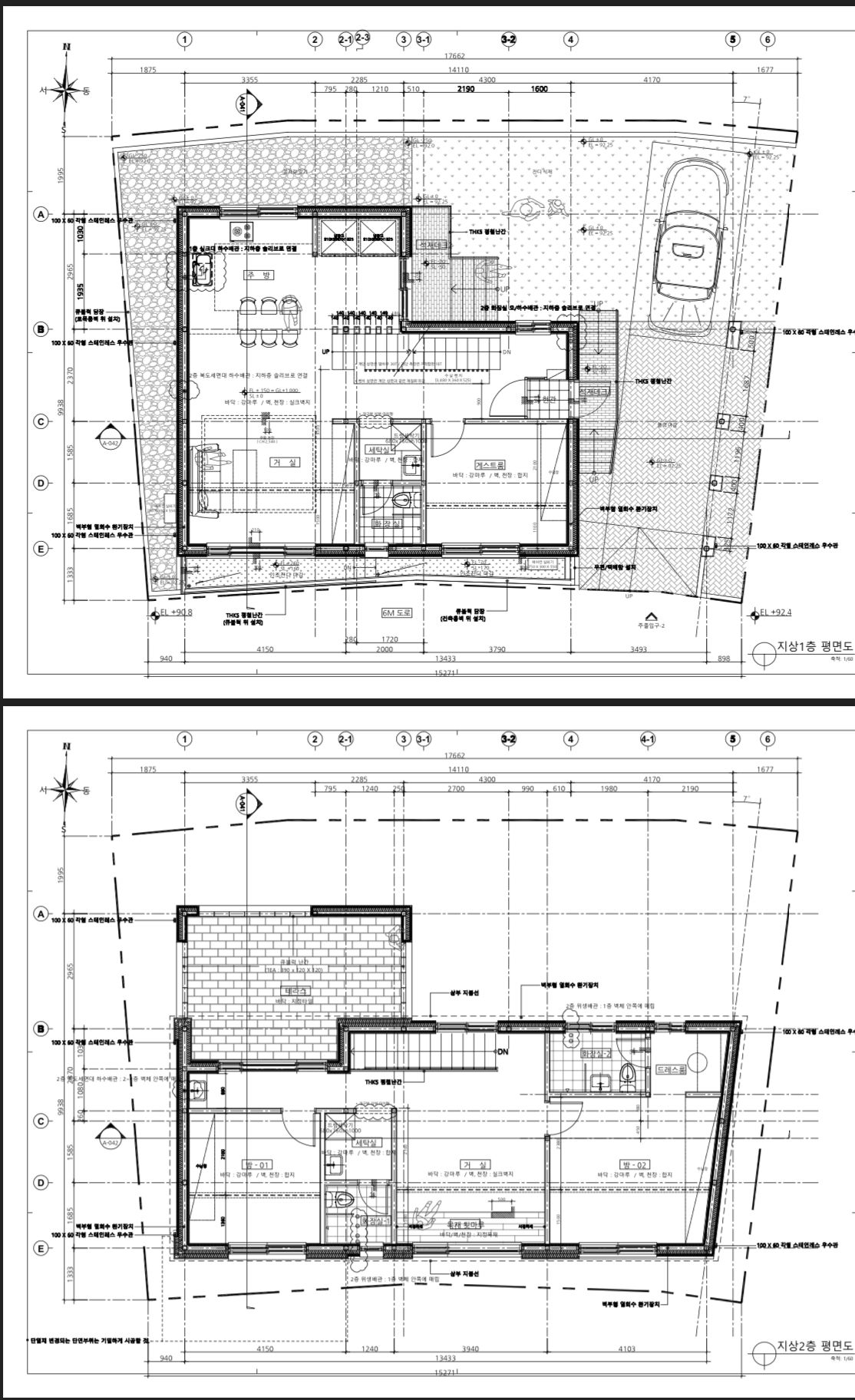
가능하시면 2층 도면 사진을 첨부 부탁드립니다.
M 관리자 2022.08.18 18:02
저도 2층 도면이 있으면 더 좋겠습니다만, 우선 지금의 정보로 추정한 것만 말씀드리겠습니다.

1. 발수 처리는 하나도 도움이 되지 않습니다. 그 것으로 누수가 잡힌 경우는 없습니다. 그저 1년 정도 버틸 뿐이고, 그 1년도 되지 않을 확률이 매우 높습니다.

2. 지금 의심이 되는 부위는 아래와 같은 세군데입니다.
가. 물홈통에 낙엽방지망이 없는 경우, 금방 막히기 때문에 지붕 쪽으로 물이 역류를 한 가능성
나. 블라인드 박스 상부와 외벽 사이에 건전한 방수처리 없이 실리콘으로 코팅만 한 경우 그 쪽으로 물이 역류한 가능성
다. 치장벽돌과 외단열미장마감이 만나는 부위에 방수처리없이 실리콘으로만 마감을 하여 그 쪽으로 물이 역류한 경우

그러므로 이 세군데의 가능성을 열고 자세히 살펴볼 필요가 있습니다.
측면의 주방 쪽에서의 누수도 치장벽돌과 외단열미장마감이 만나고 있는 부위가 있다면... "다"의 연장선일 가능성이 높아 보입니다.
G 장태영 2022.08.18 23:38
2층 관련 도면 첨부합니다
G 장태영 2022.08.18 23:38
2층도면 첨부합니다
G 장태영 2022.08.18 23:39
2층 도면 첨부합니다
M 관리자 2022.08.19 09:47
감사합니다.
도면에는 벽돌이 접착식 벽돌타일인 것 같은데요.. 맞는지요?
G 장태영 2022.08.19 10:15
외단열 보온판(드라이비트) 시공할때 벽돌설치 부위만 돌출시킨뒤 시공했습니다.

추가로 지하층(정면도 왼쪽 지하들어가는 입구에 사람위치)에 있는 통신함 단자 내부의 배관에서도 물이 떨어지네요

검정과 빨간 cd관인데 비어 있습니다. 요비선을 넣어 봤는데도 1~1.5m 정도 들어가고 안들어가지네요.

지금은 임시 드레인을 만들어논 상태입니다.
M 관리자 2022.08.19 10:37
죄송합니다만 벽돌 설치 부위만 돌출시켰다라는 표현을 이해하지 못했습니다.

외단열미장마감을 한 후에, 벽돌타일을 접착해서 붙였기에, 벽돌타일 두께만큼 돌출되었다라는 뜻인지, 단열재를 더 돌출시켜서 그 위에 벽돌타일을 붙였다는 뜻인지 모르겠습니다.

그리고 외단열미장마감을 할 때, 창틀과 판넬 사이, 그리고 판넬과 판넬 사이에 별도의 누수방지 조조치 (방수테잎 등)를 한 것이 있는지요?

-------------
필요한 사진 목록

1. 2층 창문을 열고, 외벽의 외단열미장마감과 벽돌타일이 만나는 곳의 사진을 올려 주실 수 있을까요?

2. 2층 뒤 쪽 테라스라고 표현된 곳의 큐블럭 난간과 그 아래의 지붕이 만나는 곳의 사진

3. 가능하다면.. 판넬 시공 후 외단열미장마감이 붙기 전의 창문 주변부 사진
G 장태영 2022.08.19 16:50
1. 외장벽돌은 단열재를 더 돌출시켜서 그 위에 벽돌타일을 붙였다는 뜻입니다.

사진은 퇴근후 확인해서 올리겠습니다.
G 소상훈 2022.08.19 18:20
저희 주택을 설계한 건축사 작품이어서 설계 중에 장태영님집에 구경간적이 있었습니다
20년~21년 추운 날씨로 기억하는데요
사람이 사는것 같기도 하고 아닌것 같기도 해서 외부에서만 둘러보고 온 기억이 나네요

건축주 입장에서는 조그만 하자에도 맘이 아픈데요
상황을 보니 많이 심한것 같고...법적 분쟁중이시라니
얼마나 맘고생이 심하시겠습니까?

아무쪼록 원만히 잘 마무리 되었으면 하는 바램입니다
M 관리자 2022.08.19 21:42
네.. 사진이 올라오면 추가 답변드리도록 하겠습니다.
G 장태영 2022.08.21 15:14
사진첨부합니다 늦어서 죄송합니다
G 장태영 2022.08.21 15:16
2층 테라스입니다
G 장태영 2022.08.21 15:18
외부타일(2층 테라스) 시공사진
G 장태영 2022.08.21 15:23
소상훈님 반갑습니다
같은 건축사에게 하셨군요 저는 건축가의 파트너시공사라고 해서 믿고 맡겼는데 이 사단이 났어요
건축사는 나몰라라하고요
소상훈님 건축물이 문제없길 바라지만 혹여나 도움필요하시면 연락주세요
jty1414@naver.com
M 관리자 2022.08.21 18:30
감사합니다.

첫 사진의 약간 베이지색 타일 대신에 구조체에 연결된 금속 후레싱이 들어 갔어야 했습니다.
그게 누수의 실질적 원인이 아닐 수도 있지만, 지금 혹은 장기적 관점에서 누수의 요인이 됩니다. 수평면의 몰탈은 방수의 역할을 할 수 없기 때문입니다.

판넬이라 할지라도 다른 구조형식과 마찬가지로 두가지 레벨에서의 누수방지 조치가 필요합니다.

1. 마감재 자체의 누수억제 대책
가. 마감재와 각종 개구부의 접합부에 대한 실링 처리 (그게 설사 실리콘 코킹일 뿐이라도...)
나. 마감재가 단차가 나서 위보다 아래가 더 돌출될 경우는 금속 후레싱 처리

2. 판넬과 판넬 조인트, 그리고 판넬과 창틀 사이의 누수 억제 대책
가. 결국 판넬이 누수에 대한 최종 막의 역할이므로, 판넬의 접합부에 물이 들어가지 않도록 조치 필요
나. 판넬과 창틀 사이에 (그게 비록 실리콘 코킹 만일 지라도) 누수 방지 대책 필요

이 두가지 면에서 누수를 살펴 보어야 합니다.
지금 보이는 사진에서는 베이지색 수평면만 말씀드릴 수 있을 것 같습니다.

지붕의 큐블럭은 잘 모르겠습니다.
이 모르겠다는 의미는.. 큐블럭 자체 보다는 그 하부에 어떤 방수 조치가 되었는지를 보려고 한 것인데요. 불행히도 아무런 방수턱없이 큐블럭과 바닥 마감이 직접 만나고 있는 형태를 도저히 이해하지 못했습니다.
큐블럭은 당연히 물을 먹기도 하고, 큐블럭과 다른 재료와의 줄눈을 타고도 물이 들어갈 수 있는 구조이기에.. 지금 사진은 물을 그 하부로 들어가는 것을 전제로 공사가 된 것으로 보이는데.. 만약 그렇다면, 큐블럭과 베란다 마감 하부에 어떠한 방수 조치가 되었는지를 알아야 무언가 판단이 될 수 있을 것 같습니다.
G 소상훈 2022.08.21 23:00
저도 첫 시작은 장태영님과 같은 맘으로 시작했었는데요. 협회 자문을 받아  중간에 형식을 변경했습니다
건축사와 상의는 해보셨나요?
아무래도 시공을 같이 연계해서 한다면
건축사가 중간에서 조율해 주면 좀 더 수월하것같은데요 ㅠㅠ
아무쪼록 잘 마무리되셨으면 합니다
Category