상가주택 안방 습도 높음 문제

하자관련 질문/사례
질문 전에 먼저 검색을 해주세요.


상가주택 안방 습도 높음 문제

1 양우진 5 2,643 02.21 13:45

안녕하세요 습도 관련해서 질문드립니다. 

저희집은 5층짜리 상가건물중 4~5층 상가주택입니다. 복층구조입니다. 지은지 3년 넘었습니다. 

유독 안방만 습도가 높아 고민입니다. 일년내내 높고 방문을 닫아놓으면 75%까지 올라갑니다. 

여름이건 봄이건 겨울이건 항상 높습니다. 날씨 좋을때는 문을 열고지내면 60대까지 떨어지는데

요즘같은 여름이나 겨울에는 냉난방을 하게되니 문을 닫는데 에어컨을 약하게 틀면 습도가 70%아래로

떨어지지 않습니다. 제습기를 틀수밖에 없는데 이게 또 뜨거운 바람이 나오니..

뭔가 문제가 있는듯 한데 감이 안옵니다. 

 

방의 컨디션은 

-창은 남향(

-두개벽체가 외벽

-위는 옥상(우레탄방수)

-안방화장실 있음(습도 높음, 사용안함)

-침대 하부 집성판으로 30cm 단올려 만듬

 

항상 높으니 누수나 결로의 문제는 아닌듯 하고

의심되는게 안방화장실 아니면 침대하부단인데 뜯어볼수도 없고 답답하네요

 

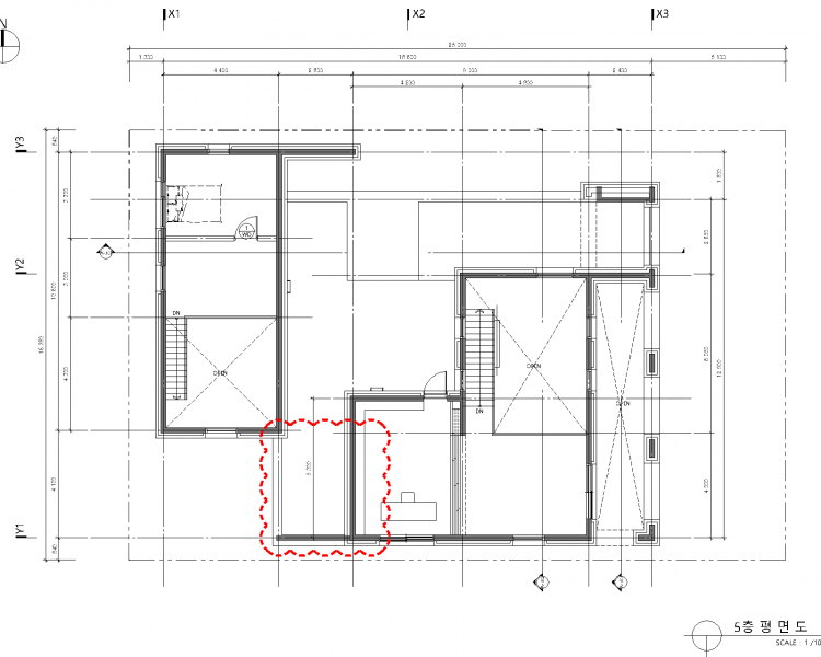
평면도 첨부하였습니다 표시된부분이 안방입니다. 

안방 화장실은 사용을 안하는데 곰팡이가 지속적으로 생겨서 청소합니다. 

Comments

M 관리자 2022.07.08 00:47
안녕하세요.
번거롭게 해드려 죄송합니다만, 3층 평면도를 올려 주실 수 있으실까요?
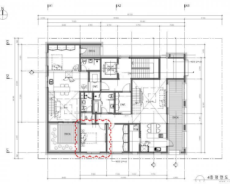
1 양우진 2022.07.11 18:06
3층 도면입니다.. 1~3층은 상가이고 현재 사무실로 사용중입니다
M 관리자 2022.07.12 13:53
감사합니다.
아래층은 아무 것도 없네요..
그럼 혹시 옆집의 거실에서 습도가 높은지 물어 보신 적이 있으신지 궁금합니다.
누수가 없다면.. 해당 위치에서의 높은 수증기압 때문에.. 벽체의 누기부위를 타고 수증기가 유입되는 것 밖에는 없어 보이거든요.
그게 아니면 화장실의 PS를 타고 습기가 유입되는 것인데.. 화장실의 PS가 아래층에도 안보이고, 3층에도 보이지 않아서.. 무어라 딱히 말씀을 드릴 것이 없었습니다.
1 양우진 2022.07.18 13:47
답변 감사합니다.. 저 화장실의 ps는 실제로는 없습니다.. 설계당시 해놓은건데 공사하면서 필요없다하여 없어진듯 합니다.  옆집에서 습도는 측정해본적은 없지만 딱히 높지는 않았습니다. ㅠㅠ
M 관리자 2022.07.18 14:04
그럼 딱히 예측되는 것은 없습니다.
걸레받이 쪽에 곰팡이 생성 등의 흔적이 있다면 바닥으로 부터의 유입이라고 추정할 수는 있겠지만, 그것도 흔적이 없다면 달리 원인은 모르겠습니다.
Category