필로티형 아파트 층간 소음 문제

하자관련 질문/사례
질문 전에 먼저 검색을 해주세요.


필로티형 아파트 층간 소음 문제

G 초코하임 14 3,061 02.21 13:09

안녕하세요 

아파트 하자가 맞는지 알려주세요


신축 아파트 1  정도 됐습니다. 저희집은 제일 끝집이고 필로티 세대입니다. 

안방 화장실과 거실 화장실 소리가 침실2에서 너무 선명 하게 들려서요.  기침소리,칫솔 터는 소리, 화장실 청소하면서 나는 쓱싹쓱싹 탁탁 소리변기커버 내리는 소리샤워기 내려놓는 소리욕조도 플라스틱인지 텅텅 부딪히는 소리 ,  우는 소리 ,목소리가 침실 2에서 너무 선명 하게 들리고 녹음해서 들리는 정도 입니다

저희집은 층간소음도(애 뛰는 소리) 심합니다ㅠ 이걸로 윗집에 여러번 얘기도 했는데 ... 화장실 소음은 생활 소음이라 윗집에 얘기하는  아닌  같아 하자 센터 전화받는 직원한테 얘기하니 하자 아니란 식으로 얘기를 하셔서요 ㅠㅠ일단 와서 봐주시기는 한다고 하시는데 ...


소음관련 올려두신 글을 읽어보고 화장실 천장을 보니 올려주신 글과 관련있어 보이는데 배관 틈을 매꾸면 소음이 줄어들까요일단 하자 신청을 해두긴 했는데 하자로 인정을 해주시고 보수를해주실지 ㅠㅠ 안해주면 국토부에 하자신청을  생각 입니다

Comments

M 관리자 2022.02.11 10:02
안녕하세요.
안방과 침실3에서는 확연히 소리가 없는 상태인가요?
G 초코하임 2022.02.11 10:34
안방에서도 안방 화장실 소리가 들리지만 화장실에서 들리는 것 보단 크게 들리진 않는 것 같고 거실에서 윗집 안방 화장실 칫솔터는지 탁탁탁 소리가 선명하게 들려요. 침실3은 제가 피아노를 해서 방음을 해놓은 상태라 위에 적은 화장실에서 나는 소리들은 안나요. 아마 방음을 안했으면 더 잘 들렸겠죠? 쿵쿵쿵 뛰는 소리는 좀 들려요. 제가 침실2에 거의 있는 상태라 안방 화장실 소음과 거실 화장실 소음 두곳 화장실 소음이 너무 잘들리네요 ㅠㅠ 윗집 신발소리 현관문 닫고 여는 소리도 선명해요
M 관리자 2022.02.11 13:38
그럼.. 어려우시더라도 관리사무실에 이야기하셔서,
1. 건축도면 중 "단위세대평면도"
2. 기계설비도면 중 "단위세대 우오수배관계획도" 와 "환기배관도"
를 보여 달라고 하셔서, 해당 도면을 사진 찍어서 올려 주실 수 있으실까요?
G 초코하임 2022.02.11 13:54
예 제가 다음주 중으로 관리사무실 가서 찍어서 올리겠습니다. ^^
그런데 도면 보기전에도 저정도면 하자 아닌가요? ㅠㅠ
M 관리자 2022.02.11 13:56
화장실의 소음은 화장실에 국한되는 경우가 대부분이거든요.
화장실 소음이 밖으로 퍼지는 이유를 알아야 할 것 같아서 말씀드렸었습니다.
G 초코하임 2022.02.14 11:58
환기배관도 입니다
G 초코하임 2022.02.14 11:59
우오수배관계획도가 이게 맞나요?
M 관리자 2022.02.14 22:11
네. ^^
두번째 도면은 원하는 것이 아니었습니다만, 큰 상관은 없을 것 같습니다.

우선 해주실 것이.. 본문에 사진을 찍으신 것 처럼.. 화장실 천장 뚜껑을 열고 머리를 들어 밀어서.. 안방 화장실과 거실 화장실 중에서 어느 곳의 소음이 큰지.. 혹은 들리는지를 확인해 주세요.
둘 다 들리면 둘 다 공사를 해야 하거든요.

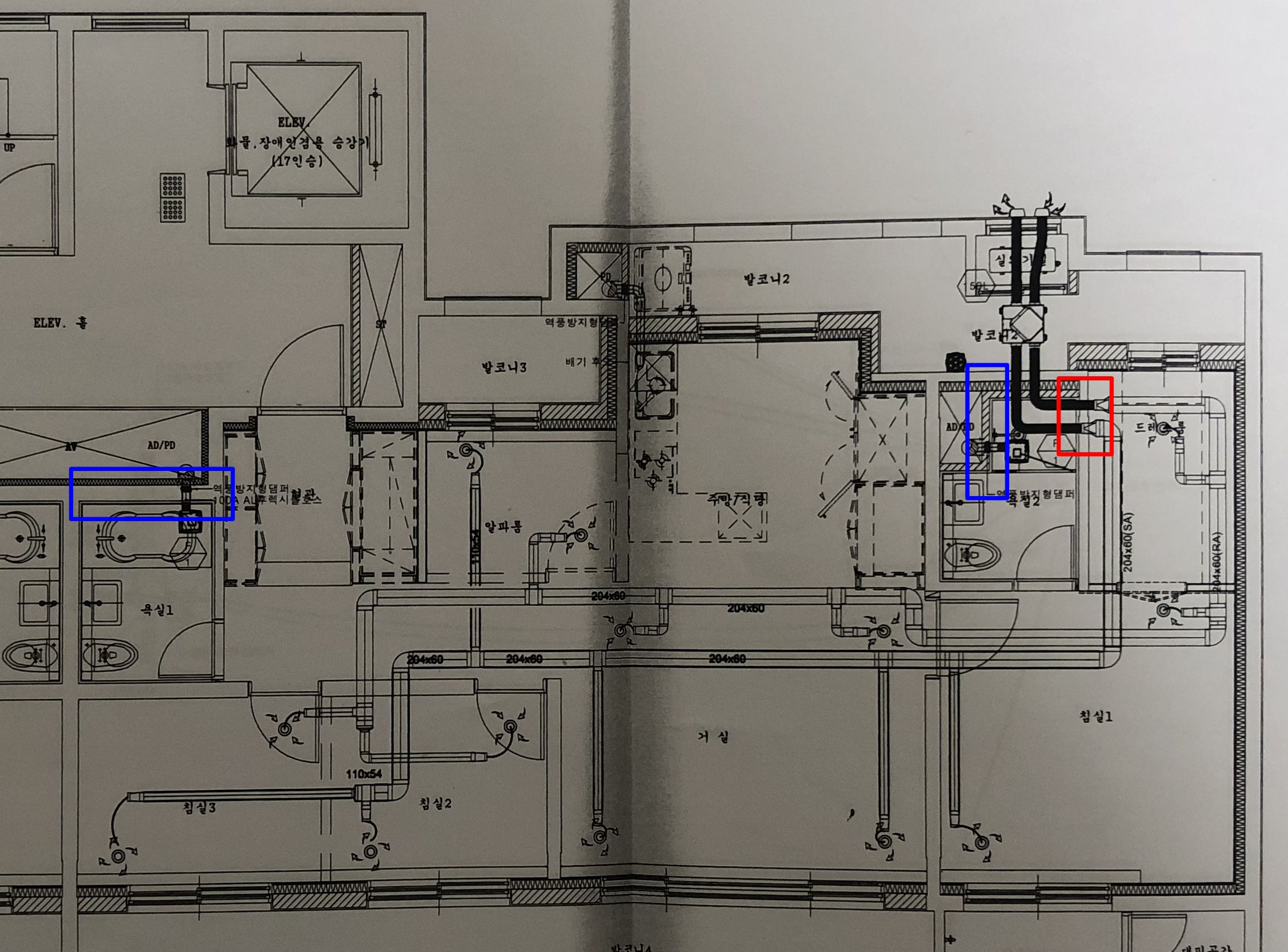
아래 그림에서...

붉은 색 박스 : 환기장치 배관이 화장실을 관통해서 각 방으로 지나고 있는 시작점입니다.
만약 화장실 소음이 거실까지 나온다면, 소리가 나올 구멍은 여기 밖에 없습니다.

파란색 박스 : 화장실 천장 속에서 소리가 들리면, 이 박스친 벽을 통해서 소리가 전달된다는 의미입니다.
다만 왼쪽 박스는 콘크리트 벽체이기에.. 배관이 관통 되는 부위의 틈새만 막으면 되지만, 오른쪽 벽체는 벽돌로 만든 거라서.. (혹은 건식벽체) 그 벽과 옆의 벽, 그리고 천장이 만나는 모든 부위를 다 살펴 보고 막아야 합니다.

다만, 이 화장실의 틈새 등은.. 천장이 있는 상태에서 작업이 불가능합니다.
그러므로 비용이 들더라도 화장실 천장을 철거하고, 틈새를 제대로 메운 후, 소리가 들리는지 시험을 해본 후, 이상이 없다면 다시 마감을 하는 순서로 해야 합니다.
G 처코하임 2022.02.14 22:59
친절한 답변 너무 감사합니다 ㅠㅠ
두 화장실 다 잘 들리는데 일단 붉은색 박스에서 소리가 날 경우는 아파트 하자팀이 왔을때 어떻게 보수 해달라고 하면 될까요? 배관 틈만 매꿔달라고 하면 되나요? 매꿀때는 뭘로 매꿔야하는지 좀 알려주세요 ㅠ
오른쪽 파란색 박스에서 소리가 들릴 경우도 하자 보수 할 경우는 벽과벽 천장 틈은 뭘로 매꿔야하는지도 좀 알려주실 수 있으신가요? 하자팀에서 안해줄꺼 같아 제가 이렇게 저렇게 해달라고 자세히 말하면 해줄것 같아서요 질문을 많이 해서 죄송합니다
M 관리자 2022.02.15 01:56
파란색 박스든, 붉은 색 박스든.. 제대로 보수가 되려면, 화장실의 천장이 철거 되어야 합니다.
그 것을 전제로 하지 않으면 하자보수를 백 번을 해도 해결되지 않습니다.
그러므로 하자팀에게 천장을 철거해서 보수를 해달라고 하시는 것이 우선이며, 어떻게 할 것인가는 그 것이 합의가 된 다음에 논의해도 늦지 않을 뿐더러... 지금의 경험상.. 천장까지 철거가 되면, 알아서 보수를 하게 되었습니다. 그 분들도 전문가인지라, 어디가 문제인지는 알고 있거든요.. 다만 회사의 입장을 고려해서 일정 수준 이상의 비용이 드는 방법을 억지로 피할 뿐....
G 초코하임 2022.02.18 17:27
안녕하세요 오늘 배관쪽 하자해주시는 분이 오셨는데 소음은 건축문제라 본인은 잘 모르겠다고 하시는데 이문제는 어느 담당에 문의를 드려야 하나는지 혹시 아시나요? cs전화받는 직원도 잘 모르는것 같아서요 답답하네요 ㅠㅠ
M 관리자 2022.02.18 18:20
그렇게 접근하지 마시고요.
사용자는 그게 배관의 잘못인지, 건축의 잘못인지 알 이유가 없습니다. 그저 소음이 난다는 것이 중요하므로... 원인이 무엇이든 하자보수만 되면 되거든요.
그러므로 CS에 원인에 대한 언급을 하지 마시고, 하자의 양상만 이야기하세요. 그리고 그저 보수가 되어야 한다고 말하시면 됩니다. 그러면 원인의 규명과 해결은 그 분들의 몫이고요.

다만, 위에 언급드린 것은.. 하자보수를 할 때, 화장실천장을 철거하지 않는 상태에서는 벽에 손이 닿지 않기 때문에.. 그저 미봉책에 불과한 보수가 될 수 있다는 의미였습니다.

그러므로 천장을 철거하고 다시 시공하는 한이 있더라도 이 하자를 해결해 달라고 이야기하시면 되세요.
맘 굳게 먹으시고요.
G 초코하임 2022.02.18 18:28
cs직원이 소음은 하자가 아니라는 식으로만 얘기를 하니  자기들도 뭘 해줄수 있는게 없다는 식으로 하니 저는 어찌해야하니요? 그냥 국토부에 하자신청을 하면 될까요? ㅠㅠ 계속 질문드려 죄송하고 친절히 답변 해주셔서 너무 감사합니다
M 관리자 2022.02.19 20:10
네 그런 식이면 국토부 하자분쟁 조정을 신청하시는 것이 좋겠습니다.
Category