EV 소음 문의합니다

하자관련 질문/사례
질문 전에 먼저 검색을 해주세요.


EV 소음 문의합니다

G 부탁합니다 70 5,940 2020.10.20 19:54

안녕하세요

 

방법은 모르겠고 괴로워서 답답해 하다가

글을 올려봅니다.

신축아파트에 입주했는데 엘리베이터

작동시 각 방에 설치한 환풍기 구멍으로

바람 소리가 울립니다

 

그러니까 엘리베이터를 저희집에서 작동시키지

 않아도 오르락 내리락 하면서

오르락 내리락 하는 동안 공기소리가 

 울리는 바람소리처럼 들립니다

 

 

소리가 녹음하려니 녹음도 잘 안되고

집안전체에 바람소리가 울려퍼지는데

(화장실 환풍기에서까지)

 

이걸 어찌하면 좋을까요

환풍기업체도 엘베업체도 다녀갔지만

딱히 해법이 없었습니다..

입주때 보다 몇달지나고서 더 심해진것 

같습니다 .. 

 

엘베업체에사 속도는 법적으로 정해져 있어서

120? 밑으로 못 내린다고 합니다.

엘베는 오티스 업체이고 

저희 아파트 동이 다른 아파트에 비해

엘베가 약간 작다고 알고 있습니다.

 

답변 부탁드립니다.. 

도와주십시오..

Comments

M 관리자 2020.10.20 21:00
아파트 관리사무실에 말씀하셔서...
엘리베이터 기계실 층 평면도 (기계실이 위치한 층의 평면도)를 사진 찍어서 올려 주시겠습니까?
그리고, 몇 층 건물의 몇 층인지도 알려 주세요.
G 부탁합니다 2020.10.20 21:06
절망적이었는데 진심으로 감사합니다.
내일 낮에 문의해 보겠습니다.
26층 건물의 7층입니다.
M 관리자 2020.10.20 21:23
내일 도면 올려 주시면 답변드리겠습니다~
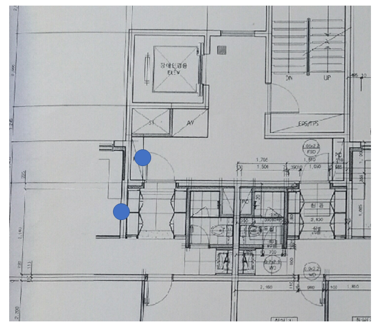
G 부탁합니다 2020.10.21 15:27
도면입니다.
M 관리자 2020.10.21 15:30
아.. 죄송합니다만, 이 평면도가 아니라.. 맨 꼭대기.. 엘리베이터 기계실 평면도를 원했던 것인데요..
암튼...
제가 외근이라 저녁에 글을 올리겠습니다만...
질문이 있는데요. 해당 그림에서 이 쪽 세대신거여요? 아니면 도면의 왼쪽 (잘린 도면 쪽)의 세대세요?
M 관리자 2020.10.21 15:30
아.. 이미 적어 주셨네요. ㅎ
알겠습니다. 저녁에 글 올리겠습니다.
G 부탁합니다 2020.10.21 15:31
이 도면의 왼쪽 세대입니다. 대칭적으로 반대이고 계단은 저희집 쪽에 있습니다.
G 부탁합니다 2020.10.21 15:32
지금 관리실에 다시 전화해 보겠습니다. 자기가 줄 수 있는 거 이거라고 하더라구요..
M 관리자 2020.10.21 15:39
네.. 없으면 너무 애쓰지 마시어요..
저녁까지...한가지 부탁을 드릴께요..
도면의 파란색 부분에 귀를 대고, 엘리베이터가 움직일 때 어떤 소리가 들리는지.. 소리는 큰지... 를 봐주시겠습니까?
G 부탁합니다 2020.10.21 16:06
각 방에 창문 쪽에 설치된 환풍기에서 소리가 울리긴 하는데요.
표시해 주신 부분이 어디인지 잘 모르겠습니다. 감사합니다..
G 부탁합니다 2020.10.21 16:35
소리가 큰 것 같지는 않구요.
저희집 현관 옆 방과 현관문 옆 벽면에 있는 양수기함을 열고 들어봤습니다.
엘리베이터 도르래가 부드럽게 움직이는 소리같았고
가끔씩 자주
철사 같은? 뭔가 흔들리는 소리가 났습니다. 엘리베이터 몸체인지
(엘리베이터 움직이는 소리가
목욕탕에 가면 거대한 수도 배관에 물이 가득 흐르는 소리같기도 했습니다.)

현관 옆 방에서 더 잘들렸습니다.
 패턴은 환풍기에서 나는 소리와 똑같았습니다.

벽면에서 떨어져도 소리가 들렸습니다.
G 부탁합니다 2020.10.21 16:48
현관문 옆 바깥쪽 벽면은 제가 위치를 착각한 것 같아서
엘베 옆에 위치한 옆집의 양수기함 벽면을 들어봤습니다.
조금 더 날카로운 기계소리가 엘리베이터 움직이는 동안 났는데 소리가 좀 컸습니다.
G 부탁합니다 2020.10.21 19:34
제가 위치를 여러모로 착각한 것 같습니다.
옆집에 연락해 보고 다시 말씀드리겠습니다.
바쁘고 피곤하실텐데 죄송합니다.
G 부탁합니다 2020.10.21 20:08
방금 확인하고 오는 길입니다.
별다른 소리가 없었고 엘리베이터가 움직이는 도르래 소리 정도였지만 조용했습니다.

오히려 엘베 쪽과 먼 저희집에서 소리가 더 크게 울렸습니다..
G 부탁합니다 2020.10.21 20:33
가끔 엘리베이터 몸체가 흔들리는? 철사 소리 ? 같은 게 났습니다.
M 관리자 2020.10.21 22:09
설명 감사합니다.
이게 엘리베이터와 상관없을 수도 있겠다는 생각이 듭니다.
아마도 해보셨겠지만...
환기장치를 꺼보고도 들어 보셨는지요?
G 부탁합니다 2020.10.23 03:06
기계실 창문이 열려있고 없고의 차이가 있을수 있을까요?
G 부탁합니다 2020.10.23 10:14
환기장치가 꺼져있는데도 울립니다.  방법이 없을까요? ... 도와주세요...
M 관리자 2020.10.23 10:14
네. 기계실 창문과는 무관해 보입니다.

그 소리가 들린다는... 천장 환풍기의 사진과 함께, 다용도실 천장에 환기장치가 매달려 있을꺼여요. 그 사진도 부탁드릴께요.
번거롭게 해드려 죄송합니다.
G 부탁합니다 2020.10.23 10:18
아닙니다. 해결할 수만 있다면 어떻게든 노력해 보겠습니다. ㅠ ㅠ
G 부탁합니다 2020.10.23 10:28
환풍기 사진입니다.
G 부탁합니다 2020.10.23 10:40
.
M 관리자 2020.10.23 11:02
바닥열 환기장치인데요..
이 자체의 소음이 있는 편입니다.
환기장치를 꺼보고도 동일한 소음이 들리는지는 확인이 되신거요?
G 부탁합니다 2020.10.23 11:05
네. 위에도 말씀드렸지만 환기장치 꺼보고도 들리는 소음입니다..
M 관리자 2020.10.23 11:07
그럼.. 사진의 환기구가 시계반대 방향으로 돌리면 잠기는 제품이거든요..
이 것을 잠그고도 같은 소리가 들리는지를 봐주시겠습니까?
G 부탁합니다 2020.10.23 11:14
모든 환기구를 반대 방향으로 꽉 닫아서 잠가보라는 말씀이신거죠? 해보겠습니다
M 관리자 2020.10.23 11:17
G 부탁합니다 2020.10.23 11:25
네. 잠그고도 같은 소리가 들립니다.
M 관리자 2020.10.23 12:25
그럼 그 위치 쯤에서 전달되는 소리일 뿐, 그 환기구 자체에서 나는 소음을 아닐 가능성이 매우 높습니다.
마지막으로 다시 환기구를 열고, (좀 높은 사다리나, 책상 위에서) 환기구에 귀를 대서, 그 구멍을 통해 소리가 나는지를, 혹은 휴대폰의 녹음기로 소리를 녹음해서 올려 주실 수 있으실까요?
G 부탁합니다 2020.10.23 13:26
소리가 나지만 작게 울리는 소리라서 녹음이 되지가 않습니다. 죄송합니다.
지난 며칠 간 수십번 녹음시도를 해봤지만 제가 듣는 만큼 폰으로 녹음이 안됩니다.
울리는 소리라서 그런가 싶기도 하고...
우연의 일치인지 전 층의 방화문을 다 닫고는 소리가 조금 줄어든 것 같기도 합니다.
연관이 있을까요?
M 관리자 2020.10.23 14:49
아.. 그래요?
흠...
그럼 네가지만 확인해 주세요..

1. 최근 날씨가 쌀쌀해 지면서 소리가 더 잘 나는지...?

향을 한세트 사서.. 연기가 나게 불을 붙이던가, 손으로 천천히 해도 괜찮습니다.

2. 현관문의 사방으로 돌려서 바람이 들어 오는 것이 보이는지...
3. 신발장의 배전반 뚜껑을 열어서.. 공배관 속으로 바람이 들어 오는 것이 보이는지...
4. 창문의 상부 (창과 창이 만나는 중간)에 바람이 나가는 것이 보이는지..(느껴지는지)
G 부탁합니다 2020.10.23 18:08
1. 네. 그런것 같습니다. 이 곳 아파트가 원래 바람이 많이 부는 곳이기도 합니다.

2. 바람이 들어 오는 것이 보입니다.
3. 신발장의 배전반 뚜껑이라고 하심은 '세대 통신 단자함'입니까? '세대 분전함' 입니까?
M 관리자 2020.10.23 18:57
세대 분전반을 말씀 드린 것인데, 통신 단자함도 봐주시면 감사하겠습니다.
G 부탁합니다 2020.10.23 21:09
창문의 상부라 함은
이중샷시인데 어떻게 해야할지 잘 모르겠습니다
샷시 중간부분 아래 ? 중간? 위?
그리고 한 개 닫습니까? 두 개 다 닫습니까?


(알려 주시면 내일 낮에 보고하겠습니다)
죄송하고 감사합니다.
M 관리자 2020.10.23 21:15
샷시 중간의 위입니다. 둘 다 닫고 하시면 됩니다.
G 부탁합니다 2020.10.24 10:54
3. 신발장 배전반은 향이 아주 미세하게 일렁이기는 하는데, 바람이 들어 온다고 보기 어려운 것 같습니다.
4. 창문의 상부에서 바람이 나가는 것이 보이는 것 같습니다.

잘 모르겠어서 몇 번이고 시도해 봤는데, 혹시 결과가 미흡하시다면 다시 조사하겠습니다.
M 관리자 2020.10.24 12:13
하실 것은 다 하신 것 같습니다. 노고에 감사드립니다.

해결책으로 확신할 수는 없겠으나, 지금까지의 논의로 볼 때 두 방향에서 접근을 해야 할 것 같습니다.

1. 처음 문제를 제기하셨던 엘리베인터 소음
만약 엘리베이터 소음이라면, 구조체에 귀를 대고 들어 볼 때, 동일한 소리가 들려야 합니다. 거의 대부분의 엘리베이터 소음은 직접음이 아니라, 간접음(구조체를 타고 오는 소음)이기 때문입니다.
간혹 탑층에서는 직접음을 듣기도 하나, 이 경우는 아닌 것 같습니다.
그러므로 콘크리트 벽체에 귀를 대고 들어 보시면 되실 것 같습니다.

2. 풍압에 의한 떨림 소리
이 것은 제가 추정한 원인입니다. 그래서 향을 피워 보시라고 하신 건데요.
하지만 이 역시 그저 추정일 뿐입니다.
1층의 현관문이 부실한 아파트의 경우, 그리고 비상계단의 비상문이 상시 열려 있는 경우는 겨울철 이 계단실을 타고 올라오는 바람의 압력이 상당히 높아지게 됩니다.
여기에 현관문에 틈새가 있을 경우, 이 바람의 압력으로 인해 현관문 주변으로 바람이 들어오고, 이 것이 역시 틈새가 많은 창문으로 빠져 나가면서, 천장의 마감재를 떨리게 하여, 그 진동 소리가 나는 경우가 있습니다.
확율은 높지 않지만... 싼 방화문과, 싼 창문, 그리고 고정이 잘 되지 않은 천장 마감... 이 세가지 조건이 일치하면 나는 소리입니다.
이 소리는 날씨가 추워질 수록 높아지고, 엘리베이터가 작동될 때 커집니다. 엘리베이터가 추가적인 압력을 만들어 내기 때문입니다.

이 것을 확신하려면.. 문풍지를 구입하셔서 현관문 주변에 바람이 들어 오지 않도록 막고, 창문의 중간 (열리는 창과 창이 만나는 중간 지점) 맨 위와 맨 아래에 보이는 틈새를 휴지 등으로 막고, 그 양상을 지켜 보시면 될 것 같습니다.
소음이 현저히 감소한다면, 이 틈새를 더 적극적으로 봉쇄를 하시면 될 것 같습니다.
G 부탁합니다 2020.10.24 12:14
미안합니다. 향을 구하느라 늦었습니다.
M 관리자 2020.10.24 12:21
별말씀을요...
위에 적힌 두가지 방향에서 검토를 해보시와요.
G 부탁합니다 2020.10.27 10:48
관리자님
콘크리트 벽체에 귀를 댔을 때
동일한 소리가 들립니다.
M 관리자 2020.10.27 11:01
그럼 다시 처음으로 돌아가서...
엘리베이터 소리라고 보고....
엘리베이터 업체를 다시 부르셔야 합니다. 왜냐면, 대부분의 엘리베이터 업체에서는 "수정이 쉽지 않은 소음"의 경우 100% "방법이 없다"라고 답변을 하기 때문입니다.

그러므로 고쳐질 수 없는 문제라도 좋으니, 소음의 원인을 알려 달라고 하실 필요가 있습니다. 그래야 이사를 가든 말든 판단을 할 수 있으니까요..
엘리베이터 소음의 유형도 꽤 많습니다. 단순히 기계실에 방음 조치가 미흡한 경우 비교적 수정이 쉽지만... 진동억제 장치의 부실이라든가, 브레이크 소음이라든가는 사실상 수정이 불가능하다고 보셔야 합니다. 한 개인의 비용으로 수리가 될 수 없는 부분이거든요.

그래서 다시 제자리로 간 듯 하여 죄송합니다만... 관리사무실에 이야기 하셔서, 엘리베이터를 한번 더 봐달라고 요청을 드리는 수 밖에는 없을 것 같습니다.
M 관리자 2020.10.27 11:01
그리고, 풍압에 의한 소음일 가능성도 배제를 할 수 없으니.. 현관의 틈새를 휴지로라도 막고, 해당 소음이 감소하는지도 확인해 보실 필요가 있습니다.
G 부탁합니다 2020.10.27 12:18
네 알겠습니다.
G 부탁합니다 2020.10.27 22:29
긴 답변 너무 감사합니다...
 질문 생기면 또 하겠습니다.
M 관리자 2020.10.27 22:42
네.. 아무쪼록 잘 되었으면 좋겠습니다.
G 부탁합니다 2020.11.10 13:14
혹시 EV 속도를 조절하면 수정이 가능할까요?

속도를 조절하려면 어디에 건의하면 가능할까요?

 

(입주 때보다  체감상 속도가 빨라진 것 같습니다.

관리실 측에서는 속도가 변한게 없다고 합니다...)
M 관리자 2020.11.10 13:15
혹시 위에 제가 말씀드린 두 가지 사항 (관리실에 언급, 현관틈새 확인)은 해보셨는지요?
G 부탁합니다 2020.11.10 13:37
2. 현관문의 사방으로 돌려서 바람이 들어 오는 것이 보이는지...

 위의 질문에서
관리자님이 말씀하신 것이 '현관문을 닫고'의 상태이셨는지요?
저는 그 때 현관문을 열고 확인했습니다.
그리고 현관문 위아래로 검은 고무? 같은 것이 부착되어 있어서
그것이 문풍지 대용인줄 알았습니다..
M 관리자 2020.11.10 13:50
네. 닫고 해보시라는 의도였습니다.
제가 길게 글을 적지는 못했는데, 바람은 현관앞의 공간과 외부가 함께 연결되어 발생을 합니다.
창과 현관이 완벽히 기밀하면, 드나 드는 바람이 전혀 없겠지만, 그럴 수는 없기에...
그래서 이게 바람이냐, 아니면 엘리베이터 혹은 다른 원인인지를 좀 더 명확히 하기 위해, 일단 현관만이라도 막아 보시길 권해 드렸던 것입니다.

현관으로 들어오는 바람이 없다면, 창문으로 나가는 바람도 거의 없어질 것이고, 그래도 바람소리가 난다면, 최소한 현관문의 틈새 탓은 아니라는 결론을 내릴 수 있기 때문입니다.
G 부탁합니다 2020.11.10 14:00
죄송합니다.

저는 그 때 방화문 점검 하시는 줄 알고
현관문을 열고 했었습니다.
그럼 현관문 닫고 다시 해보겠습니다..
M 관리자 2020.11.10 14:13
균열의 폭은 얼마 정도 인가요?
G 부탁합니다 2020.11.10 14:15
현관문을 닫아도 바람이 들어 오는 것이 보입니다.
특히 EV가 움직일 때 바람이 더 많이 부는 것 같았습니다.

(엘리베이터가 움직일 때마다 옅고 미세한 바람소리가
각 방 환풍기에서 웅~하고 울리는 듯이 울립니다. )
M 관리자 2020.11.10 17:39
그 균열은 큰 의미가 없을 것 같습니다.

그럼 죄송합니다만, 다시 처음으로 돌아가서...
현상을 점검해 보겠습니다.

1. 추정컨데.. 엘리베이터가 움직일 때, 각 방 환기장치 디퓨에서 바람소리가 들린다.
2. 그런데 그 디퓨저를 돌려서, 완전히 닫아도 그 소리는 전혀 줄지 않는다.
3. 현관문을 잘 막아도, 그 소리는 변함이 없다.

인데요.

저희 추론과정은 다음과 같습니다.

1. 환기배관 내부에서의 소리는 디퓨저를 닫으면 들리지 않는다.

2. 그러므로 배관 내부의 소리는 아니라는 의미이다.

3. 그런데, 이 환기구에서 소리가 난다고 하시니, 환기구 그 자체라기 보다는 어떤 움직임에 의해 천장에서 나는 소리 일 수도 있을 것 같다.

4. 고층의 경우 현관문이 부실하면, 다량의 바람이 유입될 수 있고, 그 것이 창문을 통해 빠져 나가므로, 이 바람에 의한 떨림일 수도 있겠다.

5. 그러나, 현관문을 밀실하게 해도 이 소리의 변화가 없다면, 외부로 부터의 바람 유입은 아니다.

6. 환기장치를 꺼 놓아도, 그 소리는 변함이 없다.

7. 그렇다면, 더더욱 환기장치의 소음도 아니고, 배관을 타고 흐르는 소리도 아니다.

8. 혹시 외부에 바람이 심하게 부는 위치 (높은 건물의 중간에 있는..)이면서, 환기장치가 워낙 허접하게 만들어진 것이라... 외부에서 부는 바람소리가, 환기장치의 외부배관을 타고 들어와서, 실내로 들리는 것은 아닐까.. 했지만.. 이 경우도 환기구를 닫으면 들리지 않아야 한다.

9. 문제는 환기구를 닫고도 그 어떤 것이 소리를 만들어 낼 것인가? 이다.

10. 질문을 주신 분은 엘리베이터 소리라고 했지만.. 그 소리는 구조체를 타고 들어와서, 엘리베이터와 가까운 방의 소리가 가장 크고, 멀어질 수록 작아져야 하는데... 과연 그런 것인가?

11. 만약 엘리베이터 소리라면 해당 집만이 아니라, 다른 집에서도 들려야 하는데, 과연 그런 것인가?

11. 만약 엘리베이터가 아니라면 과연 무엇인가?

여기까지가 저의 상상이었습니다.
글을 보시고, 한번 되짚어 보셨으면 좋겠습니다.
G 부탁합니다 2020.11.10 17:47
엘리베이터가 움직일 때 나는 소리는 맞습니다.

다른 집에서도 바람 소리 몇 번 이야기 나온 적은 있지만
다들 집값 떨어진다고 글을 삭제하라고 했었습니다.

 잠도 못자고 점점 기억력도 심각하게 없어졌습니다

'바깥쪽에서 집안으로 들어오는 배관중에 마감이 덜된 부분으로 바람이 새어들어와 천장 위쪽 층간에서 울리는 소리일 거다. 어느쪽 마감이 덜된건지 찾아야 한다.'

''인버터 내부의 팬 교체'라도 했더니 소음이 없어졌다.'

이렇게 두가지 정도 인터넷에서 글을 찾았습니다...
G 부탁합니다 2020.11.10 17:56
다른 분들도 아파트에서 유독 자신의 집만 소리가 울린다는 분이 계시긴 했습니다.
G 부탁합니다 2020.11.10 17:57
입주 때
집 안 곳곳에 방마다 천정형 시스템 에어컨을 설치했는데 그것도 연관이 있는지 모르겠습니다.
M 관리자 2020.11.10 18:00
그럼, 일단 관리실에 이야기를 하시고.. 주민 회의에서 공론화를 하시는 것이 좋겠습니다.
내부적인 이야기라 집값 떨어질 일도 없으니까요...
공론화 하지 않으면, 관리실도 잘 움직이려 하지 않을 테니....

더 이상의 뾰족한 방법은 없어 보입니다.
그래도 엘리베이터에서 고칠 수 있는 것인가, 아니면 못고치는 문제인가.. 아니면 고칠 수는 있는데, 너무 큰 돈이 들어가는 것인가 등등... 무언가 결론을 내는 것이 좋겠습니다.
그래야 그냥 안고 살지, 이사를 갈 지를 정할 수 있으니까요...
G 부탁합니다 2020.11.10 18:15
죄송하고 감사합니다.
네.
M 관리자 2020.11.10 19:35
더 큰 도움을 드리지 못해 죄송할 뿐입니다.
G 부탁합니다 2020.11.10 22:51
아닙니다...
G 부탁합니다 2020.11.17 18:02
관리자님, 주민회의에서 엘리베이터 흡음재,진동방지패드 시공의 경우 건설사나 엘리베이터 회사에서 비용을 부담하지 않는다고 합니다. 원래 그런 것입니까?

관리자님 예전 댓글에서 기본적으로 되어 있어야 한다고 하셔서 혹시 안되어 있다면 하자인 줄 알았습니다.

읽어주셔서 감사합니다.
M 관리자 2020.11.17 23:06
네... 그렇습니다.
동작불량 등은 하자라서 무상 보증기간을 지켜야 하는데, 소음에 대한 것은 명확한 기준이 없기에... 유상처리될 수 밖에 없습니다.
안타깝지만... 어쩔 수 없는 부분입니다.
G 부탁합니다 2020.11.17 23:15
네. 알려주셔서 감사합니다.
G 부탁합니다 2020.12.20 21:51
전 층의 방화문을 다 닫아도 소리가 심할 때가 있습니다. 비상구 계단에 나가보면 EV 움직일 때 집에서 들리던 소리가 더 크게 울립니다.
G 부탁합니다 2020.12.20 23:59
엘베가 움직일 때마다 그렇긴 하지만 매번 소리가 크게 울리는 것도 아니고 어쩔 때는 조용하고 미미하고 가늠할 수가 없어 아직 특징을 못 잡았습니다.
M 관리자 2020.12.21 02:02
아마도 쉽지는 않겠지만,.... 같은 동의 다른 세대도 유사한 증상이 있을 것 같은데요...
입주민 회의 같은 곳에서 공동의 의견을 모아 보시는 것이 최선일 것 같습니다.
엘리베이터 회사나 관리사무소나.. 한 세대의 의견으로는 움직이기는 역부족일 수 있으니까요..
무언가 뾰족한 도움을 드리지 못해서 죄송할 뿐입니다.
G 부탁합니다 2020.12.21 18:05
계속 여쭤봐서 염치가 없습니다..

죄송하고 고맙습니다..
M 관리자 2020.12.21 21:01
아닙니다. 별말씀을요..
G 부탁합니다 2020.12.25 15:40
관리자님 안녕하세요?..

저희가 날짜를 추적해 봤더니
윗층이 강마루 하자 보수 공사를 한다고
기계로 강마루를 뜯어내고 다시 붙이고 하는 작업을 며칠간 반복해서 한 뒤로 EV가 움직일 때마다 바람 울리는소리가 납니다.
입주 초부터 소리가 나지는 않았거든요.

어떻게 하면 될까요?..
M 관리자 2020.12.25 16:33
그건 상관관계를 모르겠습니다.
실제로 연관 짓기도 매우 어려워 보이기도 하고요.
Category