탑층 세대내 엘레베이터 권상기 소음 유입

하자관련 질문/사례
질문 전에 먼저 검색을 해주세요.


탑층 세대내 엘레베이터 권상기 소음 유입

G 혜진 9 15,822 2020.01.06 18:29

안녕하세요

 

2019년 8월에 입주한

새아파트 입주민입니다.

 

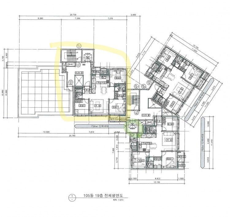
저희는 3호라인 19층 탑층이고

4호는 18층

1,2호는 22층 21층까지있어요

 

해당도면보시면 계단실이 근접해있고

1-2라인 엘레베이터는 안방 대각선에 위치해있는데요

 

 

저희세대로 1-2라인 엘레베이터와

3-4라인 엘레베이터 소음이 모두들립니다ㅠㅠ

 

안방쪽에서가 가장 소리가 크지만

화장실 복도 가릴것없이 전구역에서

 

웅~~~~텅! (브레이크소음추측)이 승강기

움직일때마다 들려요

 

게다가 고체전달음이라 그런지 귀도아파요...ㅠㅠ

 

너무너무괴로운데

날이 추워지니 소음이 더 울립니다

 

시공사 시행사와 전부 이야기해봤지만

기계실에는 방음재와 고무패드가 시공이 되어있고

원인을 전혀 모르겠다고합니다

 

 

이게대체왜그럴까요ㅠㅠ

 

속도를 줄여도 아주 미세하게줄뿐

여전히 울리고 텅!쿵!소리는 커요....

 

 

대체 뭐가 문제일까요...?

Comments

M 관리자 2020.01.06 19:22
관련된 기술자가 원인은 알고 계셔요. 
다만 비용이 들이지 않고, 이를 해결하는 방법이 없기에 그냥 모른 척 하고 있는 것일 뿐.
적은 비용도 아니거든요. 엘리베이터를 며칠 정지해 놓고, 차분히 원인분석과 해결을 함께 해야 하는 작업입니다.
동력의 문제인지, 완충재의 시공이 잘못된 것인지, 어딘가 공배관을 타고 흘러가는 소리인지....
저희 역시 이렇게는 원인을 단정지을 수는 없습니다. 다만, 우리나라 탑층 아파트의 대부분에서 이런 고통이 있다는 말씀만 드릴 수 있습니다.  위안으로 드리는 말씀은 결코 아니며, 그 만큼 무언가 해결을 보기 어렵다는 의미로 적었습니다.
G 혜진 2020.01.06 19:46
근데 옆라인 승강기 타고내리는소리도 들리는데
건축상 문제일수도있나요?ㅠㅠ

상주하면서 하루에 몇시간씩 멈춰놓고
확인하면 원인을 찾을수있을까요...?

그런데 저희아파트에서 소리안들리는탑층도있다고하더라고요....
1 그림 2020.01.06 19:57
엘리베이터 있는 아파트 (혹은 건물)를 전수조사해 본다면 많은 문제가 드러나지 않을까 싶습니다. 실행가능할 것 같진 않습니다만. 저는 타워형 고층아파트의 저층에 사는데, 홀을 중심으로 엘리베이터 반대쪽 집인데도 승강기 진동음이 전달됩니다. 몇해전엔 엘리베이터 부품을 교체한 후였다고 하는데, 둥둥둥둥... 마치 드럼 같은 타악기를 두드려대는 소리가 밤낮없이 하루종일 간헐적으로 들렸었지요. 한동안 너무 심해서 며칠 관찰해보다 이건 사람이 내는 소리가 아니다란 결론을 내리고 관리사무소에 문의했었구요. 집안에서뿐 아니라 계단, 홀 등 건물 전체에서 들을 수 있었는데, 사람마다 느끼는 건 차이가 있겠지만 저는 그 진동음 때문에 심장이 두근거려서 살기 힘들더군요. 작은 소음이나 진동이더라도 주파수에 따라 건강에 영향을 끼칠 수 있겠다는 생각도 듭니다.
1 mintist 2020.01.07 12:02
남일 같지않아서 도움이 될 진 모르겠지만 제가 찾은자료 남깁니다. 빗금친 부분에 흡음재 설치하라는 자료입니다. 아직 건설사에 요구할 수 있는 기간이니 할 수있는건 다 해달라고 적극적으로 얘기해보세요. 저 시공하면 약간 소음이 준다하고하네요.
저는 일단 속도를 줄이니 소음이 확실히 줄긴하더라구요, 25층 기준 90으로까지도 쓴다고하니 속도알아보시고 더 줄여달라고 하세요. 이것도 시일지나면 입주민동의까지 받아야하고 복잡하더라구요.
M 관리자 2020.01.07 12:25
mintist 님 감사합니다.

윗 분이 올려 주신 사진에서 맨 아래 사진이 핵심 중 하나 인데요..
사진처럼 엘리베이터 로프가 권상기실까지 이어질 수 밖에 없어서, 사진과 같은 구멍이 뚫려 있습니다. 이 구멍을 통해서 많은 소음이 전달이 되며, 엘리베이터 구간 전체에 걸쳐서 "울리는" 공명 효과를 냅니다. 그래서 그 입구 주변에 흡음재로 감싼 모습입니다.
이 것 외에서 권상기 자체의 진동을 흡수할 수 있는 장치가 "발"에 달려 있는데, 이 것이 제대로 시공되어져 있는지 (스프링 또는 진동방지패드의 시공)를 살펴 보셔야 해요.
1 mintist 2020.01.07 14:17
저희는 권상기 받침대를 벽에 구멍을 뚫어 아예 심어놨더라구요ㅡㅡ  엘리베이터 회사에서도 왜 이렇게 설치했는지 모르겠다면서, 진동이 벽타고 더 잘 전달되겠다고 그랬습니다. 이 부분도 확인해보시구요.
근데 기사님이 속도를 수동으로 완전 내려보니 웅~하는 운행소리가 하나도 안들리더라구요. 수동으로 확 줄여보고 세대내에서 들어보세요.
저희 담당 기사님은 제가 선물을 챙겨드릴만큼  넘 협조적이셔서 속도가 주된 원인이라는 알았습니다.
 일단 승인받은 속도 105에서 법적으로 허용되는 수치인 96.6까지 내렸는데 데시벨로는 3정도밖에 안줄었어도 전보다는 아주 조금 나아졌네요.
현 상황에서는 이게 최선이기에 그냥 살고있습니다.
저는 층간소음때문에 소리에 엄청 예민해진 상태인데도 한 2달되니 적응이 되긴하네요.
저희 엘베 속도가 빠른편이라고 90까지 줄여서 써도 되는데 이미 승인을 105로 받아서 90으로 하려면 입주민 동의에..부품도 바꿔야하고 넘 복잡하더라구요.
건설사가 개입할 수 있을 때 초장에 잡아야합니다.
또 한국승강기안전공단 이란 곳이 있는데 여기에 도움요청하면 직원이 나오기도하고 조언 해줍니다.
G 혜진 2020.01.09 22:51
답변너무감사합니다...
건설사쪽에서는 침실1 실외기실에
10T짜리 차음재를 붙여주겠다는데
그게효과가 있을까요?

그리고 속도를 줄이면 웅~~~소리는 약간 줄어드는데
쿵!소리는 같아요, .. 쿵!소리 잡는건 어떻게해야하나요ㅠㅠ
어떻게된게 엘베업체에서 해결방법을 1도 모르네요..
M 관리자 2020.01.10 10:42
붙여 주는 것을 마다할 이유는 없겠지만, 효과는 없을 것 같습니다.

쿵 소리는 권상기 쪽을 보셔야 해요. 권상기 셋팅하고도 관련이 있으나, 엘리베이터 회사에서도 모르면.... 그게 엘리베이터가 정지하면서 나는 소리인지, 출발하면서 나는 소리인지, 작동 중 나는 소리인지를... 본문에 올려 주신 기계실에 올라가서 지켜 보고 있으면 알 수 있거든요..
그리고, 권상기의 하부 발이 구조체에 어떻게 고정되어져 있는지도 보셔야 하구요.
그러므로 입주민대표와 관리실 직원분과 함께, 기계실을 개방해 달라고 하셔요. 꼭 안전요원과 같이 가셔야 하구요.
G 방문객 2020.04.21 10:16
엘리베이터 브레이크 작동방식을 바꿔달라고 하세요 투터치로 잡히면 브레이크소리 확연히 줄어들고 브레이크패드 간극조정도 해달라고 하세요 투터치방식으로의 변경은 제어반쪽에서 부품을 교환해야합니다
Category