복층 전열교환기 설치했는데 풍량 문제가..

하자관련 질문/사례
질문 전에 먼저 검색을 해주세요.


복층 전열교환기 설치했는데 풍량 문제가..

G 박상두 5 2,745 2022.01.06 14:00

30년된 구 빌라(3층)에 인테리어하면서 1층+지하인 복층에 이사왔습니다. 둘이 합쳐 60평이 넘습니다. 1층이 40평중후반대고 지하는 방이 두개로 나눠져있는데 10평 조금 넘는거 같습니다. 
이사전, 지하에 창이 있으나 습이 있다는 이웃의 말을 듣고 방법을 알아보던 중 전열교환기 환기시스템에 대해 알게 되어 국산 로터리식인 SSK업체에 설치 부탁했습니다. 지하 따로 지상 따로 해야하나 개인적으로 생각하고 있었는데 SSK측에서는 한대면 충분하다고 하여 그대로 진행하였습니다. 전열교환기는 지하 창문없는 다용도실 같은곳에 두고, 지하에서 1층으로 벽을 뚫어 관을 통과시켰습니다. 전열교환기는 SSK측이 선정한 DP1000입니다. 

 

현재 문제라고 생각되는 부위는 지하 전열교환기 설치된 곳 디퓨저로는 풍량이 엄청나서 소음이 심한데 지상은 방마다 약간의 차이는 있지만 '강'으로 틀어도 풍량이 약하거나 안느껴집니다. 소음도 거의 없습니다. 지상층에서는 '약'이나 '강'이나 차이를 잘 모르겠습니다. 거리가 멀어서 그럴 수 있겠지만, 비전문가인 제 생각에는 지하는 가까우니 공기관에 저항을 주거나 해서 지상층으로 보내는 관에 공기가 더 잘 오고 가도록 해야되지 않았나 싶은데

질문입니다.

 

1. 원래 급기구나 배기구에서 공기의 흐림이 잘 안느껴지는게 맞는지 

2. 약,중,강 에서 사람이 느낄 수 있는 차이가 없는지
3. 문제가 있는거라면 tab를 통해서 조정 가능하지 않았을지.  지금도 해결 가능한 문제인지

4. 지상 화장실 두 곳 모두 배기구를 해놨는데 화장실 자체에도 따로 배기가  있는데 이게 필요한지. 

5. 저희집 사이즈에는 DP 1000이 적당했는지 (기계 소음이 꽤 있어서요)

6. 전열교환기를 밀폐된 좁은 공간에 넣어도 됐었는지 (전열교환기에서 배기를 하나 그 방에 넣어놨습니다)

궁금합니다. 감사합니다. 
 


Comments

M 관리자 2022.01.06 16:02
안녕하세요.

1. 손을 대면 확실히 느낄 수 있습니다.
2. 차이가 많습니다.
3. 그건 TAB로 해결될 수도 있고, 아닐 수도 있는데요.. 혹시 공사 중에 분배기를 이용한 배관의 분배가 되었는지 알 수 있을까요? 분배기없이 되었다면 조정이 불가능하고, 애당초 잘못 설계된 것입니다.
4. 그건 풍량설계에 따라 다릅니다만, 없어도 되게 끔 할 수 있습니다.
5. 풍량이 커보입니다. 다만, 환형열교환기는 용량을 줄일 수 있기 때문에 TAB를 하면서 줄여 놓으시면 될 것 같습니다.
6. 유지보수만 가능하다면 상관은 없습니다.
G 박상두 2022.01.06 16:56
분배기는 있는거 같습니다.
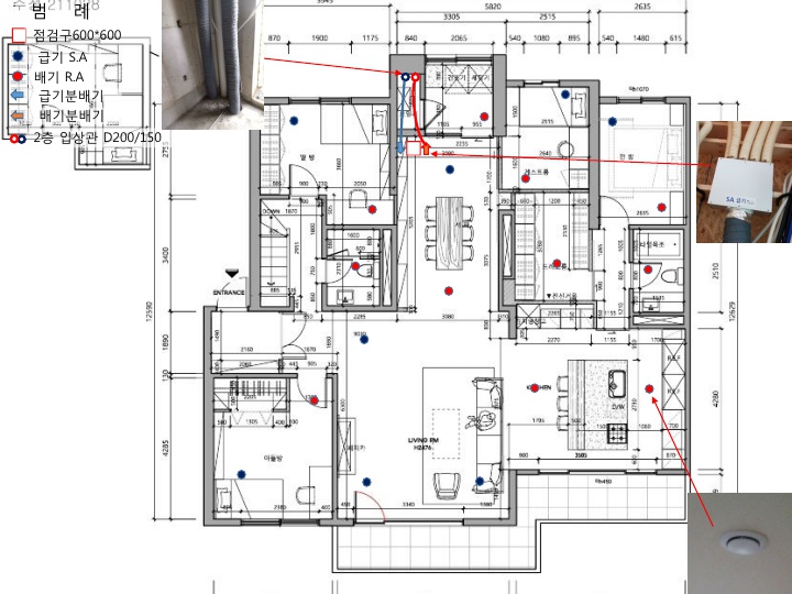
도면상 한번 올려보겠습니다. 혹시 문제 있을법한 부위가 있는지 봐주시면 감사하겠습니다.
G 박상두 2022.01.06 16:56
지상층
M 관리자 2022.01.06 17:35
제대로 되어 있으나, 지하와 지상의 배관 길이 차이로 인한 풍량차가 큰 탓입니다.
이 경우 지하 급기관의 구경을 바꾸면 되는데요. 결국 TAB를 하셔야 할 것 같습니다.
G 박상두 2022.01.06 17:58
여러 질문 드렸는데 모두 명쾌히 답을 주셔서 진심으로 감사드립니다.
Category