90년도 아파트 매수후 누수상황입니다

하자관련 질문/사례
질문 전에 먼저 검색을 해주세요.


90년도 아파트 매수후 누수상황입니다

G 박주현 1 1,722 2022.02.14 17:01


1990년도 아파트를 매매 했습니다

(1월 중순 잔금 치루며 매도인 이사나감)

현재는 인테리어때문에 공실상태입니다

동파때문에 한방울씩 물을 틀고 나갔다가 누수부분을 발견했는데요 ,

 

1/22 화장실 문틀에서 물이새는 누수를확인했고 (주로 세면대물을 틀면 며칠후에 물이 샘)

1/26 부동산과 매도인에게 누수통보했습니다.

몇명의 기사분들이 왔다갔는데 제각기로 누수다, 화장실 바닥타일 방수때문이다 

이러면서 아무런 조치를 하고있지 않습니다. 


맨처음 누수탐지기에서는 탐지기에 잡히는게 없어서 그냥 돌아가셨습니다. 

그리고 또 물이 새는걸 확인해 기사를 부르니 화장실 앞 바닥도 젖어있는 상태였고 

곰팡이들도 피어있었습니다 

 

화장실 양옆으로 붙은 방 장판을 들쳐보니 모서리를 둘러서 곰팡이들이 펴있네요 

 

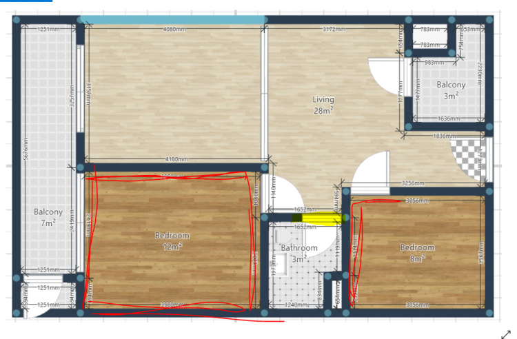
위 도면 사진에서 노란색부분은 화장실 문틀에서 누수가 발생한곳이고

빨간색 부분은 곰팡이 경로입니다 

 

 

Comments

M 관리자 2022.02.14 22:28
안녕하세요.
어떤 내용을 문의하려 하시는지 내용이 없어서 답변을 드리기가 어렵습니다.
Category