거실 아트월 우천시 물소리가 들리는데 괜찮을까요?

하자관련 질문/사례
질문 전에 먼저 검색을 해주세요.


거실 아트월 우천시 물소리가 들리는데 괜찮을까요?

G 내벽하자 3 2,418 2023.01.27 10:20

안녕하세요?

 

지은 지 3년이 안된 신축아파트입니다.

 

작년쯤 비올때 거실 아트월쪽에서 빗물 떨어지는 소리가 들려 시공사as센터에 접수하였고,

당시 옥상쪽을 점검한 후 방수조치를 했다고 해서 그런줄 알고 있었는데요

지난달 비올때 새벽쯤 들으니 빗물 떨어지는 소리가 핸드폰으로 녹음될 정도로 크게

들리네요...

 

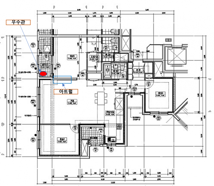
 안방벽면 반대쪽이 아트월이고 안방쪽 베란데에 우수관이 있는 상태이긴 한데, 안방쪽

벽면에는 누수의 흔적은 없고, 단지 빗물 떨어지는 소리가 많이 납니다.

일반적으로 아트월에는 TV를 많이 설치해서 다른 세대는 말이 없는 것 같은데, 저희는

소파를 둬서 더 잘들리는게 아닌가 하는 생각이 들기도 합니다.


평면도면_빗물소리.png

 그냥 빗물소리만 들린다면 크게 문제 없을 것 같은데.....만약 벽사이로 물이 흐른다면 벽면에 전기콘센트 등이 설치되어 있고 내구성 문제도 있을 것 같은데...

 

몇가지만 여쭈어 보겠습니다.

 

1. 이런 사항은 하자에 포함되지 않을까요?

2. 하자에 포함된다면 무상하자 보수기간은 방수로 봐서 5년일까요?  그리고 상기사항은 전유부분에 대한 하자일까요?  아니면 공유부분에 대한 하자일까요?

3. 이럴 경우 어떤 방식으로 하자여부를 확인해야 하고 그에 대한 하자보수는 어떻게 받아야 할까요?

 

바쁘시고 힘드시겠지만 관리자님의 댓글 부탁드립니다.  감사합니다.

Comments

M 관리자 2023.01.27 13:23
안녕하세요.

1. 소음은 하자로 규명되기가 무척 어렵습니다. 물론 예를 들어, 소음이 견디기 어려운 수준이고, 시공사와 하자보수에 대한 협의가 불가능한 상태에서, 국토부에 분쟁조정을 신청하면.. 전문가가 나와서 확인을 해주는데, 그가 들어 보고 (비록 정성적 판단이지만) 조치 요구를 할 수는 있습니다. 하지만 대부분 거기까지 가지 못하는 경우가 많습니다.
그러므로 중요한 것은 어느 정도의 큰 소음이냐이고, 또 그 정도가 일반적인 제3자가 판단할 때도 같은 불편함을 느끼는 것인가가 중요합니다.

2. 물과 상관이 없으므로, 딱히 하자보수기간이 정해져 있지 않습니다. 즉 위에서 이야기한 바와 같이 소음 자체가 하자로 규명이 되어 있지 않은 것이 현실입니다.
누수라면 하자이고, 기간은 5년이며, 공유부분의 하자입니다.

3. 누수의 증거가 있어야 합니다. 그렇지 않다면 단순 소음의 문제로 귀결 될 수 밖에 없습니다.

---------------
만약 소음이 듣기 힘들 정도라면,

혹시 평소에 대화를 하는 다른 세대가 있다면, 비가 올 때 그 집의 아트월 쪽에 귀를 대고 동일한 정도의 소음이 들리는지를 먼저 확인해 보시고...
1. 동일하다면 주민 전체에 해당하는 사항이므로, 이를 어떻게 할지를 주민 회의에서 결정을 하셔야 하며...
2. 확연히 정도가 다르다면 관리사무소에 이야기해서 배관에 대한 내시경 검사를 의뢰해 보시는 것이 좋습니다. 소음이 다른 세대와 달리 크다면 배관 내에 이물질이 있을 가능성이 있기 때문입니다.
G 내벽하자 2023.01.28 10:07
답글 정말 감사드립니다.  비가 올때만 나는 소리라 소음문제는 그냥 넘어갈려고 합니다.  우려되었던 점은 내벽을 통해 빗물소리가 들려 행여 물로 인해 벽의 내구성이나 전기설비에 문제가 생길까 우려가 되었던 점입니다.  다시 한번 감사드립니다.
M 관리자 2023.01.28 15:27
네. 감사합니다. 내구성이나 전기설비 등은 걱정하지 않으셔도 괜찮습니다.
Category