탑층 에어컨 설치 시 천장 단열재 파손 시 설계하자 여부

하자관련 질문/사례
질문 전에 먼저 검색을 해주세요.


탑층 에어컨 설치 시 천장 단열재 파손 시 설계하자 여부

G 가랑비 16 1,882 2024.10.15 12:16

 안녕하세요. 단열재 부실관련 질문 올렸었고 관리자님 답변에 도움 많이 받았습니다.~

 

추가적으로 질문을 좀 드릴게요.

 

저희 세대가 탑층이어서 천장에 단열재가 붙어있습니다. 그런데 천장 콘트리트에서 천장 마감재까지 길이가 충분치 않아 시스템에어컨을 설치하면서 공간이 나오지 않아 단열재를 파내고 묻었습니다.

 

혹시 이것이 설계 하자에 해당하지는 않는지요?

 

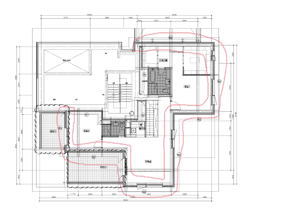
또 결로방지재가 평면도상 표시되어있는데 결로방지재가 설치되어 있지 않습니다. 결로방지재가 설치 되어야하는 위치를 어느도면 보면 알수가 있는지요? 

 

건설사에서는 결로방지재를 설치했다고 주장했었는데 실제는 없습니다

Comments

M 관리자 2024.10.15 14:06
안녕하세요.
설계하자에 해당 하나, 설계도면에 에어컨이 그려져 있는 경우에 해당합니다.
결로방지재는 건축도면 중 형별성능내역서 라는 도면 또는 단열계획도, 혹은 세대확대평면도를 보시면 되세요.
G 가랑비 2024.10.15 14:52
넵 감사합니다. 에어컨은 선택옵션으로 선택하게 되어있었습니다. 다만 선택했을때 단열재가 훼손될수 있다는 말은 듣지 못했습니다. 건설사에 떼고 원상복구를 요청해도 되겠지요? 해당 도면은 한번 찾아보겠습니다~
G 가랑비 2024.10.15 14:58
혹시 이도면상으로 결로방지재 위치를 알수 있나요?
G ㅇㅇ 2024.10.15 17:10
설계시 매립형 시스템 에어컨을 배치하도록 계획 되었다면 설계상 하자가 맞으나, 그런 사항이 없는 경우 설계하자라고 주장하기는 어렵습니다.
G 가랑비 2024.10.15 17:23
아.네 답변 감사드립니다. 그렇다면 어느도면을 봐야 시스템 에어컨이 설계시 있는지 없는지 확인 가능할지요? 그리고 만일 설계시 없다면 설계하자는 아니더라도 시공하자로 볼수는 있는건지요? 그리고 위 도면에 테라스 주변 물결모양은 무슨 의미 인가요?ㅠ
M 관리자 2024.10.15 17:25
도면에서 P1~P5 까지 표시된 부분이 결로방지단열재입니다.

에어컨이 옵션이고, 옵션을 선택하거나 시공 전 계약단계에서 단열재 훼손에 대한 고지를 받지 못했다면, 시공 하자의 일종으로 보는 것이 맞습니다.

물결모양은.. 도면에서 수정이 있었다는 표현입니다. (일명 구름마크라고 합니다.)
G 가랑비 2024.10.15 17:45
네~ 감사합니다. 다시 살펴볼게요~
G 가랑비 2024.10.15 17:52
위 도면에서 침실2 벽면에 p1 이라고 되어있는데 p1이라고 표시된 벽 천정쪽에 110두께 단열재를 붙이라는 의미인가요?  침실2 천정은 외기간접면이어서 천정 전체에 단열재가 붙어 있습니다.(내단열)
G 가랑비 2024.10.15 18:00
제가 생각하기에는 이 도면 표시된부위 벽체에 결로방지재가 있어야할것 같은데 뭔가 좀 안맞는거 같습니다. 표시된 벽체쪽은 외단열 그 호실 천정은 내단열로 되어있어 냉교현상이 크게 발생할것 같습니다. 표시된 벽체 호실 위쪽은 비난방구간으로 외기간접면이거든요. 따라서 외기간접면을 통해 냉기가 벽체를 통해 타고들어오는구조인데. 결로방지재 설치 위치가 이해가 안됩니다
M 관리자 2024.10.15 19:17
그렇지는 않습니다.
이 건물은 외단열 건물이라서 표시된 부분에 결로방지 단열재가 필요로 하지 않기 때문입니다.
다만 말씀하신 대로, 지붕은 내단열/ 외벽은 외단열이라면 만나는 지점에 열교가 존재를 하는데, 아마도 있다면 벽면의 상단에 수직으로 설치가 되었을 것입니다.
그 경우는 평면도가 아닌, 세대 단면도를 보시는 것이 좋습니다.
G 가랑비 2024.10.16 15:15
네 표시된 부분 천장이 내단열 외벽은 외단열입니다. 그건데 벽면에 수직으로 결로방지재가 있어야하는데 없습니다. 물론 벽체에 곰팡이 푸르스름한 물흔적 천정에서 결로수가 떨어집니다. 결로방지재 설치를 해달라고 할수 있는지요?
G 가랑비 2024.10.16 15:19
그리고 전에 한번 올린 그림인데 첨부처럼 테라스 바닥과 실내(예를들면 가족실) 바닥면이 저렇게 연결이 되어있습니다. 이렇게 되면 테라스 냉기나 열기가 바닥면을 타고 그대로 실내로 들어오게 되는데요. 이런경우 이것은하자인가요 아닌가요?
G 가랑비 2024.10.16 15:19
위 그림처럼 천장 내단열 외벽 외단열입니다. 저기에 결로방지재가 없습니다.
M 관리자 2024.10.16 23:16
사업계획승인을 받은 아파트라면 주택법에 의해 법이 정한 결로방지조치를 해야 합니다만, 그 대상이 500세대 이상입니다.
그러므로 500세대가 넘지 않는다면 의무사항은 아니며, 결로에 의한 하자로 접근 가능하며, 이 경우는 엄밀히 설계하자에 해당될 수 있습니다.
G 가랑비 2024.10.18 10:10
넵 감사합니다~
M 관리자 2024.10.18 17:34
감사합니다.
Category