장마철 방 벽지 젖음, 누수의 원인

하자관련 질문/사례

질문 전에 먼저 검색을 해주세요.


장마철 방 벽지 젖음, 누수의 원인

G 도르니스 15 743 08.29 20:38

3년차 신축주상복합아파트 중층에 거주합니다.

작년까진 이상이 없었는데

올해 장마 때 처음으로 벽지가 젖었는데,

비가 멈추고 이틀정도 지나니 다시 말랐다가

폭우가 다시 오면 젖게되고 안오면 마릅니다.

 

장마오기 1~2달 전 아파트 벽 도색을 하였고,

누수 이후 건설사 직원이 로프를 탔는데도 벽면이 깨끗하다고 합니다.


건설사에서는 외벽누수이면 창틀쪽에서부터 젖는다고 하는데,

저희집은 양쪽모서리가 아닌 중간부분부터 누수가 됩니다.

윗집은 누수되는 방 사용을 아예 안한다고 하는데,

 

원인을 알 수 있을까요?

천장 뜯어보니 양사이드는 괜찮고 누수부위 위쪽으로 젖어있는게 보입니다.

 

고견을 부탁드립니다.

도와주십시오

 

Comments

M 관리자 08.30 10:20
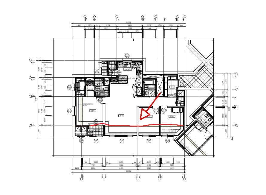
관리사무소에 보관 중인 준공 도면 중에 건축도면 내의 "세대확대평면도"라는 것을 사진찍어서 올려 주실 수 있으실까요?
G 도르니스 08.30 12:36
동그라미 쳐져있는부분에서 누수입니다
M 관리자 08.30 17:46
체크해 주신 부분이 거실과 침실의 사이 벽인데요.
젖는 것은 침실 쪽 인가요? 그리고 마주보고 있는 거실 쪽은 괜찮고요?
G 도르니스 08.30 19:23
젖는곳은 작은방 벽만 누수가됩니다
거실쪽은 멀쩡합니다!!
M 관리자 08.30 19:29
비와의 연관성은 확인이 된 것이기에...
관리사무소에.. 아래 표시된 곳에 우수관이 있는지를 물어봐 주세요.
윗집 바닥을 통한 누수인 것은 맞아 보이는데. 그 물의 유입이 될 만한 곳이.. 평면으로 볼 때, 해당 PD 정도 외에는 달리 없어 보입니다.
침실의 문쪽 벽은 건식벽이라서 물이 넘어 올 수 있는 조건이기도 하고요.
G 도르니스 08.30 19:50
네, 알겠습니다
우수관 여부 확인해보겠습니다

선생님이 보실땐 외벽균열은 아니신 것 같으신가요?
주변에서 외벽이 의심된다고해서
  사실, 전문로프공을 개인사비들여 외벽을 다시 확인해 볼 생각이었거든요

윗집이 협조를 안해주는 상황이라 정말 어렵네요ㅎㅎ
M 관리자 08.30 19:55
외벽 일 수도 있겠으나, 지금 주신 정보만으로는 제가 판단을 할 수 있는 근거는 없습니다.
G 도르니스 08.30 19:59
네, 알겠습니다
답변해주셔서 진심으로 감사드립니다
즐거운 주말 보내세요!!!!^^
1 도르니스 08.30 21:21
선생님 바쁘신데 죄송합니다!!
한가지만 더 여쭤봐도 될까요?
혹시 도면중에 제가 빨간색으로 그어놓은 저 곳이 우수관인가요?

답변 해주시면 정말 감사하겠습니다!!!!
M 관리자 08.30 21:35
아닙니다. 그건 발코니 확장선을 표시한 것입니다.
1 도르니스 08.30 21:42
네 알겠습니다.
우수관이 지나가는 곳이었으면 좋겠네요

확인해보고, 여기에 다시 기록하겠습니다!!
1 도르니스 09.05 06:36
선생님 그 자리엔 우수관이 없다고합니다
큰일이네요..
이 도면밖에 없나봅니다
M 관리자 09.05 09:36
이 평면은 애초에 모두 확장형으로 설계가 된 아파트라서.. 거실이나 침실2의 창가 쪽에 우수관이 없도록 설계가 되었습니다. 그러므로 어딘가의 PD 속에 우수관이 있어야 하므로..
관리사무소에 한번 더 문의하셔서 우수관의 위치를 파악해 보시겠습니까?
1 도르니스 10.23 09:17
선생님 외벽문제였습니다
도장을새로했더니 지금은 비가와도 물이새지않습니다
M 관리자 10.23 12:56
다행이고, 알려 주셔서 감사합니다.
Category