라돈 측정 시작

이런 저런 이야기

설계/시공/하자 등의 모든 질문 글은 해당 게시판에 해주세요.

여기에 적으시면 답변 드리지 않습니다.

 

라돈 측정 시작

3 내집마렵다 8 1,175 2024.01.30 21:35


 

 

협회에서 라돈아이 두 대를 한달간 빌려주셔서 오늘부터 측정을 시작했습니다.

실내는 노출콘크리트마감+표면강화제 입니다.

 

지역은 경남 거제입니다.


 

 

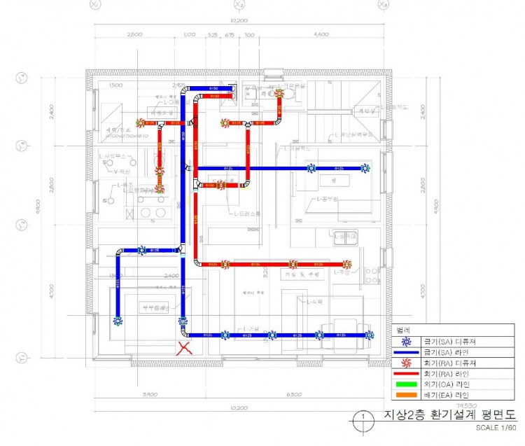
평면도2.JPG

 

침대 머리맡 협탁에 한대(빨간 X표)

  

 

 

photo_2_2024-01-30_21-22-22.jpg

 

 


photo_1_2024-01-30_21-22-22.jpg

 

침대는 환기장치 SA 디퓨저가 바로 위에 있고, 처음 읽은 값은 0.72pCi/L 입니다.

환기량은 270CMH 세팅입니다만, 9월에 마지막으로 환기장치 필터를 교체했기 때문에 풍량은 꽤 감소했을 것으로 생각됩니다.  현재까지 프리필터 청소조차 안하고 있습니다. 필터교체 직후 +5Pa의 실내압력이 0에 도달할 때까지 필터 관리 없이 가동하는 챌린지를 하고 있고, 현재 +3Pa 수준까지 실내압력이 떨어졌습니다.

 

 

평면도1.JPG

 

1층 계단하부에서 한대 (빨간 X표)

 

photo_3_2024-01-30_21-15-14.jpg

 

photo_4_2024-01-30_21-15-14.jpg

 

 

1층은 계단실과 기계실 뿐이라 환기장치 흡배기구가 없습니다.
라돈은 무거워서 가라앉는다기에 요렇게 위치를 잡아봤습니다.

다만 현관문이 종종 열리기 때문에 자연환기가 되는 것을 감안해야 합니다.

(제가 흡연자라 자주 열립니다 ㅎ)

계단하부에서 처음 읽은 값은 3.18pCi/L 입니다. 4pCi/L이라는 환경부 권고기준 이하이긴 합니다만

2층 침대옆에서 측정하는 0.72pCi/L에 비해 상당히 높은 값입니다.

생각외로 2층의 환기장치 효과가 좋은것 같습니다.


혹시 조언이 있으시다면 댓글로 남겨주시면 실험에 반영하도록 하겠습니다.

데이터가 좀 쌓이면 정리해서 글을 올리겠습니다. 

Comments

M 관리자 2024.01.30 21:43
어 흡연자 였나요?
맞다 그렇다... ㅎ
난중에 남자들만의 흡연 시간을 가지시죠...
3 내집마렵다 2024.01.30 21:50

요즘 담배 피우러 나가기가 너무 춥습니다 ㅎㅎㅎ
M 관리자 2024.01.30 21:54
ㅋㅋ.. 글죠...
저도 지금 사는 아파트에서 24시간 작동하던 열회수환기장치를 지난 일요일 오후부터 정지해놓고 Airthings Wave로 측정하고 있습니다. 다시 측정하는 이유는, 우선 예전 측정한 곳과 다른 아파트이기 때문입니다.

결과를 비교해보면 충분한 의미가 있을거라고 생각합니다.

예전에 댓글로 올려드린것과 비슷하게 환기장치 정지 후 4일, 다시 가동 후 3일 정도 해서 1주일 정도 측정을 생각하고 있습니다. 환기장치 정지하고 2일 지났는데 벌써 두 센서 모두 빨간색이 되었네요. ㅎㅎ 구체적인 수치는 그래프로 모두 정리해서 보여드릴께요, 기대해주세요~ (기기 특성상 정확한 수치를 뽑아내지는 못합니다 ㅠㅠ)

전용면적 84 m^2 판상형 아파트에서 Wave plus는 안방 침대헤드 위에, Wave는 서재(침실2) 책꽂이 상부에 위치합니다. 둘 다 성인이 서 있을때 머리 정도 높이로 생각하시면 됩니다.

환기장치는 정지했지만, 바닥 공기를 흡입해 위로 뿜어주는 방식의 공기청정기(샤오미 미에어프로)가 안방과 거실에서 계속 최저 속도로 작동중입니다.
1 논방구리 2024.02.02 21:57
거제도 엄청 따듯하던데..ㅎㅎ 어떤 곳이든 그곳만의 추위가 있는 법이겠죠!
3 내집마렵다 2024.02.03 11:32
물리쟁이님// 저희집 라돈 농도가 2층대비 1층이 항시 4-5배 정도 높습니다. 환기장치 유무의 영향도 있겠지만 가스 비중이 커서 1층에 모이는 듯합니다. 최저층에서는 상향식 공청기를 디퓨저 하부에 블로워로 놓는 것이 라돈 농도 감소에는 효과가 있을지 몰라도 확산으로 인해 사람 입으로 더 많이 들어가게 되는것 아닐까 생각이 들어서…
최저층 하부에도 ra 디퓨저 하나 정도는 있으면 좋을거 같단 생각이 듭니다.
3 내집마렵다 2024.02.03 11:33
논방구리님// 저는 다른 동네 살았으면 얼어죽었을것 같네요 ㅠㅎ
5 지람 2024.02.03 20:04
재밌는 글 감사합니다.
Category