도면에 치수가 표시되어있지 않으면 시공사 맘대로 해도 되나요?

이런 저런 이야기

설계/시공/하자 등의 모든 질문 글은 해당 게시판에 해주세요.

여기에 적으시면 답변 드리지 않습니다.

 

도면에 치수가 표시되어있지 않으면 시공사 맘대로 해도 되나요?

6 gklee 17 11,533 2020.10.02 00:13

지금 생각해보니 좀 이상한점이 있습니다.

 

한마디로, 저 도면중에 제 위치에 시공된 설비가 단하나도 없어서 다 수정을 했거나 해야하는 상황입니다.

 

첨부한 그림이 저희가 전달한 도면인데 정확한 위치가 치수선으로 기입되어있지는 않으나 구성요소들이 정확한 위치에 그려져있습니다.

 

지금 문제가되는건 저 변기 위치가 크게는 20센티까지 오류가 생겼고, 배수구의 위치도 제멋대로 바꿔서 공사를 해뒀습니다.

 

변기 옆에도 제가 샤워기를 쓸수있는 단자를 말해서 표시가 되어있다가 그것도 시공을 안해놔서 벽 까고 추가로 설치를 했습니다.

 

그런데 도면에 표시되었는데 시공을 안한 변기옆 샤워단자는 우리가 비용을 부담하겠으나, 치수가 표시되어있지 않았으니 우리책임 아니다, 수정은 돈내라 라는 논리더라구요.

 

얼마전까지만 해도 공사는 끝내야하니 따지지도 않고 넘어갔습니다만..

 

아니 그런데 지금와서 가만 생각해보니까 도면에 안그려져있으면 모르겠는데 도면에 그려져있으면 스케일자로 재던 치수를 모르겠으면 물어보던 해야하는게 상식아닌가 하는 생각이 듭니다. 특히 그림 2의 변기는 치수고 뭐고 누가봐도 도면에 벽 중앙인데 15센티였나 벽으로 붙어있어가지고 편심으로 옮긴거거든요. 새집지으면서 치수전달 다해놨는데(제 입장에서는요..) 편심써서 변기위치 잡고있는 상황이 화도 나는데 그보다 책임 없다는얘기가 이게 맞나 싶어서요.

 

특히 가장 문제가 큰 화장실은 그림 1의 오른편 화장실인데, 이곳의 모든 설비(상하수관 전부)가 같은방향으로 약 2-30센티가 치우쳐져, 도면 해석오류 혹은 현장감독/지시 오류인것같거든요.

 

생각해보니 저는 치수를 정해서 설계사분께 전달을 해드렸고 설계사분도 정확한 치수는 빠졌는지몰라도 도면 자체는 제대로 그려진 상황인데 이거 어떡하지 하는 생각을 하고있는 제 상황이 너무 웃긴것같습니다.

 

 

Comments

M 관리자 2020.10.02 00:04
소규모 현장에서는 거의 대부분 도면을 보지 않고 있습니다. 특히 화장실은...
그 위치라는 것이 통상의 범위 안에 들어가기에 유야무야 넘어가는 듯 싶습니다.

하지만 일정 수준 이상의 시공사라면 도면(특히 정해진 위생기기)에 정한 바가 있기에 그 것을 미리 검토하고, 도면과 현장의 상황이 맞지 않을 때는 건축주와 협의를 하는 것이 보통입니다.

이 경우는 (예측컨데) 설비 시공자가 현장 소장의 관리하에 있지 않은 듯 보입니다.

문제는 수정인데요.. 이미 다른 글에 질문글을 올리셨으므로, 그 글로 갈음하겠습니다.
6 gklee 2020.10.02 00:15
도면에 치수가 표시되어있지 않으면 시공사 맘대로 해도 되는지에 대한 것은 '그렇지 않다' 라고 보면 되겠군요. 20센티 오차가 통상의 범위일것같지는 않습니다.
6 gklee 2020.10.02 00:16
그리고 이런것들(설비의 위치) 감리의 업무대상이 아닌가요? 잘못되어있는것도 웃기고 시공사는 내책임 아니다 치수 없어서그랬다하는것도 웃긴데, 항상 이런걸 발견도 제가하고 수정요구도 제가하고 이게 지금 뭔가 싶습니다. 게다가 그 감리분이 설계자이기도 한데..
M 관리자 2020.10.02 00:25
조금 애매합니다.
저희는 ...

감리가 법적인 사항만을 보는 거라고 착각을 하고 있다고 주장을 하고 있으나...
법에는 법적 사항"을" 보도록 되어져 있지, 법적인 것"만" 보라고 되어 있지는 않습니다.
이 것을 편한 대로 해석을 하고 있을 뿐입니다.

그러다 보니, 법적인 것"만"을 보는 비용을 청구하고, 서로 그걸로 만족을 하는 분위기가 되었죠.

감리자가 "나는 법만 보겠다"라고 한다면 할 수 없는 상황입니다.
설비의 위치는 법적인 사항이 없습니다. 그러므로 감리자의 의무사항은 아닌거죠... 불행히도..

전문가 집단이 이러저래 욕을 먹고 있는 원인이기도 합니다.
6 gklee 2020.10.02 00:28
저는 이렇게 생각합니다.

첫째로 저는 이미 설계과정에서 원하는 치수를 전달해드렸고, 둘째로 도면에 치수기입이 빠졌던들 그림 자체는 정확히 그려져있으며, 셋째로 일괄적으로 설비들이 한쪽으로 치우쳐진것을 보면 치수가 안나온 문제가 아니고(반대편의 화장실은 또 제대로 되어있습니다) 설비작업자가 도면을 잘못이해하여 치우쳐지게 작업을 한것이며, 그 책임은 설비업체가 직영이건 하청이건 현장관리책임자인 시공사의 책임이라고 생각하고 도면의 칫수 운운하는것은 무책임할뿐아니라 졸렬하다고 생각합니다. 배관작업할때 그 컨테이너에서 좀 나와서 보기만 했어도, 다 끝낸거 한번 검토만 했어도 쉽게 수정할수 있었을 것들입니다.

따라서 편심을 쓰지 않고(수정폭이 너무 큽니다. 20센티입니다. 추후 고질적인 문제가 발생할수 있습니다) 해당 시설들의 수정을 요구하는것은 정당한 요구라고 생각합니다. 관리자님이 보시기엔 어떠신지 의견을 여쭤보고싶습니다..
M 관리자 2020.10.02 01:10
현장의 진행 상황을 알지 못하므로, 앞선 질문으로 추론한 원론적인 답변만을 드리면...
설계의 의도가 있었고, 지금의 결과가 그에 미치지 못한다면 수정의 요구는 정당합니다.

다만, 지금 상태에서 도면 대로의 수정은 불가능한 폭 입니다. 그러므로 최대한 의도에 맞추는 쪽으로 수정을 해야 하며, 그 결과를 받아드릴 수 있는가? 또는 받아드일 수 없다면 그 다음은 어떻게 해야 하는가? 에 집중을 해야 할 것 같습니다.
6 gklee 2020.10.02 10:38
혹시 받아들일수 없을경우에 어떻게 할수있는지에 대한 옵션이 있습니까?
M 관리자 2020.10.02 11:00
아시다시피 정해진 바는 없습니다. 합의를 보기도 어려운 부분이라서요.
6 gklee 2020.10.02 11:58
언제나 답이 없을때 관리자님은 방법이 있었기에 굳이 이 시공사가 받아들이지 않을 방법이라도 이들과 결별하고나서 시정하는 방법이 있으니 순수 저희 추가비용으로 진행하더라도 장기적으로 앞으로 살면서 문제가 없을 방식으로 수정을 하고싶습니다.
M 관리자 2020.10.02 12:34
바닥 배관의 위치는 다른 시공사도 마찬가지여요.
구조가 연관되어 있어서 원하는 위치에 도달 할 수 없는 범위거든요. 즉 배관의 위치는 수정 가능한 범위까지를 인정하고, 그 나머지 댓가를 어떻게 지불하게 할 것인가.. 를 고민해 보셔야 할 것 같습니다.
2 ifree 2020.10.02 13:15
비슷한 경험을 했는데요. 도면에 치수 누락은 건축가의 실수가 아닐거라고 저는 이해합니다.
화장실 디테일은 건축가 설계 영역이 아니라 인테리어 영역이라는 묵시적 동의가 있는 것 같습니다.
예를들어 변기의 모델에 따라 배수구의 위치가 다르기 때문이죠.
해서,  제 경우에는 인테리어 설계를 별도로 했고 그 때 변기의 모텔을 정하고 제작 회사에서 제공하는 캐드 드로잉을 가져와 디테일 조립도를 완성했습니다.
그 후 인테리어에서 결정된 도면을 건축에 넘겨 디테일을 완성하고 배관도와 설치도 수치를 표기했습니다.
대개,  설비도가 없을 건데요.  이게 건축가가 할 수 있는 영역이 아니기에 저는 수양 엔지니어링과 금성건축에 설비도면에 대한 별도 용역을 주고 도면 작업을 했습니다.
그렇게 했음에도 실제 시공은 제 멋대로 되어 있더군요.
특히 개인 주택에는 배관을 위한 설비층 없이 벽속에 배관을 매입하거나 추후 까대기 시공을 예사로 해 온 탓에 설비층이 있을거라는 생각을 안 하고 바닥 배관을 해 놨더군요.  즉, 최초 바닥 시공된 배관으로는 추후 설비층 시공시 바닥 배관의 위치가 250~300정도 벽으로 밀착되게 되서 시공이 불가능하게 되어 있었습니다. 도면을 제대로 안 보고 시공하는게 몸에 베어 있는거죠.
중요한건 그들에게 그런 습성이 있다는 걸 나도 알았고 현장 소장도 사전에 알고 있었다는 거고요.
지피지기면 백전불패라고 하죠.
해서,  바닥 철근 배근 전에 상하수도,  전기, 등 매입 설치물들에 대한 확인 절차를 거치도록 계약서 특약에 명시를 했고 그 과정에서 오류를 캐치하고 재 시공했습니다.
배근 전이라고 해도 일이 제법 많았습니다. 장애물이 이미 많은 상태라 굴삭기 도움없이 삽자루 시공을 해야 했고,  수정 후 잡석 기계 다짐,  훼손된 분리층(비니리) 보강 등 잡일이 많을 수 밖에 없죠.
집이 완성이 되려면 건축,  구조,  설비(난방,  상하수도,  공조), 인테리어,  통신,  소방 등에 관한 세부 사항의 결정 과정이 건축 개시 전이든 후든,  도면으로든 구두로든 건축주가 하든,  건추가가 하든 공사 현장의 작업자가 임의로 하든 누가하든 반드시 있어야만 한다는 것을 예비 건축주들이 알고 계셨으면 합니다.
앞으로 갈수록 오류는 줄고, 이 모든 것이 건축도면 하나에서 커버될 수 없다는 것도요.
6 gklee 2020.10.02 17:53
제가 찍어둔 영상과 도면을 살펴봤는데 매우 흥미롭습니다.

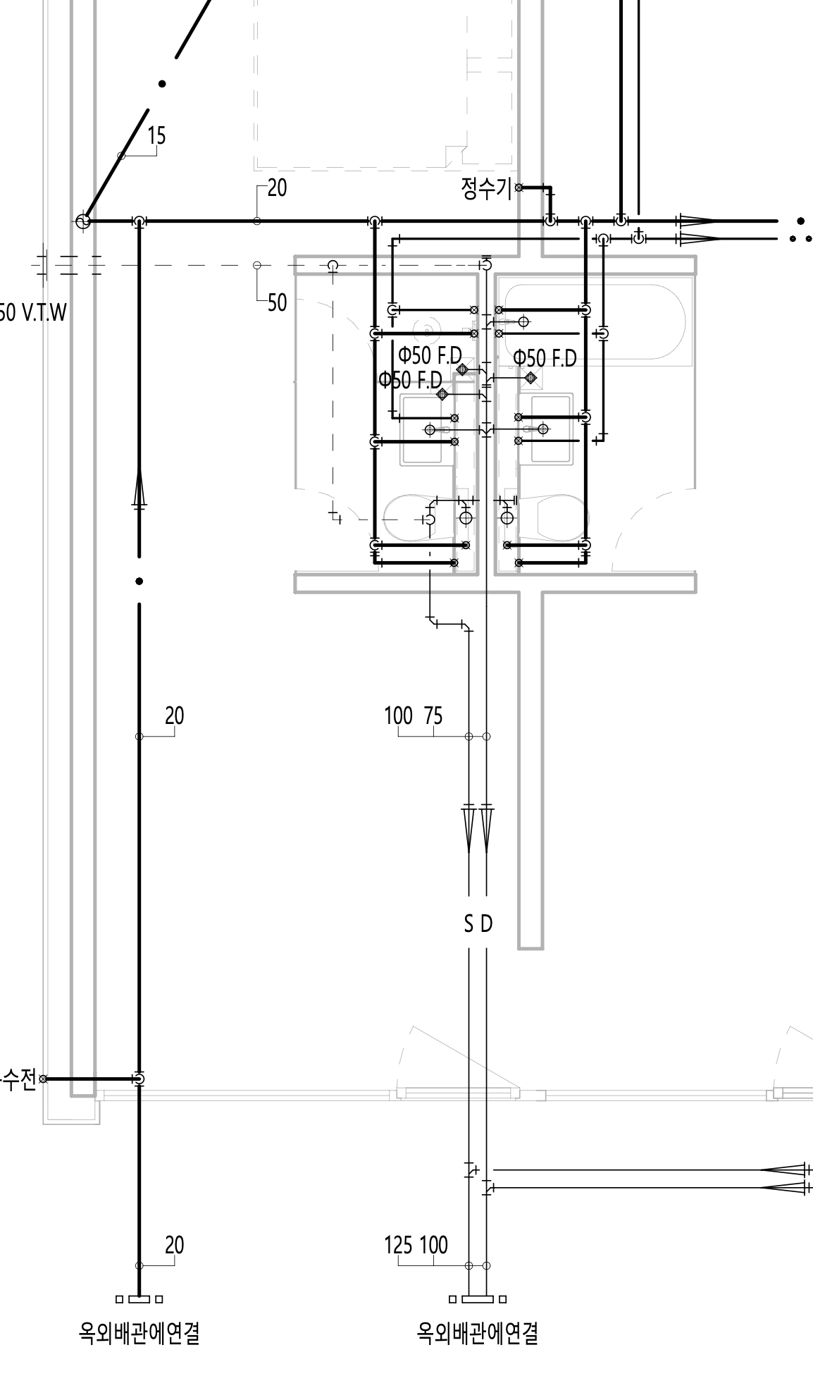
그림1은 설비도면입니다.

다른 사진들은 현장사진이구요. 아예 도면대로 하질 않았어요. 최 남단에 밖으로 나가는 배관은 뜬금없이 두번 꺾여서 들어가있고요.
6 gklee 2020.10.02 17:53
실제 시공사진 1
6 gklee 2020.10.02 17:54
변경에 관한 논의는 전혀 없었습니다. 이 사진은 맨 끝단 외부로 나가는 배관인데 보시듯 90도로 두번 꺾여있습니다
6 gklee 2020.10.02 17:59
화장실 1/2의 바닥배수구 위치가 다른데 배관 하나로 끝내려고 위치를 아예 일치시켰네요. 실수정도가 아니라 아예 설계를 맘대로 변경했군요. 이래놓고 치수타령을 하며 건축사 탓을 했다는것이 참..
6 gklee 2020.10.02 18:11
현재상태 - 화장실1(도면상 왼편)
6 gklee 2020.10.02 18:12
현재상태 - 화장실2(도면상의 오른편)
Category