신축집인데 라돈이 너무 높군요..ㅜㅜ

이런 저런 이야기

설계/시공/하자 등의 모든 질문 글은 해당 게시판에 해주세요.

여기에 적으시면 답변 드리지 않습니다.

 

신축집인데 라돈이 너무 높군요..ㅜㅜ

G 도라에몽 13 4,062 2018.11.05 15:34
작년에 신축한 2층 목조주택입니다. 올해 대진침대 라돈 사건이 터지고, 집에도 라텍스 매트릭스가 있어 라돈체크나 해보자고 한 게 이렇게 스트레스를 유발할지는 몰랐습니다.

여름일때는 토양과 압력차이가 없었던지 2~3 pci/l 정도였는데 가을이 되니 6~8pci까지 집안전체가 라돈수치가 치솟아 올라가는 상황입니다.(1pci에서 4PCI까지 오르는데 걸리는 시간은 1시간정도면 충분하네요)

집에 벽부형 전열교환기가 1층 거실(최대150CMH)에 설치되어 있었으나 크게 도움이 되지 않아서 라돈전문업체에 토양배기법을 문의했더니, 저희집 기초는 구역별로 나뉘어 있어 구획별로 타공해서 라돈팬을 설치하지 않는 한 감소효과 없을 거라는 답변이 돌아왔습니다.

결국에는 환기밖에는 대안이 없어...없는 자금을 대출받아 최후의 수단으로 국산전열교환기(최대500CMH)를 설치하고 몇일간 라돈을 측정해보았습니다.

근데 기대와 달리 그 결과는 처참한 상황이네요.
풍량 중간단계(아마도 250CMH)로는 방은 급기만 설치해서 양압이 걸려서인지 방문을 닫고 자면 1pci/L 이하로 유지가 가능한데 1층과 2층 거실 복도는 여전히 5~6pci를 기본으로 찍는 상황입니다. 설치전과 설치후가 사실 큰 차이가 나지 않는 상황입니다. 2층 복도는 급기가 2개가 설치되어 최대 풍량 3단계로 전열기로 돌리면 수치가 3PCI이하로 떨어지기도 하지만 소음 때문에 지속적으로 돌리기는 어려운 상황입니다.(1층은 3단계로 해도 조금 내려가는 정도입니다.)

도대체 이해가 가질 않는 상황입니다. 기초할 때 그래도 비닐을 깔고 그위에 콘트리트 기초가 올라가는 상황이고, 벽체는 타이벡으로 둘러져 있는 상황인데
이렇게 라돈이 빠르게 올라가는 상황도 이해가 되지 않고, 전열교환기로 환기를 해도 수치가 떨어지지 않는 상황은 더더욱 이해가 되지 않아 상심이 큰 상황입니다. 땅밑에 라돈샘이라도 있는 건지 ㅜㅜ(하수구도 라돈이 나와 트랩으로 역류를 막은 상황입니다)

어떻게 풀어야할지 알 길이 없고 수단도 없어 더 좌절스러운 상황입니다..  그냥 유럽기준 400Bq/m3인걸 위안삼아 살아야 할까요. 
귀 협회에서는 TAB를 당연히 패시브인증회사만 제공하는 상황이라 부탁도 못드리겠네요...

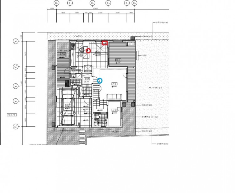
* 전열기 설치시 업체가 TAb 옵션을 제공하지 않고 풍량세기만 측정후 디퓨져 조정
* 급기: 파란색, 배기: 빨강색

Comments

2 프라즈냐 2018.11.05 15:45
리자님을 비롯한 전문가들께서 답변해 주실 것으로 사료됩니다만, 저의 견해로는 다른 문제는 차지하고서라도  '흡기와 배기' 디퓨져의 갯수와 위치에 1차적으로 문제가 있지 않는가 생각됩니다. 흡기와 배기가 원활하지 못하므로....^^;;;.... 나머지는 전문가들 께서 상세히 답변 주실 듯....^^...참고로 TAB의 구매는 패시브하우스 인증 주택이 아니라 하더라도 구매해서 설치할 수 있는 것으로 알고 있습니다.^^
G 도라에몽 2018.11.05 19:12
준공된 상태에서 설치가 쉽지 않아 1층은 제약이 살짝 있었습니다.  제일 목표는 각방에는 급기를 두고
2층 거실에는 급기 2개를 둬서 양압을 살짝  걸리게 하고 배기는 파우더룸과 거실 가운데를 메인으로 두었습니다. 평면상 거실 배기가 근접해  보여도 높이차가 2미터 정도 나는 위치에 있습니다.  1층은 급배기 별도 벽부형이 있어서 디퓨져1개는 커버할거로 생각했는데 오산인것 같네요.
2 ifree 2018.11.05 19:15
계측기가 고장난게 아닐까?  정도군요.
현상이 너무 뚜렷하면 원인도 단순할 가능서이 높지 않을까 싶습니다.
저 같으면 모든 트랩, 욕조,세면기, 싱크대 등 구멍이란 구멍은 눈에 보이는데로 모두 비닐이나 걸레 같은거로 틀어막고 첵크를 해보겠습니다.
화장실 문 포함하여 실내 문은 모두 개방하고요.
라돈수치변화도 보시고 창을 조금열어 공기가 나가는지 들어오는지 (향 연기 같은 걸로) 환기장치 tab가 혹 음압이 걸리고 있지 않은지 ...
이리한 상태에서도 음압이 아니고 환기량이 그 정도인데도 라돈 수치가 그 정도로 높다면 측정기가 고장난게 아닌가 의심해볼 만 합니다.
혹 모르니 현관 바캍의 라돈 수치도 한번 보시죠.
그 지역의 특이 사항이 있는지 확인하는 의미는 있을 것 같습니다.
G 도라에몽 2018.11.05 20:46
세종시가 조금 높은지역이긴 한데.. 일단 저도 기기고장이면 좋겠는데
라돈기기는 두가지 라돈아이와 airthings 모두 높은수치가 나와서 높은건 맞는것 같습니다. 하수도 싱크대 등 욕조 등은 트랩을 하기도 햇고 욕실 하수도를 제외하고는 라돈 수치가 높지 않았습니다.
그리고 1층은 음압이 걸리는것 같긴합니다.
근데  1층에 급기를 추가해서 양압을 확실히 걸고 싶어도 전체 급기량이 2층에 집중되있어서.. 급기량은
변동없으니 업체어서는 1층 배기를 두개 더 늘려보자고 하는데  음압으로 라돈이 더 빨리는건 아닌지 걱정스럽네요
1 홍도영 2018.11.05 21:15
강제급기는 아주 위험한 방법입니다. 절대적으로 피해야 하는 방법입니다. 라돈농도는 줄이실수 있습니다. 대신 다른 문제를 얻으십니다. 그게 목조주택이라면 더 위험해지구요. 이유는 저녁에.....
G 도라에몽 2018.11.05 21:28
양압을 걸면 당연히 라돈유입이 줄어드는건 알고있습니다. 본문에 명기한대로 방으로의 유입은 급기로 막고는 있습니다. 다만 목조주택이라 강제급기를 하면 결로위험이 있다는 글을 본적이 있습니다.
그렇다고 해서 그냥 둘수도 없고 수가 없네요. 이런걸 컨설팅해주는 업체라도 있으면 좋겠습니다. 개인이 뭘하기엔 힘들네요 참
G 도리에몽 2018.11.05 22:02
펀백길 님
저도 사실 2층에는 급기2개한게 같은 이유일것
같네요. 1층은 여유 급기가 없어 1개만 두것이구요.
사실 2층 복도 급기를 하나 죽이고1층에  급기를 2개두는게 낫을까 고민해봤는데 뭐가 정답인지는 모르겠네요.
1 홍도영 2018.11.06 08:28
일단 밸런스가 무너진 음압 혹은 가압(양압)에서 음압은 외부에서 공기가 들어오기에 여름철이 아니라면 겨울철에는 단지 난방에너지의 소비로 이어지고 실내가 건조한 결과로 이어지지만 양압의 경우는 위의 건물의 도면에서 실내측에 도배지를 제외하고는 기밀층 겸 방습층이 누락이 되어 있기에 실내의 고온다습한 공기가 가급적이면 빨리 외부로 배출이 되는 경우를 제외하고는 외부의 OSB에 막혀서 내부결로로 이어지는 위험이 아주 높기에 권하지 않는 방법입니다.
평균 200 Bq이기에 이것이 기준으로 권하는 100 Bq에 비해서 높은 것은 사실이나 이것이 건강을 걱정할 정도로 높은 수치인가? 라는 질문은 저는 다른 생각이지만 판단은 사시는 분이 하는 것이라 뭐라 코멘트 하지는 않겠습니다.
보통 2층 건물에서는 자연상황에서는 일층은 음압이 걸리고 2층은 양압이 되면서 외부로 배출이 되기에 아마도 이층 계단측 복도에서 가장 높은 수치를 보이게 될 것이며 일층에서는 배기가 되는 부엌공간이 높을 것입니다.
여기서 만일 내부 기밀층이 훼손이 되었다면 가능성이 있습니다.
더불어 실내에 황토나 대리석등의 마감이 있다면 수치는 올라갈수가 있구요.
5 pci이면 200 Bq이 넘지 않는 것인데...일단 너무 큰 걱정은 하지 마시길 바랍니다. 권고치 100 Bq는 일년 평균치 입니다.

이 수치가 걱정이 된다면, 원인을 떠나서, 가족들에게 쏘세지 같은 가공육류도 먹이지 말아야 합니다.

1. 기밀테스트를 진행해서 기밀이 훼손된 곳을 찾아내고, 바닥 연결부위가 특히 의심이 됩니다.
2. TAB을 해서 밸런스를 맞추고
3. 그 다음에 측정을 한 번 해보시죠.

개인적으로는 라돈이 걱정이 아니라 혹여나 방습층이 없을까 그것이 더 걱정입니다.
G 도라에몽 2018.11.06 09:16
홍도영님 감사합니다.  일단 방습층이 없다고 봐야할것 같네요.  아직 한국에서는 패시브 주택 외에는 인텔로같은 내부 방습층을 시공되는곳이 잘 없는것 압니다. 저희집 주변 시공되는 목조주택을 봐도 방습층 두는 집이 없는 현실입니다.
라돈 같은 경우는 환기를 세게하지 않는 상황에서는200이 넘어가는 경우가  많은게 문제입니다.  1층에 배기 2개를 추가하면 음압이 더 걸릴것 같긴하지만 2층에  올라오는건 적어지려나요? 2층이라도 방어를 하고 싶네요. 첨부파일은 어제 2층 복도 측정결과입니다.
M 관리자 2018.11.06 18:40
라돈 수치는 저 역시 크게 걱정하실 숫자로는 생각되지 않긴 합니다만.. 의사가 있으시다면 TAB 서비스를 신청해 보셔요..
배기 숫자를 늘리는 것은 그리 도움되지 못합니다. 그 배관이 그 배관이라... 그냥 숫자를 2로 나누는 것이니.. 결과는 같거든요..

----------------
이 글을 보시는 다른 분들을 위해...
목조 주택에 실내 방습층을 생략하면 "불법"입니다. 에너지절약설계기준의 "의무사항"에 방습층을 두도록 하고 있기 때문입니다.
G 도라에몽 2018.11.06 20:25
tab을 귀 협회에 신청해도 된다는것인지요. 그렇다면 신청해보고 싶습니다. 배기를 늘리려는건
기존에 배기를 4개만 해서 용량에 여유가 있어서 남은 여유분을 하려는것인데 그것도 의미 없는 것일까요? 방습층이 없는게 불법인지는 몰랐습니다. 근데 패시브시공아니고서는 대부분 단열재 겉 방습지를 방습층으로 생각하지 않나요? 이건 방습층으로 저는 생각하질 않아서요
M 관리자 2018.11.06 20:31
네 하신 말씀이 맞아요. 국내에 그게 방습지인지 아닌지 명확한 규정이 없습니다.
배기를을 늘리는 건 의미가 있을 수도 있고 없을 수도 있는데요. 어차피 한 기계에서 배기를 하는 거라 배기구 숫자를 늘리면 각 배기구에 풍량이 줄어 들 뿐이지 전체 풍량 자체는 큰 변화가 없기 때문에 그렇습니다.
그러나 기존 배기구 하나하나가 감당해 낼 수 있는 최대 풍량을 넘어서 있다면 배기구를 늘리는게 전체 풍량을 늘리는데 도움이 되긴 합니다.
근데 문제는 그걸 짐작으로 하긴 너무 어렵다는 거죠.
Tab 시험은 의뢰게시판에 글을 올리시면 담당자가 연락드릴 것입니다.
G 도라에몽 2018.11.06 21:17
도움을 주신분들게 감사합니다. 많은 도움이 되었습니다. 요즘 라돈에 대한 언론 보도 등으로 더 민감하게 생각한건 아니었나 생각이 듭니다. 실제 라돈의 위해성보다는 라돈의 측정기만 처다보는 일상이 더 스트레스인건 부인할수 없을것 같습니다.  우선 측정기부터 치우고 일상으로 돌아가러고 합니다. 감사합니다.
Category