콘크리트 구조의 2층 주택인데... 질문이 있습니다...

이런 저런 이야기

설계/시공/하자 등의 모든 질문 글은 해당 게시판에 해주세요.

여기에 적으시면 답변 드리지 않습니다.

 

콘크리트 구조의 2층 주택인데... 질문이 있습니다...

1 서산아자씨 2 1,537 2022.01.24 08:53

안녕하십니까...?

늘 협회 홈페이지와 유튜브 동영상도 잘 보고 많이 배우고 있는 직장인 입니다.

늘 감사하게 생각하고 았습니다.

 

다름이 아니라....

이번에 저희가 거주할 2층 주택 설계를 나름 대로 해보고 있습니다.

 

그런데 토지가 주변에 아파트가 많은 상황라

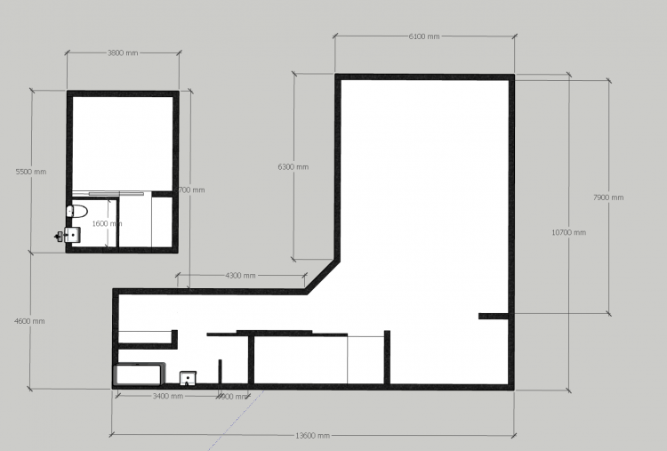
조금이라고 독립적인 공간을 만들고 싶어서 어찌어찌 하다보니 ㄷ 자 형식의 집을 계획하고 있습니다.

70평 조금 넘는 작은 토지에 ㄷ 자 형태로 집을 짓고 싶어서  

공간 배치에는 좀 불리한 부분이 있는것도 잘 알지만  

실행에 옮기려 하고 있씁니다.  주차도 딱 위치가 정해져 있구요.

 

일단 배치나, 주차 그리고 건축 한계선(마감자재에 여분의 이격거리까지)등은 

설계사님께 여쭤본결과 이상은 없는데요..... 다만....

구조에서 1층 넓은 부분에 내력벽을 설치 하기가 애매해서 이렇게 질문을 드립니다.

 

제 나름 대로 오랜기간 동안 작업을 한지라.... 여기서 이 형태를 포기 하고 싶지 않은데요....

 

설계사무실에서는.... 본인도 구조는 의뢰하는 것이고 그리고 창호까지 다 계획된 상태에서

구조로 외주를 준다고 합니다.

 

이 공간에 구조를 여쭤 보는 것이 이상하시겠지만.......

 

좀 봐주시면 어떨까 해서 이렇게 여쭤봅니다.

 

2층짜리 주택이지만 옹벽 두께는 200으로 하고요..... 

 

 

Comments

M 관리자 2022.01.24 14:49
가능합니다. 안되는 구조는 없다고 보셔도 됩니다. 비용의 문제일 뿐...
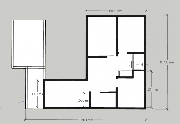
다만, 지금 고려하실 것은.. 양쪽 벽의 두께가 300mm 가 되어야 한다는 점입니다. 그 것만 미리 염두에 두시면 구조 자체는 쉽게 해결 가능합니다.
그리고 1층 천장에 보가 들어가야 하고, 높의 높이는 약 450mm 정도 필요하니.. 층고 계획에 반영을 하시면 될 것 같습니다.
1 서산아자씨 2022.02.11 12:01
네... 답변 너무 감사합니다.
Category