다세대, 다가구에서 역전지붕 문의

설계/시공관련 질문

질문 전에 먼저 검색을 해주세요.

 

다세대, 다가구에서 역전지붕 문의

G 류류류 15 2,672 2021.09.14 11:47

안녕하세요. 설계 1.5년차 건린이입니다.

저희는 주로 다세대, 다가구 등을 많이 설계하는데 이번에 협회에서 권장하는 역전지붕에 대하여 공부하고 있습니다.

역전지붕을 도입해보고자 하지만 아래의 현실적인 여건 때문에 가능할지 문의를 드립니다.

 

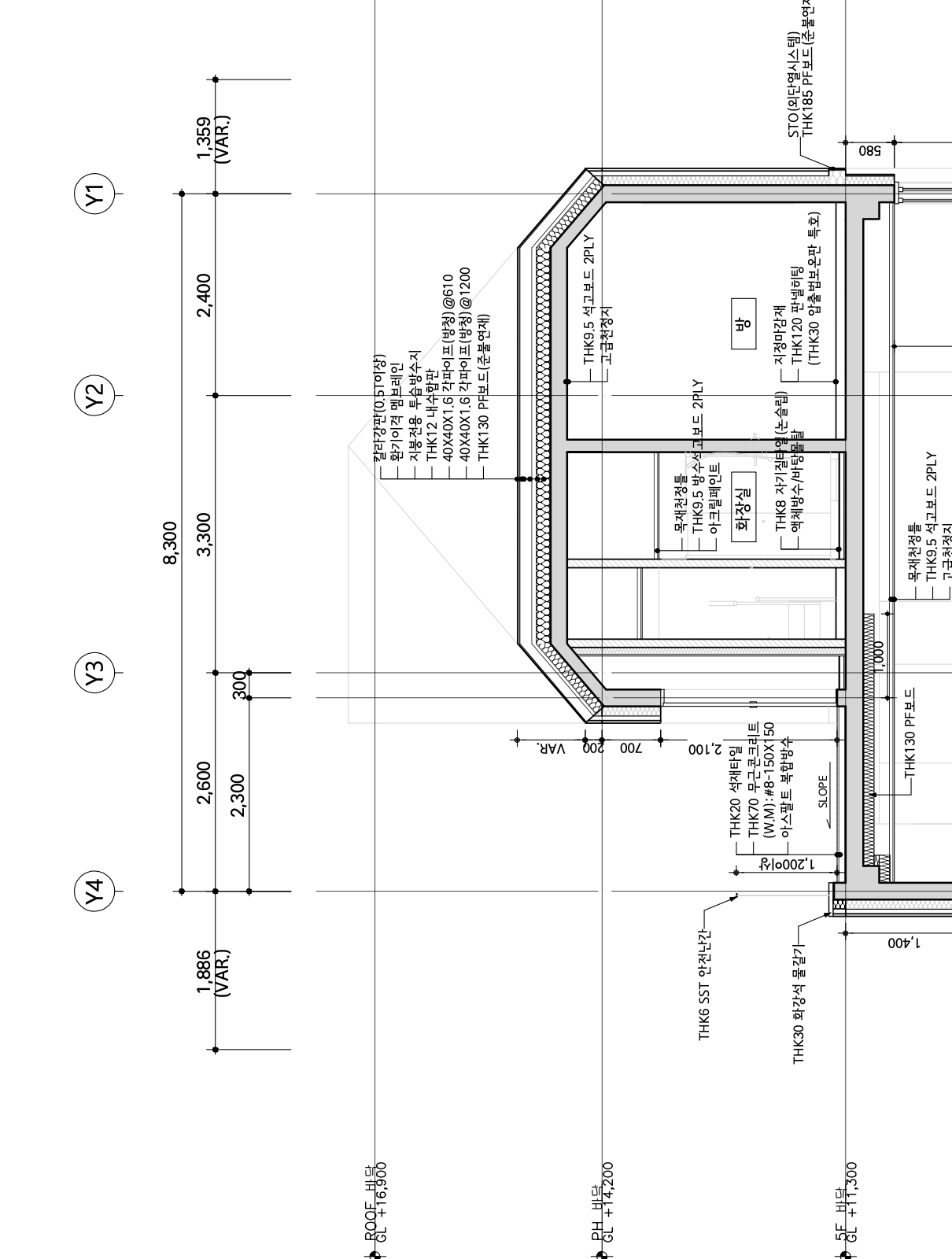
1. 역전지붕의 마감 끝선이 실내의 마감끝선보다 위로 올라갑니다.

최근 몇년과 같이 집중호우가 내리면 실내의 마감선이 역전지붕의 마감선보다 아래에 있기 때문에 물이 넘쳐 흘러들어올 수 있지 않을까 우려됩니다. 물론 턱을 더 높이면 되지만... 거주자들은 테라스로 공간을 인식하기 때문에 쉽게 드나들고 싶어 합니다. 

 

2. 압출법단열재 THK 200 (50+150) 적용과 일조사선의 갈등

일조사선 9m의 기준은 평지붕 마감끝선으로 대부분 주무관이 협의해줍니다. 그런데 압출법 단열재가 올라가면 마감선이 많이 늘어나기 때문에 2,3층의 층고가 낮아질 수 밖에 없는 것이 현실입니다. 환기배관, 에어컨 배관, 스프링클러(층수완화의 경우), 전열교환기등 엉키기 시작하면 천정고 2.3m 확보가 쉽지 않습니다. 그래서 저희는 지금까지 내단열의 한계점을 알면서 평지붕 내단열로 계획할 수 밖에 없었습니다. 혹시 역전지붕의 개념을 도입하면서 위의 문제를 해결할 수 있는 방법이 있을까요?

 

스크린샷 2021-09-14 오전 11.34.59.png

Comments

M 관리자 2021.09.14 13:19
외근 중이라 저녁에 답변 드리겠습니다 ~
10 신범석 2021.09.14 16:02
저도 고민하던 것이라, 댓글달아봅니다. (구체구배가 필수입니다.)
1. 대안A - 옥외부분과 실내부분의 구조체 레벨를 확실하 차이나게 않하는 이상,
              맨처음 설계시부터 건축주님께 출입창호높이는 1,800이라고 시작합니다. (턱)
              물에 의한 하자는 다른문제를 떠나, 최우선적으로 해결해야할 문제이기 때문입니다.
  대안B - 도면을 보면 페데스탈을 사용하셨는데요... 페데스탈 부분이 결국엔 배수로 입니다.
              (쇄석도 배수로역할을 하겠죠.)
              그렇기에, 계획배수구보다 1~2개정도 더 추가하던지, 크기를 키우는 방법이 있습니다.
            참조 : http://www.phiko.kr/bbs/board.php?bo_table=z3_01&wr_id=3038
                  (우수 배수구 크기 및 배수구 위치등은 관리자님의 자료 참조하세요.)
  대안C - 만약 페데스탈을 사용하지 않는다면, 창호앞부분에 폭300이상으로 해서,
              그레이팅을 설치하고, 우수드레인까지 OPEN배수로를 구성하는 방법이 있습니다.
2.  법적으로는 높이에 대한 완화조항이 없을거예요.
    그런데, 단열재두께는 둘다 같을거구요. 그럼 쇄석(페데스탈)높이로 인한 손해밖에 없을듯 한데요.. (천정속 구성을 고민하셔야 할 거예요. 필요에 따라 낮은 천정을 구성하여, 천정에 걸리는 배관을 우회한다든지 ....)
 
어떻게 보면, 지금까지 내단열을 하면서 천정속 배관을 위해 단열재파손에 대해 크게 생각지 않았기에, 시공사들도 많이 부담스러워 할겁니다.
G 류류류 2021.09.14 17:18
답변감사합니다 ^__^
현실적으로 배수구를 더 만들어서 물이 잘 흘러가게 해주는게 맞을 듯 하네요...
M 관리자 2021.09.14 19:55
일단 궁금한 것이 있는데요..
실외 슬라브를 다운하면.. 현실적으로 어떤 문제가 가장 걸리나요?
G 류류류 2021.09.14 21:03
현장소장님이 그냥 타설해버리는 경우가 좀 있고…하부에 보가 걸리는 경우가 종종 있는데 역시 이로 인해 배관이슈와 층고이슈가 항상 뒤따라옵니다
M 관리자 2021.09.14 21:46
그냥 타설.... ㅠㅠ
보가 걸릴 수는 있겠네요..

지금 도면의 전체를 알지 못하기에 죄송합니다만.. 추가 질문을 하나 드릴게요.

만약 슬라브의 두께를 300mm 정도로 하고, 보를 없앤다면.. 슬라브 다운이 가능할까요?
G 류류류 2021.09.14 22:27
제 얄팍한 지식으로는 가능할 것 같은데....이런건 항상 구조사무실에 물어보게 되더라구요
첨부자료로 현재 계획된 단면도 같이 올려드립니다
M 관리자 2021.09.14 23:04
애매하네요.. ㅎ
꽉 넣으셨네.. ^^

환기 배관만 어떻게 정리될 수 있다면 슬라브 두께를 300mm 로 키우고, 슬라브를 150 다운하면 얼추 될 것 같기는 한데.. 배수구 위치 잡기도 만만치 않네요.. ㅎ

너무 마음 고생하지 마시고, 이번엔 스터디 차원에서 고민만 하고, 다음 부터는 구조부터 풀면서 가는 것도 방법일 듯 합니다.^^
G 류류류 2021.09.14 23:30
평지붕 하부로 테두리보가 지나가면 역전지붕에서 배수구가 문제로 보이더라구요. 보 아래로 지나가자니 층고문제가 또 생기고... 현장에서는 배수구를 평지붕 옆 파라펫으로 그냥 뚫기도 하던데 이런 사례도 있을까요...?

(그리고 관리자님 이 늦은 시간까지 답변해주시고 정말 감사합니다 ^_____________________^)
M 관리자 2021.09.15 00:31
옆으로 배수구를 내고, 심플 버전의 역전지붕으로는 구성이 가능해 보이긴 합니다.
다만 열교 구간을 완전히 없앨 수는 없고, 내단열 보다 현저히 감소했다는 것에 만족을 해야 할 것 같습니다.
물론 시공사가 안 하겠다고 할 가능성도 높지만...
G 류류류 2021.09.15 11:04
기술자료의 역전지붕에는 단열재 - 투습방수지 - 배수판 - 부직포 - 쇄석으로 되어있는데 관리자님의 제안에는 투습지랑 배수판이 없는데 이는 '심플' 버전이기 때문에 생략된 층인가요? 투습방수지와 배수판이 생략되었기 때문에 단열재 위에 배수층 한 층이 생략된 것으로 보이는데 이렇게 해석하는게 맞는지 모르겠습니다..

그리고 쇄석 위에 석재타일은 각파이프를 그냥 쇄석위에 올려놓고 석재타일을 붙이면 되는거겠죠? 기술자료에는 페데스탈이 아니면 쇄석위의 건식데크 마감도 유효하다고 있어 질문드립니다.
M 관리자 2021.09.15 15:12
네.. 높이가 나오지 않아서 최소의 요구 구성으로 적어 드렸습니다.

쇄석 위에 그냥 까는 방식입니다. 우리나라에서는 익숙하지는 않지만, 조경에서 많이 사용하는 방식입니다.
G 길택수 2021.10.14 16:57
1.5년차에 이런 디테일을 생각한다는 것에 대해 칭찬드리며
다가구나 다세대는 업자와 거래하는게 상당히 많을 텐데
업자들은 감리가 봐서 확인하지 않는 이상 천장 내단열 220도 안맞추고 100으로 퉁치는 경우도 많고(천장고 확보)... 정북일조가 적용된다면 9M미만에 어떻게든 더 많은 실을 넣어야 해서 다가구 주택에 역전지붕 사실 꿈도 못꾸네요

정북일조 제한사항이 없는 땅이라면 (북쪽에 녹지가 있는경우) 층고를 높게 해도 상관이 없으니 이경우 한번 시도는 해볼 수 있겠지만 업자들이 과연 할지 모르겠네요
M 관리자 2021.10.14 20:18
그러게요.. ㅠㅠ
평지붕 내단열을 100으로 퉁친다는 것에 조금 충격받았습니다. ㅠㅠ
3 로유 2021.11.17 18:29
업자상대 방법으로 제가 생각한 방법은...
지식의 양과 목소리를 같이 키우면 이기더라구요...ㅠ
Category