역전지붕 방수 및 단열계획 관련 질문

설계/시공관련 질문

질문 전에 먼저 검색을 해주세요.

 

역전지붕 방수 및 단열계획 관련 질문

G mhmhmh 8 4,477 02.05 17:04

안녕하세요 서울 내에 연와조(90년도 준공) 단독주택 매수하여 리모델링(직영) 예정인 건축주 겸 건축사 입니다. 


협회 자료 등 많은 도움 받으면서 진행 하고 있습니다.


진행하는 와중에 역전지붕 관련된 사항과 단열계획 관련 질의사항이 있어서 문의 남깁니다.




1. 역전지붕, 방수 관련 사항

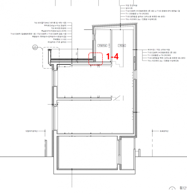
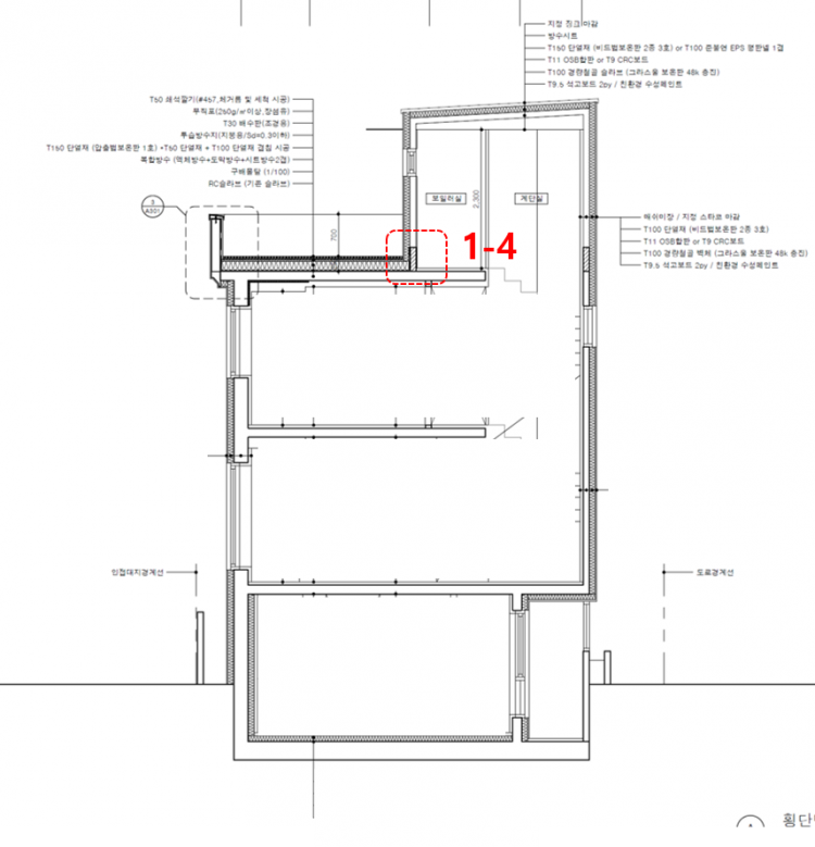
1.png

 1-1. 방수는 최대한 기밀하게 하고싶은 생각이 있어서, 액체방수, 도막방수, 그 위 시트방수 생각중인데 너무 과한 방식인가요?

 1-2. 방수 업체에서 역전 지붕 방식으로 공사해본 적이 없는 것 같아서 난색?을 표하고 있습니다. 시중의 역전지붕 시공 업체는 해당 면적이 좀 작은편이다보니까 단가가 꽤 높을 것 같구요.. 상세도, 시공방식도(협회)를 갖고 직접 시공(자재 직발주 및 인부 동원)해도 시공 난이도는 괜찮은 편인가요?

 1-3. 첨부된 상세도에는 표현 안되있지만, 배수드레인은 파라펫 측면으로 구성해야하는 상황인데, 패시브 협회의 디테일을 참고해보니 1차 배수와 2차 배수 나뉘는데 굳이 안나누고 투습방수지 레벨에서 측면배수만 해도 큰 문제 없을까요?

2.png

 1-4. 계단실은 옥상 슬라브 철거하여 신설할 예정입니다. 기존 슬라브 위에 경량 철골로 계단실을 만들 예정인데, 이 교차 부위에 방수가 취약할 것 같아서.. 일부 방수턱을 H 350~400정도 높이로 시멘트벽돌 조적으로 만들려고하는데 괜찮을까요???


2. 단열 관련 사항

3.png

 2-1. 파라펫 상세도 1~3번 중 1번,3번은 처마가 돌출된 부위라서 외단열을 다 감싸기에는 물량도 늘어날것 같은 느낌이라서 슬라브 상하부만 외단열을 하려고 합니다. 이 경우 열교가 일부 있을 수 있지만 다 감싸기에는 힘든 상황이어서 일부 내단열쪽에 보강만 할 생각입니다. (1번 상세도는 돌출길이가 길어 크진 않을 것 같습니다.) 열교에 너무 취약해보이는지 한번 의견 여쭙고자 합니다. 

 2-2.  파라펫 상세도-2번 관련. 옛날 벽돌로 된 집이라서 처마 부분에 장식적인 인방이 있습니다. 이 부분을 외단열 미장마감 공법으로 하고자 하는데, EPS부착 등이 해당 디테일 처럼 가능할 지 문의드립니다. AL플레이트를 일부 지지 후 사선벽면과 EPS단열재 부착, 일부 빈 구간에는 폼충진으로 가능할까요?



3. 기타사항

 3-1. 파라펫 벽체(난간벽)은 기존에 셋백되어있는 파라펫을 철거하고 새롭게 가장 바깥쪽 라인에 신설할 예정입니다. ALC블록을 사용하여 900정도의 높이를 만들 예정인데, ALC블록의 구조적인 성능과 이 부분에 매쉬미장을 한 후 마감을 할 예정인데 큰 무리 없을까요? (ALC블록이 경량이라서 구조적으로 난간 역할?? 사람이 기댔을 경우 넘어가진 않는 지 등이 궁금합니다.)

 3-2. 1500mm 정도 되는 담장도 ALC블록으로 진행할 경우 구조적으로 문제 없을까요?





이상입니다. 질문 내용이 좀 많은데 양해 부탁드립니다.

 

*그림 텍스트가 일부 깨져서 첨부파일로도 업로드 해놓았습니다.

 

감사합니다.


 


Comments

M 관리자 02.05 23:04
안녕하세요.

1-1. 방수는 과해 보입니다.
액체방수라는 것 대신에.. 요즘 방수재(?)로 소개되는 아크릴계무기질방수 (물방패 등)으로 바닥의 면을 잡고, 시트방수만 해도 무리는 없어 보입니다.

 1-2. 시공 난이도는 낮은 편입니다. 비전공자인 건축주도 혼자 할 수 있을 정도니까요.
https://www.phiko.kr/bbs/board.php?bo_table=z4_04&wr_id=15532
https://www.phiko.kr/bbs/board.php?bo_table=z4_04&wr_id=13994
https://www.phiko.kr/bbs/board.php?bo_table=z4_04&wr_id=13983
https://www.phiko.kr/bbs/board.php?bo_table=z4_04&wr_id=12659

 1-3. 그렇지 않습니다. 1차/2차 배수가 모두 있어야 합니다. 측면에서만 1/2차를 모두 한꺼번해 해결할 수도 있습니다.
https://www.jabjaje.com/goods/goods_view.php?goodsNo=1000000592

1-4. 계단실에 방수턱을 H 350~400정도 높이로 시멘트벽돌 조적으로 만드시는 것 괜찮습니다.

2-1. 파라펫 상세도의 경우 현실적 공사비에 맞추는 것도 중요하기에, 말씀하신 방법도 유효합니다. 적절한 내단열 보강이 대안이 될 수 있습니다.

2-2. 파라펫의 몰딩부분은 작업하시는 분의 손맛에 달려 있긴 하나, 기본적으로 가능하다고 볼 수 있습니다. 그러므로 지금처럼 도면을 유지하시고 현장 작업자와 협의를 해보시면 되실 것 같습니다.

3-1. 괜찮습니다. 다만 최상부 ALC 면에 홈을 파서 (전용 전동기구가 있습니다.) D10 철근을 넣고 몰탈로 마무리를 해주어야 합니다.

3-2. 담장도 같은 방법으로 됩니다만. 750mm 높이에 같은 요령으로 철근을 넣어야 하며, 두께는 최소 200mm 여야 합니다.  그리고 파라펫과 담장 모두 맨 하단은 발수블럭으로 하여야 하고요.

감사합니다.
G mhmhmh 02.06 10:36
답변 정말 감사합니다. 큰 도움 되었습니다.

추가적으로 아래 내용 질문 드립니다.

1-1. 말씀 주신 아크릴계 무기계 방수(물방패)는 제품을 혹시 알려주실 수 있으신가요?? 혹은 말씀주시기 어려우시다면,,

 1) https://www.jabjaje.com/goods/goods_view.php?goodsNo=1000000616

 2) https://smartstore.naver.com/pnbcommerce/products/10774309244?nl-query=%EB%AC%BC%EB%B0%A9%ED%8C%A8&nl-ts-pid=iIdMIwqo1e8ssPxvlA8ssssss2N-227262&NaPm=ct%3Dm6snlrs0%7Cci%3D0d86ebce7814f74c224d2107eea7117fa8a440ba%7Ctr%3Dsls%7Csn%3D499888%7Chk%3Da49507506b19ef119321dedbe8e0e33e244c6cf6

 위 두개 제품 중 2번 제품에 가까운건가요 ?

1-3. 해당 제품과 상세도는 참고했었습니다. 다만, 개인적으로 리모델링인 현장에서 현 상황에 보조배수구를 슬라브 매립을 할 수는 없는 상황이고, 수직으로 타공을 해서 내부를 거쳐서 바깥으로 수평으로 다시 타공을 해서 나가는 보조배수구를 만드는 것이 합리적인가 라는 의심이 들었습니다. 때문에 해당 제품을 단열제 상부가 아닌,  더 아래 레벨로 깊게 설치하여 시트방수 레벨에서 배수하는 시스템으로 1/2차 배수를 한번에 할 수 없을까 라는 생각이었는데 불가능할까요 ? (단열이 일부 깨질 수 있지만, 처마 돌출부위를 활용할 생각입니다.)
 - 위의 방법 혹은 혹은 참고 상세(*출처 : 티푸스코리아) 처럼 할 수 있지 않을까 하여 다시 여쭤봅니다.


3-1. 철근을 배근한다면 파라펫 높이 약 900mm 정도 되는데 두께는 150mm입니다. 해당 높이의 두께는 200mm까지 확보하지 않아도 괜찮을까요?

3-2. 담장의 두께는 건물 외벽과의 이격거리가 너무 협소한 상황이라 200mm는 확보하기 힘든 상황입니다. 혹시 100mm의 두께로 시공할 경우 큰 문제가 있을까요?? 혹은 100mm 두께, 1.5m 높이의 담장 시공 방식 중 다른 구조방식을 여쭤봐도 괜찮을까요? (경량철골 후 crc보드, 혹은 일반 시멘트블럭or시멘트벽돌 조적 등)



감사합니다!
G mhmhmh 02.06 11:07
3-1 관련 추가 질문입니다.

 - 홈파기 후 철근 설치는 ALC 파라펫 벽체의 최상단에 첨부 이미지 우측처럼 철근 보강을 말씀하시는 건가요? 혹은 좌측 이미지 처럼 코너 부분에 수직으로 타공 후 보강을 말씀하시는 건가요?
 - alc블록과 슬라브와의 접합은 몰탈로 조적하듯이 하면 될까요? 혹은 별도의 앙카작업이 필요할까요?

감사합니다!
M 관리자 02.06 23:09
1-1. 물방패가 제품명입니다.

1-3. 주배수를 하단까지 끌고 내려가는 것도 가능해 보이긴 합니다만.. 그보다 제가 말씀드린 방법은..
측면으로만 1,2차 배수를 끝내는 형태입니다. 즉 측면으로 두 개의 배수구를 내되, 위의 것이 1차배수, 하부가 2차배수입니다. 하부는 50A 관이면 가능하고요.
또한 구축건물이기에.. 기존에 이미 있던 배수구를 2차배수구로 이용을 하고, 단열재 상부측에 1차배수구를 새로이 타공하여 낼 수도 있습니다.

3-1. 두께는 200mm 여야 할 것으로 보입니다.
그리고 ALC의 수평철근은 오른쪽 사진과 같은 것을 의미했습니다.
수직 철근은 높이가 낮아 필요로 하지는 않습니다.  또한 다중이용시설이 아니기에, ALC와 슬라브 사이의 앙카 작업도 생략가능합니다.

3-2. 블럭조로 하시되, 1미터 간격으로 수직배근을 하여 몰탈을 채워 넣는 것이 유효해 보입니다. 수평으로는 맨 마지막 블럭 바로 아래에 수평 철근을 넣으시고요.
G mhmhmh 04.18 14:25
안녕하세요 지난 번 답변 정말 감사드립니다. 역전지붕 셀프시공 준비중에 있습니다.

첨부파일처럼 배수 방식을 진행하려고 합니다. 기존 옥상의 배수구가 50파이인 관계로 일반 스텐 루프드레인을 단열재 상부면에서 1차 배수로 이용을 하고, 50->35 pvc 레듀샤를 이용해서 기존배수구에 연결하여 기존 50파이의 관과 35파이의 관 간격 차이를 단열재 밑 2차 배수로 생각했습니다.

옥상 면적이 약 50제곱미터인데 배수구는 3개소가 있는 상황입니다.

감사합니다.
M 관리자 04.18 14:35
괜찮아 보입니다.
그리고 혹시 이 도면에는 없지만. 오른쪽에 이 옥상으로 가는 출입문 같은 것이 있나요?
G mmmhhh 04.18 15:24
의견 감사합니다. 관리자님. 옥상으로 가는 출입문 있습니다. 쇄석면으로부터 한 30정도, 바닥 골조로부터 300 방수턱이 있습니다.
M 관리자 04.18 15:32
알겠습니다.
비상 드레인을 말씀드리려 했는데.. 면적이 작아서 괜찮을 것 같습니다.
Category