아무것도 모르는 건축주입니다.

설계/시공관련 질문

질문 전에 먼저 검색을 해주세요.

 

아무것도 모르는 건축주입니다.

1 김종영 3 6,063 2013.03.10 21:55
올해 신축예정인 건축주입니다.
건축에대해서는 정말 아무것도 모르고있습니다.
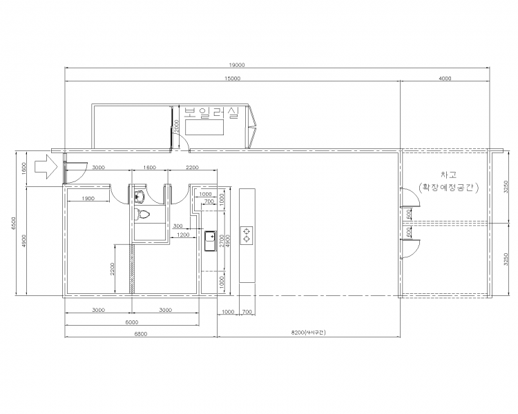
건축을 할려니 아무것도 모르고 있었어 공부를 할려고 찾다보니 여기를 발견하여 가입을 하고 처음으로 질문을드립니다. 첨부파일과 같이 단순 직사각형 구조입니다. 평수는 30평 이며 2~3년후 애기들이 크면 약 8평 정도 확장 예정입니다. 단열이 제일 우선시가 되구요. 난방은 기존에 사용하는 나무보일러로 바닥난방을 하며 태양열보일러를 이용하여 온수 및 펜코일연결하여 대류 난방을 할 예정입니다. 단열은 외단열이 좋은것으로 예상하여 외단열을 할려고하니 어디부터 공부해야할지 종류가 너무 많아서 질문을 드립니다. 

질문 1. 기초단열은 어떻것을 해야할까요?
질문 2. 외벽단열 어떻것을 해야할까요?
질문 3. 지붕단열(평지붕) 어떻것을 해야할까요?

우선 단열만 찾아볼려고합니다. 추천을 해주시면 그쪽으로 우선 집중 공부를 해볼려고합니다.
이상 잘 부탁드립니다.

Comments

M 관리자 2013.03.11 08:22
안녕하세요..

조금 외람된 질문입니다만, 말씀하신 것을 공부하시려는 이유를 여쭈어 봐도 될런지요? 직영설계/공사를 하시려고 하시는 것인지 궁금합니다.
두서없이 이런 질문을 드리는 이유는 혹시 지금부터 공부하셔서 올해안에 착공을 하실 것이라면 .. 한가지 예를 들어드리겠습니다.

통상적으로 건축계통의 전공은 학교 2~5년, 실무 5~7년이상 입니다. 즉 최소 9년을 공부를 하여야 하는 직업인데, 여기 게시판을 보시더라도 그런 경력을 가지고 있는 건축사나 시공사조차 일부는 어처구니없는 도면을 그리고, 짓고 있습니다.
즉, 집을 독학으로 지으실 수도 있겠지만, 10년 후에 쓰러져 가는 집을 목표로 하시는 것이 아니시라면 상당히 많은 시간을 할애해야 한다는 뜻입니다.

말씀하신 질문의 답을 몇 줄로 간단히 드릴 수도 있겠습니다만, 그렇다고 해결되는 것은 거의 없을 것입니다.
그럼에도 불구하고 질문을 주셨으니 답을 드리는 것이 예의일 듯 하여 세가지 방향으로 답을 드리겠습니다.

1. 진심을 담은 답변입니다.
주변의 전문가와 상담을 하십시요. 저희 협회 소속 설계사무소나 시공사와 하셔도 무방합니다. 연락처는 상단의 "정회원소개"에 있습니다. 어느 분께 가셔도 친절히 상담해 주실 것입니다. 단, 전화로 상담을 하지는 마십시요. 전화 상담은 서로가 힘들어질 뿐입니다. 약속을 잡고 찾아가시는 것을 권해드립니다.

2. 정답에 가까운 답변입니다.
기술자료실의 단열재에 관한 글을 읽어 보시길 권해 드립니다.
아래 링크입니다.
http://www.phiko.kr/bbs/board.php?bo_table=z3_01&wr_id=7
http://www.phiko.kr/bbs/board.php?bo_table=z3_01&wr_id=147
http://www.phiko.kr/bbs/board.php?bo_table=z3_01&wr_id=456
http://www.phiko.kr/bbs/board.php?bo_table=z3_01&wr_id=148
입니다.

3. 도움이 되지 않을 답변입니다.
기초단열 : 압출법단열재 사용
외벽단열 : 비드법단열재 사용
지붕(평지붕)단열 : 압출법단열재 사용
이고, 계신 지역의 법정단열 두께의 두배 정도 하시면 좋습니다.

법정단열재 두께는 아래의 링크를 확인하십시요.
http://www.phiko.kr/bbs/board.php?bo_table=z3_01&wr_id=347

귀하신 시간 동안 올리신 질문에 토를 달아 죄송합니다.
추가 질문이 있으시면 다시 올려주십시요.

감사합니다.
G 김종영 2013.03.11 12:37
답변감사합니다. 직접 설계하고 직영으로갈것은 아닙니다.
전문가에게 의뢰를 할 것이면 저는 아무것도 모르고 설명을 듯는것보다 잠깐이라도 보고 들으면 이해가 쉬울것같아서입니다. ^^
창녕지역이라 정회원님 한분이 계시네요. 이번주내로 한번 찾아가 볼려고합니다.
M 관리자 2013.03.11 12:44
아. 정말 다행입니다.
아무쪼록 좋은 결과 있으시길 기원하겠습니다.
감사합니다.
Category