지금 저희 현장에 적용된 방수가 적절할까요? ft. 비노출 우레탄 도막 VS 탄성도막 (마페이 아쿠아디펜스)

설계/시공관련 질문
질문 전에 먼저 검색을 해주세요.

 

 


지금 저희 현장에 적용된 방수가 적절할까요? ft. 비노출 우레탄 도막 VS 탄성도막 (마페이 아쿠아디펜스)

G 루키루키 9 229 11.21 08:36

지금 저희 현장에 적용된 방수가 적절할까요? 

ft. 비노출 우레탄 도막 VS 탄성도막 (마페이 아쿠아디펜스)

 

우선 늘 좋은 정보 얻어갈 수 있어서 항상 감사 드립니다. 

 

저희 현장은 RC 신축 현장이고, 저는 건축주 입니다. 

4번째 현장이다보니 건축에 대해서 아주 문외한은 아닙니다. 

 

이번엔 방수에 대한 고민입니다. 

협회에서 얻은 정보 덕분에 이번 현장은 전부 이중배수를 적용하여 진행합니다. 

그런데 이번에는 방수제가 고민입니다. 

 

저희 현장에 방수가 필요한 곳은 총 4곳입니다. 현재 적용되어 있는 방수는 아래와 같습니다. 

1. 옥상바닥

   - 콘크리트+비노출 우레탄도막방수+시트방수+부직포+무근+콘크리트 폴리싱 마감

  *사용여건상 역전방수는 어려워 부득이하게 내단열로 진행하는 현장입니다.

2. 수영장 & 자쿠지 욕조 (상시담수상태)

   - 콘크리트+탄성도막방수 (마페이 아쿠아 디펜스 제품+코너보강) 2회 + 타일마감

3. 수영장과 접한 테라스(오버플로우)

   - 콘크리트+비노출 우레탄도막방수+시트방수+부직포+무근+페데스탈 마감

4. 샤워부스 바닥

   - 콘크리드+탄성도막방수 (마페이 아쿠아 디펜스 제품+코너보강) 2회+ 타일마감 

 

제 지식으로는 우레탄도막방수가 탄성도막방수 제품보다 신장력이 우수하여
(아무리 마페이 제품이 우수하다 한들) 면적이 넓어 구조체의 변동이 생길만한 곳은 

비노출 우레탄+시트방수를 선택하였고, 실질적으로 담수를 하거나 그에 가까운 사용여건이 있는 수영장, 자쿠지, 샤워부스는 타일의 탈락이 우려되어 우레탄+시트방수 대신 마페이 도막방수를 선택하였습니다. 

 

제 선택이 맞은 선택인지 너무 궁금하여 여쭤봅니다. 

저희 설계사무소는 현재보다 훨씬 성능이 낮은 방수를 적용하여 그나마 제가 그동안 공부한 지식을 바탕으로 수정을 요구해서 나온 상태입니다. 

 

지금대로 시공을 해도 좋을지, 아니면 더 나은 선택이 있을지 고견을 구해봅니다.

 

늘 감사드립니다.


Comments

M 관리자 11.21 09:14
안녕하세요.
먼저 질문이 있는데요.
수영장은 외부인가요? 실내인가요? 실내라면 수영장 아래에 다른 실이 있는 건가요?
G 루키루키 11.21 10:35
총 3층 건물중에 수영장은 3층에 있고, 2층에 방이 있습니다. 마음같아서는 수영장 아래 이중 슬라브를 하고 있었지만 건축비 이슈로 이중슬라브는 못하게 되었습니다 ㅠㅠ
M 관리자 11.21 13:03
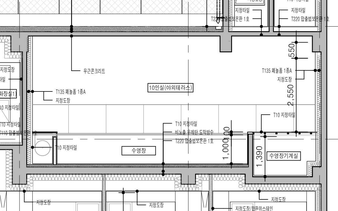
그럼.. 해당 수영장이 표현된 부분 단면도를 올려 주실 수 있으실까요?
G 루키루키 11.21 13:10
명기된내용은 무시하시고, 단면만 참고 부탁 드립니다.
수영장 외에 다른 부분들은 어떨까요?
M 관리자 11.21 14:43
감사합니다.

1,3. 옥상바닥
내단열을 하더라도 무근콘크리트를 치지 않는 것이 좋습니다. 혹은 치더라도 최악을 피하는 방법이 아래 글의 중간 쯤에 [비노출방수를 위한 누름(무근)콘크리트 시공] 에 있으니, 한번 보시는 것이 좋겠습니다.
https://www.phiko.kr/bbs/board.php?bo_table=z3_01&wr_id=3038

2. 수영장 & 자쿠지 욕조 (상시담수상태)
아쿠아디펜스, 우레탄방수 등의 제품은 상시 담수가 가능한 제품은 아니닙니다. 이른바 가수분해현상 때문에 방수층이 버티질 못합니다. 그래서 수영장에는 이런 류의 제품을 사용할 수 없으며, 현실적으로 사용가능한 제품은 크게 세가지입니다.

가. 무기계도막방수 : 시카 시카라스틱 1K
나. FRP 방수
다. 폴리우레아 방수

그러므로 이 중에서 하나를 골라서 하되, 수영장은 타일의 뒷면에 빈곳이 없이 전면접착을 해야 합니다. 그러므로 구조체에 한번 미장 작업이 선행되어야 합니다.
https://www.phiko.kr/bbs/board.php?bo_table=z3_01&wr_id=7056
G 루키루키 11.21 20:51
답변 감사합니다. 혹시 말씀주신 폴리우레아/사키1K/FRP 이 셋중에서 타일접착성이 가장 우수한게 무엇일까요? 최종마감이 타일이다보니 타일이 탈락될까 그게 걱정입니다.

옥상은 인원이 경우에따라 70-100여명이 동시에 올라가는 하중이 제법 많이 발생하는 상황이라서 바닥의 꿀렁이 때문에 내단열을 선택하게 되었습니다.

하자발생시 무근을 걷어내는게 큰일이라는 사실을 인지하고 있어서 원래는 페데스탈로 시공하려고 했습니다만, 많은 인원이 동시에 활동시 페데스탈  다리가 움직이면서 방수층을 찢을수 있는 가능성이 높아서서 부득이하게 무근을 했습니다만.
첨부 이미지와 같이 파라펫 끝에 조적으로 공간이 일부 있는데 파라펫 균열을 막을 수 있는 완충역할을 할까요?

정말 방수떄문에 많은 고민을 했는데, 일단 옥상에 많은 인원이 동시에 올라가는 경우가 빈번하게 발생하기 때문에 꿀렁임을 막기위해서 단열재를 밑으로 내렸습니다. 자갈을 깔기에도 바퀴달린 방송장비들이 이동을 해야해서 자갈도 불가합니다. 마음같아서는 역전방수를 하고 싶습니다만, 지금 상황에서 최선의 방법이 무엇일까요?
M 관리자 11.21 23:13
타일 마감이어야 한다면 시카라스틱 1K여야 합니다. 나머지는 수지계라서 타일 접착이 매우 어렵습니다.
안되는 것은 아니지만, 비흡수면프라이머를 바르고 에폭시계 접착제를 사용해야 합니다.
FRP 는 수영장에서 자주 보이는 파란색 그 자체의 마감이라 타일을 추가하지 않아도 된다는 장점이 있습니다.

옥상의 경우, 10mm 의 중사를 사용하고 그 위에 석재타일 마감을 하면 아무리 많은 사람이 올라타도 문제는 없습니다.
즉 지금 구성에서
방수 - 300g 부직포 - 중사 - 석재타일 20T 로 마감을 하시는 것이 최선입니다.
G 루키루키 11.21 23:26
늦은시간임에도 답변 감사합니다.!! 수영장과 욕조는 그렇게 시카 1K로 수정하도록 하겠습니다!!

옥상은 아직도 역전방수에 대한 미련이 남아 있는데, 혹시 역전방수의 FM대로 시공하면, 방수 -> 단열재 -> 투습방습지 -> 배수판 ->부직포 ->쇄석 으로 쇄석이 마지막 마감일 경우, 위에서 말씀드린 인원이 올라갔을때 단열재의 꿀렁거림이 발생하지는 않을까요? 단열재의 최대한 밀착성을 위해 슬라브에 휘니샤는 돌릴 예정입니다.
M 관리자 11.22 00:01
도면에는 "시카라스틱 1K 3회 도포" 라고 적으셔야 합니다.
그리고 당연히 알고 계시겠지만, 지금 도면에는 모서리가 직각으로 표현되어 있습니다. 이 모서리는 모두 (실내이므로) 10mm 이상의 둔각으로 처리되어야 합니다. 모서리 방수부직포 보강이 되어야 하고요.

피시셔로 돌릴 경우 단열재의 꿀렁임은 전혀 없습니다. 만약 석재타일20T 마감일 경우 하부는 쇄석보다 10mm 중사로 하는 것이 작업성에 훨씬 좋을 거여요.
Category