안방 결로 하자 문의 (일반인)-너무나 어이가 없습니다.

하자관련 질문/사례
질문 전에 먼저 검색을 해주세요.


안방 결로 하자 문의 (일반인)-너무나 어이가 없습니다.

안녕하세요.

일반인으로 피코네 유튜브 애청자 입니다.

 

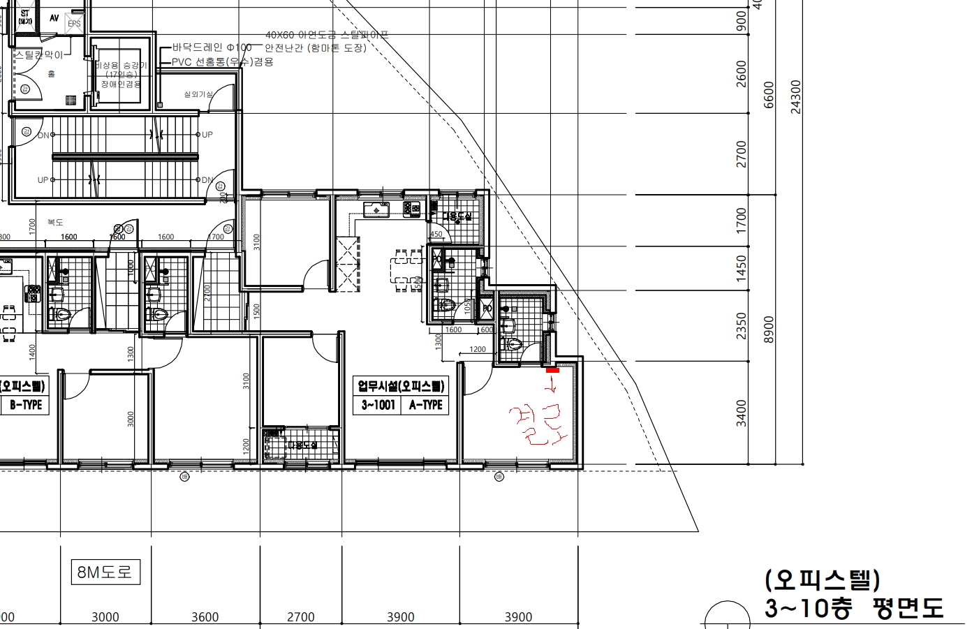
이번에 군포에 건축된 오피스텔에 주거용으로하여 입주하게 되었는데 화장실외벽과 안방 실내측이 만나는 부위에 단열재 시공이 안되어서 물이 줄줄 흐르는 결로가 발생 하였습니다. 제가 1호 라인에 사는데 위층 아래층 할것 없이 1호라인은 15층까지 모두 결로가 발생하였습니다.

 

해당 부위가 단열재로 시공이 안되어도 되는 조건인지가 궁금 합니다.

 

테스트결과 안방 실내온도를 20도 이하로 낮게 하거나 창문을 1cm정도 열고 자면 결로가 발생하지는 않습니다. 하지만 부부가 생활하는 안방인데 너무 추워서 안방이라고 할수가 없는 상황입니다.

첨부파일의 동영상 보시면 물이 줄줄 흐르는 영상 확인 가능합니다.

낮에는 잘 발생하지 않고 거의 밤에 발생합니다. 결로는 사는 사람이 창문열고 환기 시키면서 잘 관리하며 살아야 한다는 건설업체 하자담당자의 말이 가슴에 비수를 꽂는군요.

집 현관문을 열고 들어서면 습기 머금은 벽지 냄새가 진동을 합니다.(썩기 직전의 종이 냄새같은...)

 

건설 업체에서는 에너지원에서 도면 승인을 받은것이라 아무런 문제가 없다고 하는데 어떻게 대응을 해야할지 모르겠습니다. 건축관련도면인데 에너지원에서 승인한다는 것도 좀 이상하구요..

신축이라 2~3년동안은 시멘트가 물기를 머금고 있기 때문에 결로가 더 잘 발생하니 2~3년 잘관리하면서 살아보라고 하는데 "우리나라 건축업자들의 마음가짐이 모두가 다 저런가?" 하는 생각이 들었습니다.

참으로 황당하더군요. 사람이 살수 있는 집을 짖는다는 마음이 아니라 싸게 지어 비싸게 팔어 먹고 결로는 사는 사람 잘못이다라고 외치는 건축인들이 너무나 혐오 스럽습니다.

 

 또한 창호란 창호에는 모두 물이 줄줄 흐릅니다...

 

군포-개성오피스텔.jpg

 

Comments

M 관리자 2022.02.08 01:51
안녕하세요.

심하긴 하네요..
우선 문의하신 모서리의 처리는 단열재가 있어야 하는 곳이 맞습니다. 다만 현행 법에 의해서 20~30 정도의 두께를 가진 최소한의 단열조치만 요구되고 있습니다. 이 정도의 단열도 없다면 잘못된 것이 맞습니다.

나머지 결로에 대한 것은 아래 글이 딱히 들어 맞는 것은 아니지만, 습기와 관련된 내용만 보셔도 도움이 되실 것 같습니다.
http://www.phiko.kr/bbs/board.php?bo_table=z4_06&wr_id=13
G sahaya 2022.02.08 09:54
건설회사에서 자기네는 건축도면대로 건축했기 때문에 아무런 잘못이 없다고 합니다.
건축도면은 어디서 받았냐고 하니까 그건 말해줄수 없다고 하네요.
시청에 도면 청구해서 보면 현재 건축되어 있는것과 똑같이 되어 있으니 마음대로 하라는 식입니다.
시청에서 도면은 받아 볼수 있겠는데 그다음에 관공서 같은 곳에서 잘못된 도면이라고 해석을 해줘야 될것 같은데 관련된 국가기관을 알수 있을까요?...
매일아침을 바닦 밀대에 수건 조립해서 결로발생한 곳의 물을 닦는것으로 시작하고, 결로를 없앨려고 창문을 열고 자면 하룻밤에 추워서 3번은 잠에서 깨기때문에 피곤해서 일상생활을 할수가 없습니다.
M 관리자 2022.02.08 10:16
아마도 링크해 드린 글을 아직 보지 않으신 것 같습니다만....

협의가 어려우면, "국토부 하자분쟁조정위원회"에 안건을 올려서 조정을 받을 수 있습니다.
다만 그 전에 그 곳에 최소한의 단열 조차 되어 있지 않은 것이 맞는지 확인해 보셔야 할 것 같습니다.
G sahaya 2022.02.08 10:22
창문까지는 바라지도 않습니다.
안방 벽에서 흐르는 물만이라도 해결이 되었으면 좋겠습니다. 저도 문제 이지만 이 건설 업체가 지금도 짖고 있는 오피스텔이 근처에 2동이나 되는데 똑같은 피해자가 생긴다는데에 대해서 꼭 집고 넘어가고 싶은 심정입니다. 첫번째 답변해 주신것처럼 건축법상 내벽에 최소한의 단열재가 시공되어야 하는게 맞다면 정식적으로 관공서를 알아보려고 합니다.
M 관리자 2022.02.08 10:46
그 전에 링크해 드린 글을 먼저 보시어요.
Category