현관 및 테라스 열교 문의

설계/시공관련 질문

질문 전에 먼저 검색을 해주세요.

 

현관 및 테라스 열교 문의

G 건축주 12 5,513 2020.09.22 16:44

안녕하세요. 생애 처음으로 주택을 건축을 준비하고 있는 건축주 입니다. 

 

개략적인 구성의 다음과 같습니다.

 

1)골조 RC조 

2)외벽단열 : 비드법 단열재 200mm 외단열 기초단열 : 100mm 압출법 보온판 

3)외벽마감 스타코

4)지붕 : 열교차단 프레임- 그라스울 250mm-징크마감

5)창호 : 독일식 시스템 창호(3중유리)-창호 외측 블라인드

 

건축을 준비하면서 패시브 협회 홈페이지를 통해 많은 도움을 받았습니다.

현재 설계회사나 시공사가 패시브 건축에 경험이 많은 곳은 아닌 관계로 입면을 최대한 단순하게 하고 검증된 자재와 공법을 사용하여 건축을 진행하려고 합니다.

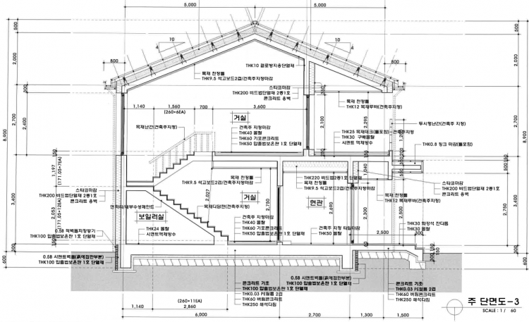
그러나 제가 건축에 문외한인 관계로 현관 개구부나 테라스 부위의 열교가 발생하는 부분에 대해서는 해결 방법을 고민하고 있으나 정답을 찾지는 못하고 있습니다. 첨부한 단면도에서 테라스 위쪽의 슬라브 지붕은 삭제하였으며 테라스 바닥은 역전 방수를 하려고 합니다.

그러나 현관 개구부바닥과 계단은 기초와 연결되어 있고 현관천정은 테라스와 연결되어 있는데 이 부분을 어떻게 처리해야 할지 고민중입니다. 전문가 분의 고견을 부탁드립니다.

 

 

Comments

1 질문하는사람 2020.09.22 17:57
비드법2종 1호에 외단열미장 안될텐데용..
M 관리자 2020.09.22 17:59
안녕하세요.
평면을 봐야 겠지만요. 2층 발코니가 좌우측으로 실이 있는 막힌 면인가요? 아니면 좌우로 다 뚫린 공간인가요?
G 건축주 2020.09.22 18:03
네. 단열재는 수정하도록 하겠습니다,
2층 발코니는 좌우로 막혀 있습니다.
M 관리자 2020.09.22 23:20
다른 답변을 하느라 조금 늦었습니다.

번호 순서대로 나가겠습니다.
M 관리자 2020.09.22 23:27
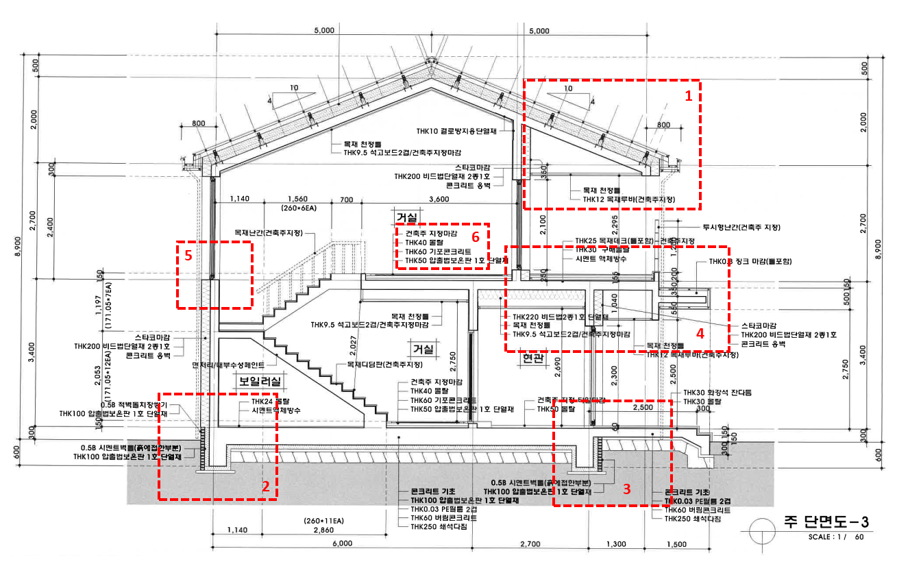
발코니 처마가 면적 때문이 아니고, 또 없애는 것이 너무 아쉽다면, 콘크리트 틀이 아닌 목재틀로 가능합니다. 혹은 티푸스 프레임의 강도가 워낙 좋아서. 3미터가 안되는 정도의 거리는 티푸스 프레임을 기준으로 마감을 해도 될 것 같습니다. 강도는 티푸스를 늘리면 되고, 아무리 많이 늘려도 콘크리트 구조보다는 훨씬 저렴해 보입니다.
즉 아래 와 같습니다.
M 관리자 2020.09.22 23:51
2. 그림의 기초는 비용이 상당히 많이 추가되는 방식입니다. 기초를 두 번에 걸쳐서 시공되어야 하기 때문입니다.
기초 하부를 사선으로 치고, 바닥을 내단열로 하는가..
아니면 협회 표준주택처럼 되메우기용 EPS 를 깔고 하는가 입니다.

이 부분은 아래 글을 참고 하시면 되실 것 같습니다.
http://www.phiko.kr/bbs/board.php?bo_table=z3_01&wr_id=74

앞 부분의 구조내력 관련 계산은 그냥 넘어가시고, 중간 이후 부터 보시면 되십니다.

PS. 기초의 테두리보 하부에는 단열재를 깔 수 없습니다.
M 관리자 2020.09.22 23:57
3. 이 부분은 기초를 분리하시면 됩니다. 계단은 생활하중만 걸리므로 구조적인 문제는 없습니다.
단열재와 바닥의 화강석이 바로 붙게 되는데... 괜찮습니다.
M 관리자 2020.09.23 00:03
이 부분은 슬라브 다운이 되어야 합니다.
왜 그런지는 아래 영상에 있습니다.
https://www.youtube.com/watch?v=LzVC8x8kfEs

방수 상부 외단열 공법에 대한 글은 아래 내용에 있습니다.
글을 보시면 아시겠지만, 목재 데크 보다는 페데스탈데크가 보기도 좋고, 가격도 더 저렴합니다. 유지보수 비용은 물론 훨씬 적게 들구요.
http://www.phiko.kr/bbs/board.php?bo_table=z3_01&wr_id=3038
M 관리자 2020.09.23 00:05
5. 창호 하단에 빗물받이가 있어야 합니다.
외단열미장마감에서는 뺄 수 없습니다.
빗물받이가 무언지는 아래 글에 있습니다.
http://www.phiko.kr/bbs/board.php?bo_table=z3_01&wr_id=567
M 관리자 2020.09.23 00:08
6. 애매하기는 하나, 기포와 단열재의 순서가 바뀌었습니다.
기포의 의미는 바닥의 평활도를 유지하려는 목적이 있습니다. 구조체 바닥은 꽤 단차가 있기 때문입니다. 거기에 단열재를 깔면 수평 유지가 어렵기 때문에 기포콘크리트를 치면서 바닥면을 고르고자 함입니다.
만약 바닥면의 평활도가 좋다면, 기포콘크리트는 없어도 괜찮습니다.
여기에 대한 글은 아래에 있습니다.
http://www.phiko.kr/bbs/board.php?bo_table=z3_01&wr_id=3118
M 관리자 2020.09.23 00:11
건축사가 패시브를 모르는 것은 상관없습니다.
이미 전문가 이므로, 올려 드린 링크의 글을 쉽게 이해하실 것이고, 적용은 더욱 쉽게 하실 것입니다.

그리고 적어 드린 것도, 패시브하우스를 하자는 것이 아니라, 누수를 미연에 방지하고자 하는 것이니, 이는 선택의 범위에 있는 것도 아닙니다.
G 건축주 2020.09.23 21:31
상세한 답변에 감사드립니다. 건축사분과 상의해서 현장에 적용할 수 있도록 하겠습니다.
Category