노출콘크리트 단면상세도

설계/시공관련 질문

질문 전에 먼저 검색을 해주세요.

 

노출콘크리트 단면상세도

1 쨩쨩맨 44 46,741 2020.06.17 07:12

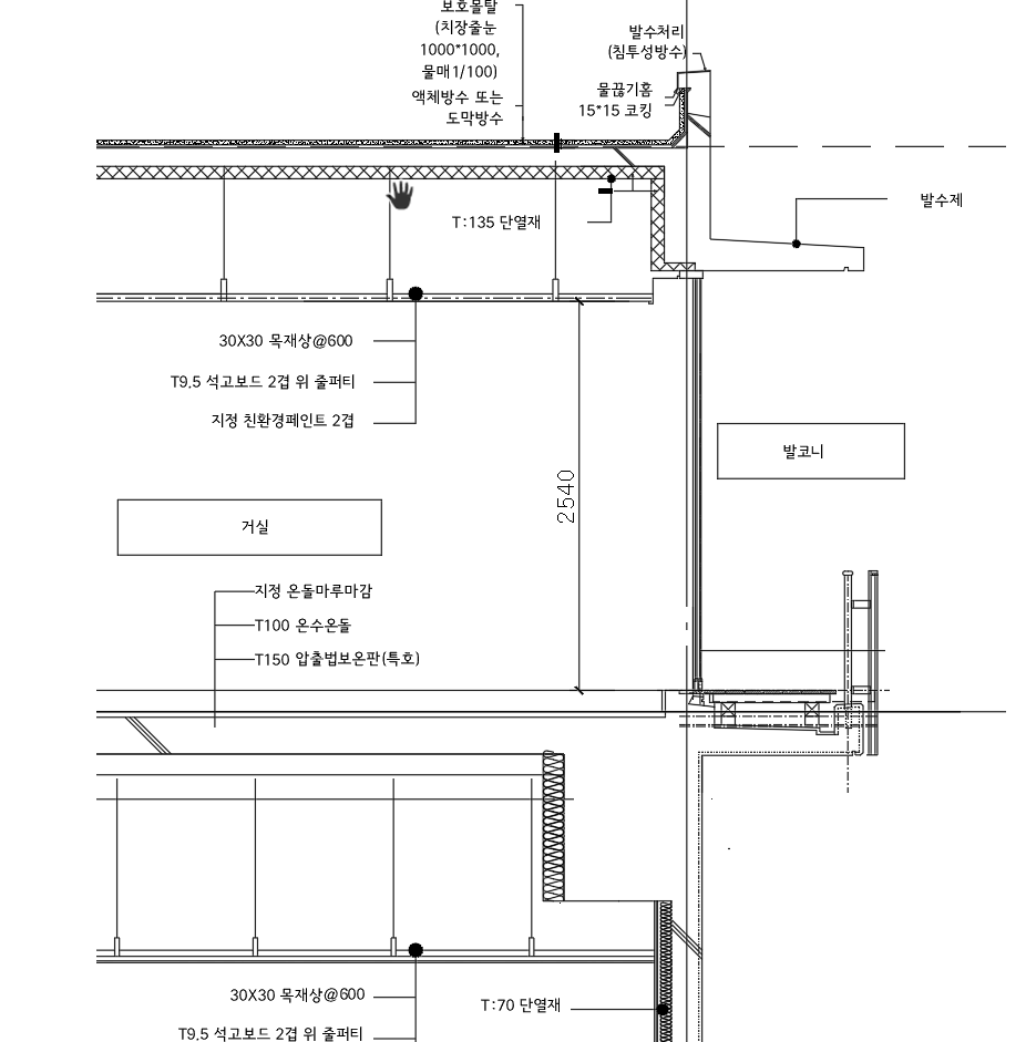
노출콘크리트로 내단열로 계획하였을 때 6-7층 단면 상세도를 보기와 같이 그렸는데 여기서 방습과 단열이 맞는건지 어디에 들어가야하는건지 여쭙고 싶습니다 ㅠㅠ 또한 

발코니 부분에 배리어 프리 +유리 난간 발코니로 하면 단차를 없앨 수 있다고 하여 위와같이 그렸는데 이 같은 경우 배수나 단열은 어떻게 단면에서 처리해야하는지 여쭙습니다

그리고 6층 바닥같은 경우 우드플로링 즉 이중바닥으로 하게 된다면 단열은 어떻게 해야하는지요? 

꼭 답변 부탁드립니다 ㅠㅠ감사합니다

Comments

1 쨩쨩맨 2020.06.17 08:23
또한 평지붕 파라펫같은 경우 내단열말고 외단열로 돌리는게 나은지요?
M 관리자 2020.06.17 19:34
몇가지 의문사항을 포함한 내용입니다.

1. 우선 내단열의 경우 열교차단 단열재의 길이는 1미터까지 입니다.

2. 바닥의 구성은 이해를 하지 못했는데요.. 본문에 적어 주신 우드플로링 이중바닥이라는 것과 연계된 것 같은데, 이 구성이 구체적으로 어떤 것인지를 모르겠습니다. 좀 더 자세히 구성을 적어 주시던가, 샘플 링크라도 주셔야 할 것 같습니다.
도면에서는 "100mm 온수온돌"에서 왜 100mm 가 필요한지도 잘 모르겠습니다. 이 것을 포함하여 알려 주시어요.

3. 지붕의 액체방수는 꿈도 꾸지 마시어요. 도막방수 또는 시트방수여야 합니다. 그리고 그 상부의 보호몰탈 두께가 나와 있지 않는데요. 이 것도 담당 건축사에게 물어 보시면 될 것 같습니다.

4. 지붕 파라펫의 경우 (디자인 의도와 상관있기도 하나) 금속 두겁을 씌우는 것이 여러모로 좋을 것 같습니다.
M 관리자 2020.06.17 19:34
평지붕의 경우 아래와 같이 역전지붕 구성이 가능합니다.
이 것은 선택의 문제이므로, 담당건축사와 협의가 필요해 보입니다.
1 쨩쨩맨 2020.06.18 10:54
자세한 답변 정말 감사합니다. 말씀을 듣고 위와 같이 역전지붕으로 변경, 그리고 베란다 부분도 변경하였는데요, 여쭤보고싶은게 역전지붕으로 변경하다 보니 옆쪽 단열을 어떻게 해야할지 모르겠습니다ㅠ 내단열과 어떻게 연결하는지 또한 발코니부분의 단열은 어떻게 계획하는게 나은지요?
그리고 루프 드레인의 위치와 선홈통의 위치도 이렇게 가능한지 여쭙습니다.. 캐노피가 밑에 있는지라 어떻게 놓는게 맞는것인지 모르겠습니다.
마지막으로 결로방지단열재를 사용하도록 했는데 1m까지 간다는 말씀이 저 두께로 1m까지 간다는 말씀이신지 아니면 150정도의 두께로 1m까지 간다는 말씀이신지 (옥상층, 아래층 (5층)포함
여쭙고싶습니다. 항상감사합니다
1 쨩쨩맨 2020.06.18 14:07
하나더 여쭙습니다. 창호부분에 열교 때문에열교차단제를 쓰려고하는데 정확히 어느부위에 열교차단제가 필요할까요? 그리고 단열과 기밀을 최대한 높이고자한다면 저 단면도에서 어느부분을 더 채워양할까요?
M 관리자 2020.06.18 14:20
답변의 깊이를 정하기 위해서 질문이 있는데요.
건축주신가요? 아니면 건축사사무소 직원분이신가요?
M 관리자 2020.06.18 21:34
알겠습니다. 직원이시라면 우선 소장님이 부재 중인지 궁금합니다만.. 질문에 집중하겠습니다.

1. 두겁 부분은 위에 올려 드린 그림을 찬찬히 보시면 아시겠지만, 파라펫을 ㄱ자가 아닌 일자로 핀 다음, 위쪽까지 끌어 올려야 합니다. 지금과 같은 방식은 70년대 방식이어요.
두겁은 "칼라강판 평이음"이 도면에 적혀야 하며, 형태와 경사에 대해서는 아래 글을 참조하셔요.
http://www.phiko.kr/bbs/board.php?bo_table=z3_01&wr_id=556

2. 난방배관과 방통몰탈, 기포콘크리트에 관한 내용은 아래 글을 참조하셔요.
http://www.phiko.kr/bbs/board.php?bo_table=z3_01&wr_id=3118

3. 프레임과 구조체, 그리고 마감이 만나는 디테일(이 아니더라도), 확대된 도면을 올려 주셔야 할 것 같습니다. 그래야 디자인 의도를 읽을 수 있겠습니다.
다만, 주거시설에 알루미늄프레임의 창호는 피하는 것이 맞습니다. 결로를 피할 수 없기 때문입니다.
M 관리자 2020.06.18 21:35
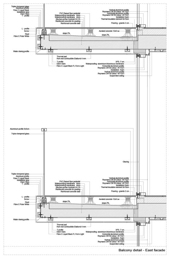
4. 철재난간은 발코니의 상부가 아닌, 외측의 측면에서 고정되는 것이 기본적인 디테일입니다. 지금처럼 하면 방수층, 마감 등등과 여러가지 불합리한 면을 피할 수 없기에, 훨씬 비싼 디테일이 요구됩니다.
M 관리자 2020.06.18 21:37
기타 역전지붕에 표기해야할 치수는 적어 드렸으며, 결로방지단열재의 폭이 1미터가 되어야 한다는 뜻이었습니다.

창호 주변 기밀은 PVC 프레임으로 변경이 된 후의 확대 도면은 올려 주시면 그 때 논의가 가능할 것 같습니다.
1 쨩쨩맨 2020.06.19 01:34
자세한 답변 감사드립니다. 말씀하신걸 바탕으로 수정하였습니다. 하지만 루프드레인의 위치, 배수가 채양이있는 발코니부분에서는 어떻게  될까요? 노란색 동그라미친부분들을 어떻게 처리해야할 지 모르겠습니다. 또한 발코니부분의 단열은 내외부를 어떻게 처리해야하나요? 노출콘크리트주택이고 내단열이고 6층 (옥탑층)입니다. 감사합니다
M 관리자 2020.06.19 01:59
밤이 깊었기에 내일 오전에 답변드릴께요.
쨩쨩맨 님도, 어여 퇴근하시어요.
1 쨩쨩맨 2020.06.19 02:19
네 알겠습니다 좋은밤되셔요!
1 쨩쨩맨 2020.06.19 05:15
하나 더여쭙겠습니다 발코니쪽의 바닥이 실내와 달리 저렇게 낮아져도 되는지요? 아니면 실내 슬라브 두께와 맞추어야하나요?
1 쨩쨩맨 2020.06.19 07:02
루프배수의 위치를 위처럼 바꾸었는데 세홈통의 위치를 저렇게 놓아도될까요?어떻게 가는것이 가장 좋은 방법인가요? 옥상의 배수또한 어떻게 해야하는지 여쭙습니다..
M 관리자 2020.06.19 12:52
우선 파라펫 부분은 아래와 같은 개념입니다.
방수층이 파라펫 상부까지 올라가야 합니다.
(앞으로 지상층에 액체방수, 침투성방수 등의 표현은 아예 하지 마시어요)

역전지붕의 우수드레인 설치는 아래 글에 포함된 유튜브를 보시면 되실 것 같습니다.
http://www.phiko.kr/bbs/board.php?bo_table=z3_01&wr_id=3038

창호주변의 경우, 디자인과 관련된 부분인지라, 딱히 정할 수 있는 것은 없었습니다.
이렇게 할 수도 있고,
M 관리자 2020.06.19 12:54
이 것은 창문의 상단이 천장보다 낮은 경우입니다.
이 처럼 이 부분은 커튼의 위치, 커튼박스의 모양, 창의 크기 등과 모두 관련이 있는 것이라 우선 건축주와 디자인의 방향을 협의한 후에, 거기에 맞는 상세도를 그리는 것이 옳은 순서입니다.
M 관리자 2020.06.19 13:09
그러나, 이 시점에서 왜 노출콘크리트 내단열을 디자인하려 하는지, 근본적인 의문을 품지 않을 수 없지만....
어제 새벽에 이런 생각을 했습니다.
"뭐, 내가 망하는 것이 아닌데..."
이게 솔직한 심정입니다.

발코니 난간은 앞의 그림에서 평철로 그려져 있었는데, 유리 난간이네요.

위에 올려 드린 난간 사진의 핵심은... 난간을 "상부에서 고정하지 말고, 측면에서 고정해야 한다" 입니다.
즉, 유리 난간이든 평철난간이든, 위에서 고정하는 방식은 장기적인 누수 등의 하자를 근본적으로 막을 방법이 거의 없습니다. 유효한 디테일은 엄청 가격이 올라가게 되구요.
그러므로 우선 개념을 먼저 잡으셔야 합니다.
"모든 난간은 측면에서 케미컬 앙카로 고정한다"

두번째, 유리 난간은 "접합유리"여야 합니다.

이 두가지를 전제로 샘플 사진을 몇개 올려 드립니다.
M 관리자 2020.06.19 13:10
이런 방식은 인테리어 하시는 분들이 잘 하고 있습니다.
위의 것이 가장 저렴한 방식이고, 이 것이 좀 비싸요.

하부 하드웨어의 치수는 너무 연연해 하지 않으셔도 괜찮습니다.
M 관리자 2020.06.19 13:12
발코니 방수 등도 개념은 같지만, 목재 데크 대신에 페데스탈데크로 하시는 것이 좋겠습니다.
페데스탈 데크도 위에 링크해 드린 평지붕외단열 글에 나와 있습니다.
나머지 물처리 등은 크게 무리가 없어 보입니다. 다만, 발코니의 배수구는 외부측이 아닌, 안쪽으로 구배를 잡는 것이 좋습니다.
1 쨩쨩맨 2020.06.19 13:50
상세한 답변 정말 감사해요! 한가지 더 여쭈어보고싶은게 있는데 위의 그려주신것과같이 배수를 잡는다면 캐노피쪽은 어떻게 물처리가 되나요?
저빨갛게 쳐진대로 배수를 내린다는 말씀이신가요? 답변 정말 감사합니다..!
1 쨩쨩맨 2020.06.19 13:51
저기서 노랗게 되어있는 배수는 루프배수는 없애라는 말씀이신가요?
1 쨩쨩맨 2020.06.19 13:55
다시한번 상세한 답변 정말 감사드려요ㅠ 혼자서 해결을 못해서 끙끙앓았는데 너무 감사합니다..
M 관리자 2020.06.19 13:58
붉은 색 선은 맞습니다. 천장에서 빠져 나온 것을 건물의 외벽에 있는 SST 선홈통과 연결을 하면 됩니다.

발코니 드레인은 없애는 것이 아니라 건물의 본체 쪽으로 옮기라는 뜻이었습니다.
외부측에서 건물의 외벽에 붙어 있는 SST 선홈통까지 끌고 오는 것도 디자인에 좋지 않은 영향을 미치기도 하고, 하중 조건에도 좋지 않구요.
M 관리자 2020.06.19 14:12
페데스탈 데크를 이용한 비슷한 예입니다.
1 쨩쨩맨 2020.06.19 15:10
아..! 정말 정말 감사합니다!!
M 관리자 2020.06.19 15:34
네. 외측으로의 경사에서 안쪽으로의 경사로 변경되면 됩니다.
그러나, 말씀드린 바와 같이 발코니 하부에 물홈통을 어떻게 보이게 할 것 인가에 따라 위치를 결정해야 합니다.
그게 별 다른 취향이 없다면, 건물 쪽으로 옮기는 것이 경로가 짧아 지므로, 유리한 면이 있습니다.
1 쨩쨩맨 2020.06.19 16:05
정말 감사합니다!
1 쨩쨩맨 2020.06.19 17:41
하나만 더 여쭙겟습니다 내단열일 경우 발코니쪽은 단열을 아예하지 않나요?
M 관리자 2020.06.19 17:50
네. 하지 않습니다. 해봐야 소용이 없기도 하구요.
1 쨩쨩맨 2020.06.19 18:27
옥상층 같은 경우 쇄석마감이 끝인가요? 그 위에 별도의 마감이 필요하지는 않을까요?
M 관리자 2020.06.19 18:40
네 쇄석이 끝이어요.
G 지나가던사람 2020.09.08 13:54
관리자분 정말 고생하셨네요...
그냥 상세도 보러 들어왔다가 감탄하고 갑니다.
G 신영수 2020.09.09 22:32
관리자분 수고하셨습니다.
저는 주택 건축을 계획하고있는 예비건축주 입니다.
이곳을 통해서 공부 많이하고 있습니다.
저로서는 너무 깊이있는 내용이었습니다.
오늘도 많이 배웠습니다.
감사합니다.
G 지나가던사람2 2021.07.02 09:52
헐... 이건뭐 관리자님 대단하네요
G 지나가던 건축인 2021.10.29 08:38
관리자님의 정성스런 답변에 감사합니다!
G 지나가던 학생 2021.11.10 13:09
4학년이라서 도면 공부하려고 찾아보고있는데 이런 상세한 답변은 정말 굉장하시네요.... 저는 아직 이해하지 못한 부분도 있지만... 많이 배우고 갑니다..
G 실무자 2021.12.29 15:53
이야... 디테일한 질문과 계속된 답변... 좋은 건축과 시공이 만들어지는 과정같아 너무 보기좋습니다
천천히 하나하나 뜯어보겠습니다
질문자와 관리자님 모두에게 감사인사드립니다
G 쨩쨩질문맨 2022.05.03 14:43
엄청난 질문 폭격에도 다 받아주시는 관리자님 멋있습니다...대단하십니다
G 관리자짱짱 2022.06.19 21:10
건축학 학생 많이 배워갑니다
G 건축주 2023.01.24 12:26
정말 좋은 자료 감사합니다.
G 나그네 2023.10.12 16:14
지나가다 잠시 봐도 감동의 물결~ 이래서 여기 들어오는 맛이 납니다
G 지나가던 건축사 2023.10.18 12:34
지나가다 멈췄습니다! 관리자님 대단하십니다. 답변하신 시간 때도 그렇치만 댓글 속도도 흐드드합니다. 그냥 감동 그자체입니다.....ㅋㅋㅋㅋ
G 지나가던사람3 2024.03.28 10:41
구경만으로도 많이 배워갑니다.
G 노출콘크리트 파라펫… 2024.09.10 10:36
관리자님, 정말 감사합니다. 유튜브도 잘 보고있습니다. 건축사사무소를 다니지만 건축사님들도 합리적인 디테일을 모르시는 분들이 많고, 저 또한 건축사이자 좋은 건축가를 꿈꾸는 한 사람으로서 좋은 건축을 위해 예리하고 깊숙하게 공부를 해야겠다는 결심이 드는 글입니다. 질문자님도 감사합니다.
Category